Flot og præsentabel ejendom med ca. 7 ha. heraf ca. 3 ha. direkte ved bygningerne + ca. 4 ha. eng direkte ned til Gudenå.
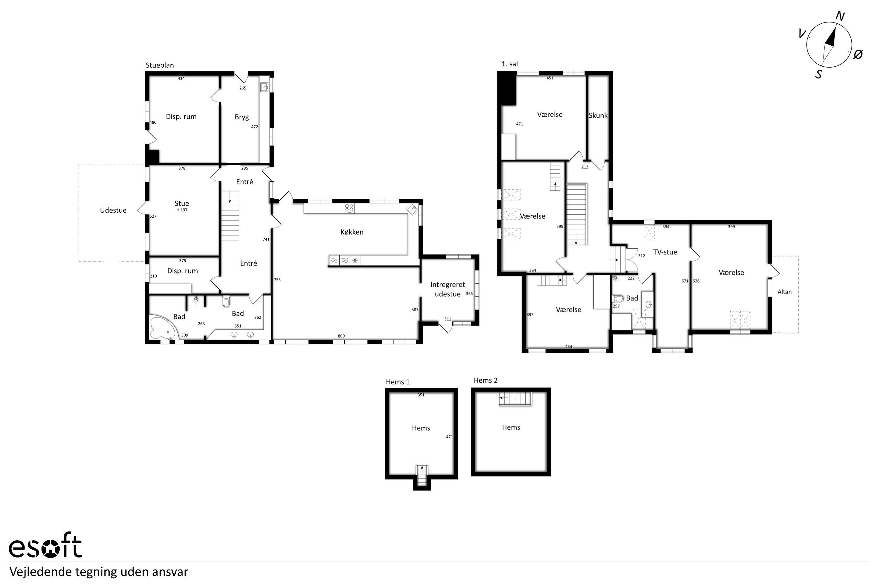
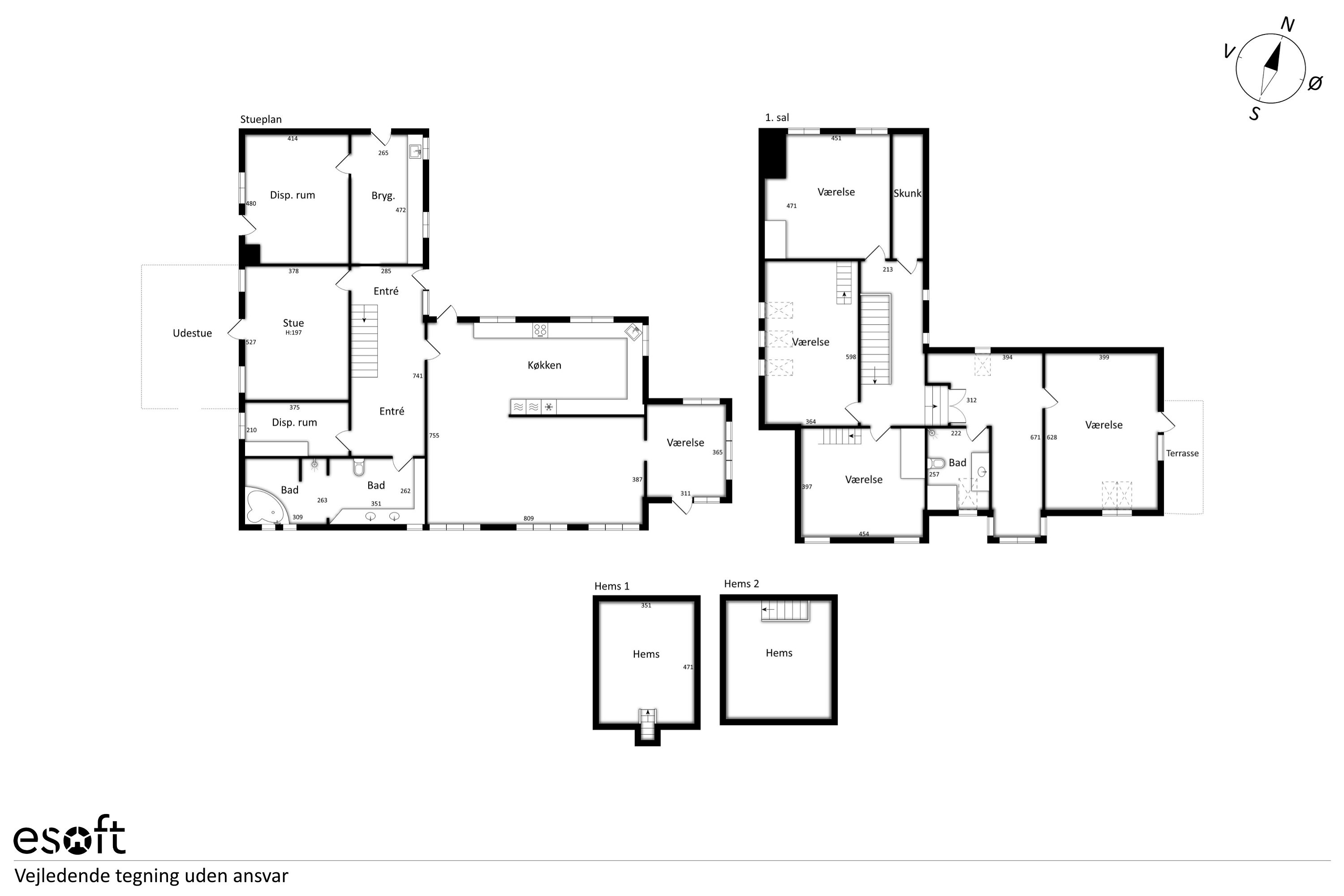
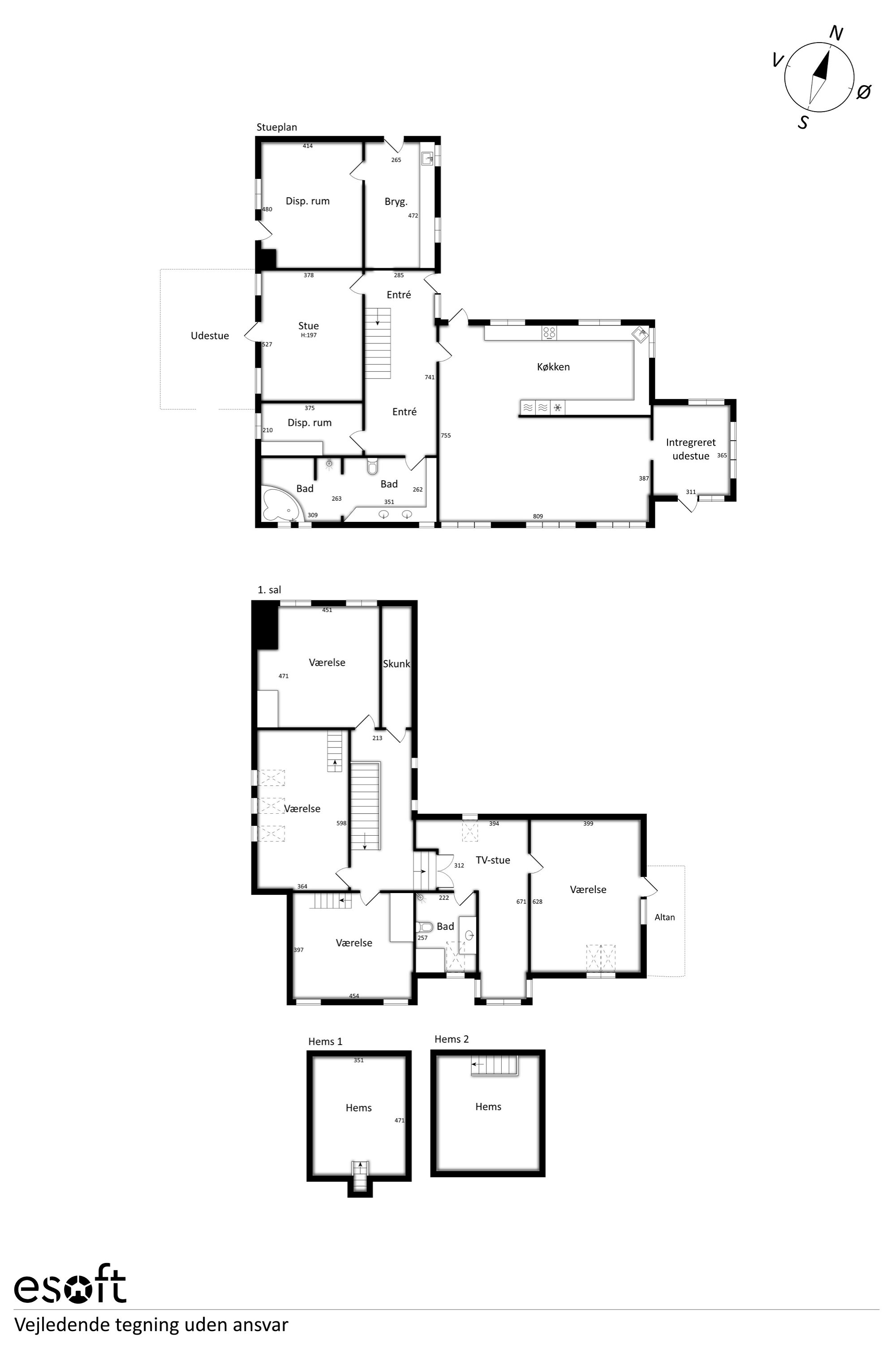
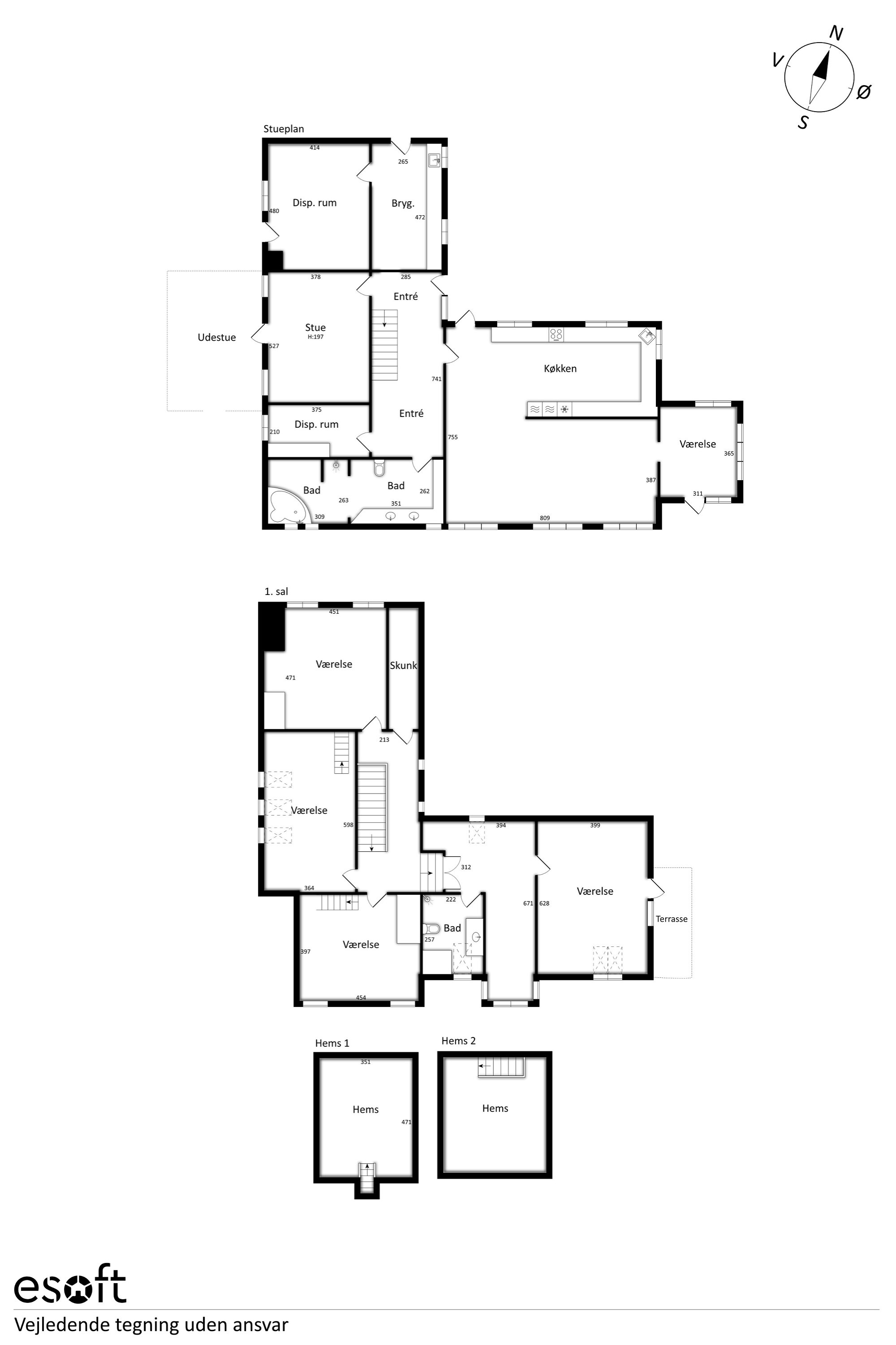
Med en skøn beliggenhed i naturskønne omgivelser, tæt ved både Ulstrup Skov og Gudenåen, finder I denne indbydende ejendom, som nu venter på sine nye ejere. Fra grunden kan I nyde udsigten til den smukke natur. Boligen fremstår velholdt, løbende renoveret og rummer masser af plads i 2 plan. I stueetagen bydes I velkommen i en rummelig hall med trappe til førstesalen. Her finder I desuden et praktisk bryggers/grovkøkken, hobby- og fyrrum med jordvarmeanlæg, en hyggelig stue med udgang til både udestue og en skøn terrasse, et disponibelt rum, et stort badeværelse med spa og bruseniche samt et lyst køkken-alrum med god plads til spisestue i åben forbindelse med endnu en stue. Hele stueetagen – undtagen udestuen – har gulvvarme. Førstesalen rummer en bred repos, tre gode værelser, badeværelse med bruseniche, en tv-stue samt et stort soveværelse med adgang til en østvendt tagterrasse. Se den vedlagte plantegning for detaljer. Derudover får I en carport, dobbelt vognly og en stor parkeringsplads belagt med knust asfalt. Ejendommen er opvarmet med jordvarme og har derfor et billigt varmeforbrug.
Den flotte, opvoksede have giver rig mulighed for at nyde udelivet, og på den store grund er der plads til dyrehold – fx heste eller får.
Beliggenheden er noget helt særligt: I har både Ulstrup Skov og trækstien langs Gudenåen inden for fem minutters gåafstand. Samtidig er der kort cykelafstand til skole, indkøb, dagtilbud og stationen i Ulstrup. Med bil når I Randers og Viborg på ca. 25 minutter. Ulstrup er en by, hvor man kan leve hele livet. Byen ligger centralt mellem Randers, Aarhus, Silkeborg og Viborg og har gode offentlige transportmuligheder – herunder regionaltog til Aarhus, Viborg og Struer ca. hvert 30. minut samt busforbindelser til både Randers og Silkeborg. Kom og oplev denne dejlige ejendom – vi fremviser gerne, når det passer jer!
Økonomien i boligen
Skal Nykredit Bank ringe for en snak om din boligøkonomi?
Fortæl os, hvornår det passer dig, så ringer en rådgiver fra Nykredit Bank dig op til en uforpligtende snak om dine lånemuligheder. Så er du et skridt tættere på din nye bolig.
Vi bruger dine oplysninger til at forberede samtalen. Læs mere i Nykredit Banks privatlivspolitik
Kontakt

Kontakt
Viggo Pedersen
Skal du også sælge?
Kontakt os og få en salgsvurdering, så ved du hvad din bolig er værd.
- Få et hurtigt estimat af salgspris eller en grundig vurdering.
- Få et indblik i, hvad din ejendom er værd på markedet lige nu.
- Find ud af, hvor meget du selv kan købe for, hvis du ønsker at skifte bolig.
Hvor langt er der til nærmeste?
Se hvor lang tid der er mellem denne bolig og en anden adresse
Fakta om Favrskov Kommune
INDBYGGERE
GRUNDSKYLD
KOMMUNESKAT
SKOLER
BØRNEPASNING
Opret dig i køberkartoteket og få besked om lignende boliger.
Få direkte besked, når der kommer relevante nye boliger til salg, der matcher dine ønsker. Du ser også de boliger, vi får til salg, som vi ikke viser på Nybolig.dk.
Tilpas filtre og opret