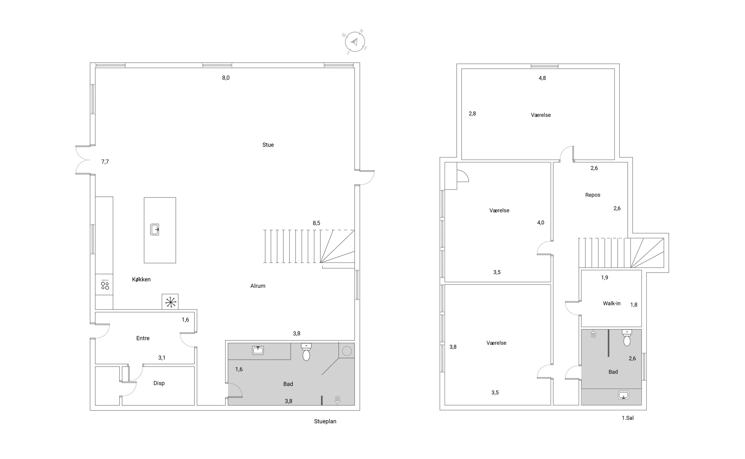
Denne unikke bolig på 186 kvm er en del af en idyllisk, tidligere landejendom, der blev opdelt i 2007. Beliggende midt i naturen tæt på Vedbæk, byder boligen på en rummelig entré med adgang til et stort badeværelse med bruser og toilet, samt et disponibelt rum til opbevaring.
Fra entréen træder man ind i et charmerende køkken-alrum med synlige bjælker og masser af plads til hele familien. Køkken-alrummet har udgang til en sydvestvendt have, der bader i sol morgen, middag og aften og indbyder til leg, afslapning og hyggelige stunder. På modsatte side af huset findes en lille gårdhave, ideel til grill.
På overetagen venter tre lyse og rummelige soveværelser, der alle oser af charme og varme. Hertil findes et praktisk walk-in-closet samt endnu et badeværelse med bruser. Derudover er der adgang til et stort loftrum, med masser af plads til opbevaring.
Ejendommen ligger tilbagetrukket fra Sandbjergvej, omgivet af stokroser og bøgehække, med privat parkering og blot 10 minutters cykeltur fra Vedbæk Station. Området tilbyder rolig idyl, mens hverdagens bekvemmeligheder stadig er lige om hjørnet.
Boligen blev gennemgribende renoveret i 2024 med respekt for dens oprindelige sjæl. De originale bjælker og vinduer er bevaret og smukt integreret med moderne funktioner, hvilket gør boligen både tidløs og funktionel. En fantastisk mulighed for familien, der ønsker en bolig med historie, charme og komfort i naturskønne omgivelser.
Klar til indflytning, med mulighed for hurtig overtagelse. Denne bolig er klar til at skabe nye minder!
Økonomien i boligen
Skal Nykredit Bank ringe for en snak om din boligøkonomi?
Fortæl os, hvornår det passer dig, så ringer en rådgiver fra Nykredit Bank dig op til en uforpligtende snak om dine lånemuligheder. Så er du et skridt tættere på din nye bolig.
Vi bruger dine oplysninger til at forberede samtalen. Læs mere i Nykredit Banks privatlivspolitik
Kontakt

Kontakt
Mira Trolle
Skal du også sælge?
Kontakt os og få en gratis salgsvurdering, så ved du hvad din bolig er værd.
- Få et hurtigt estimat af salgspris eller en grundig vurdering.
- Få et indblik i, hvad din ejendom er værd på markedet lige nu.
- Find ud af, hvor meget du selv kan købe for, hvis du ønsker at skifte bolig.
Hvor langt er der til nærmeste?
Se hvor lang tid der er mellem denne bolig og en anden adresse
Fakta om Hørsholm Kommune
INDBYGGERE
GRUNDSKYLD
KOMMUNESKAT
SKOLER
BØRNEPASNING
Opret dig i køberkartoteket og få besked om lignende boliger.
Få direkte besked, når der kommer relevante nye boliger til salg, der matcher dine ønsker. Du ser også de boliger, vi får til salg, som vi ikke viser på Nybolig.dk.
Tilpas filtre og opret