Moderne arkitektur møder gammel haveidyl – et hjem du ikke glemmer
Velkommen til denne unikke villa, hvor moderne arkitektur og gennemtænkte løsninger møder charmen fra en gammel, etableret have. Her får du en bolig, der ikke blot er nybygget og energieffektiv, men som samtidig emmer af sjæl og stemning – og ligger kun 9 km fra Rådhuspladsen.
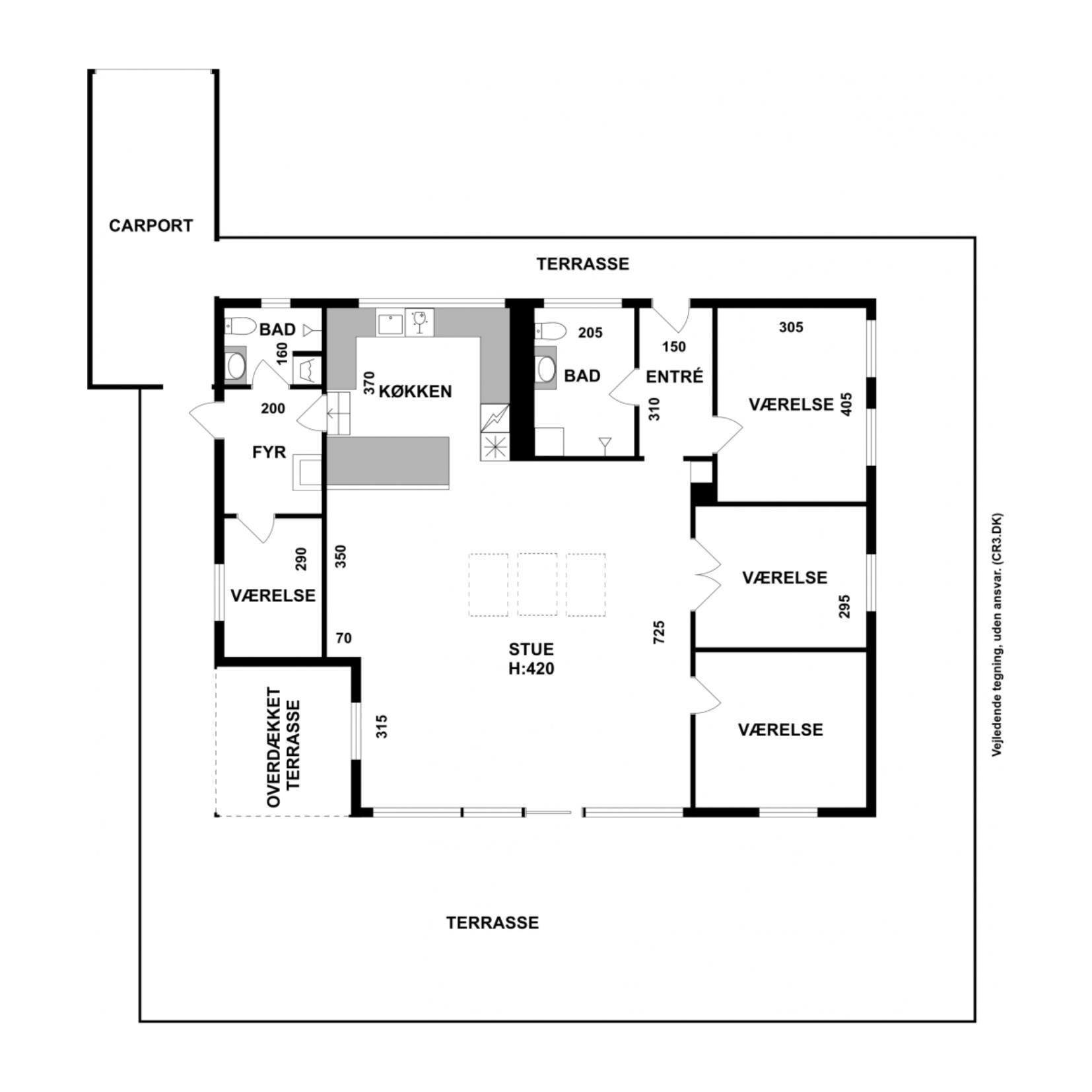
Boligen er på 139 m² fordelt på fem værelser og to badeværelser, og står på en generøs grund på 810 m². Huset blev oprindeligt opført i 1959, men i 2022 gennemgik det en total genopbygning, hvor kun de smukke ydermure i mursten blev bevaret. Alt andet er opført fra bunden med fokus på kvalitet, energioptimering og æstetik. Ydervæggene er efterisoleret både ind- og udvendigt, og der er installeret afkalkningsanlæg, mens fjernvarme tilkobles formentlig ved årets udgang.
Indenfor mødes du af et hjem, hvor lys og luft er i centrum. Den høje arkitektur med 4-5 meter til kip og store, speciallavede trelagsvinduer åbner hjemmet mod naturen og skaber et fantastisk samspil mellem inde og ude. Stuen har fire store vinduer, hvorfra du kan nyde udsigten til gamle trækroner og en idyllisk havedam med springvand.
Husets hjerte er det imponerende køkken-alrum på ca. 75 m², hvor moderne design og funktionalitet går hånd i hånd. Her er plads til både hverdagens måltider og store sammenkomster, og fra køkkenvasken har du udsigt til den vilde forhave, hvor blomster og tæt hæk giver fred og privatliv.
De fire værelser er lyse og rummelige med store vinduespartier og god loftshøjde, mens de to badeværelser er stilrene og indbydende – det største med to vinduer, det mindste med ét. Overalt er der lagt elegante italienske fliser (60x60 cm) med gulvvarme, der sikrer komfort i hele huset.
Udenfor venter en gammel, frodig have, der indrammer boligen med atmosfære og privatliv. Her kan børnene lege, mens du selv nyder solen på terrassen eller roen ved dammen.
Beliggenheden giver det bedste fra to verdener: grønne omgivelser og privatliv, samtidig med at du hurtigt når byens puls, indkøb, skoler og fritidsaktiviteter.
Denne villa er mere end bare en bolig – det er et hjem, hvor moderne komfort og klassisk haveidyl går hånd i hånd.
Økonomien i boligen
Skal Nykredit Bank ringe for en snak om din boligøkonomi?
Fortæl os, hvornår det passer dig, så ringer en rådgiver fra Nykredit Bank dig op til en uforpligtende snak om dine lånemuligheder. Så er du et skridt tættere på din nye bolig.
Vi bruger dine oplysninger til at forberede samtalen. Læs mere i Nykredit Banks privatlivspolitik
Kontakt

Kontakt
Mads Glimø
Skal du også sælge?
Kontakt os og få en gratis salgsvurdering, så ved du hvad din bolig er værd.
- Få et hurtigt estimat af salgspris eller en grundig vurdering.
- Få et indblik i, hvad din ejendom er værd på markedet lige nu.
- Find ud af, hvor meget du selv kan købe for, hvis du ønsker at skifte bolig.
Hvor langt er der til nærmeste?
Se hvor lang tid der er mellem denne bolig og en anden adresse
Fakta om Gladsaxe Kommune
INDBYGGERE
GRUNDSKYLD
KOMMUNESKAT
SKOLER
BØRNEPASNING
Opret dig i køberkartoteket og få besked om lignende boliger.
Få direkte besked, når der kommer relevante nye boliger til salg, der matcher dine ønsker. Du ser også de boliger, vi får til salg, som vi ikke viser på Nybolig.dk.
Tilpas filtre og opret