Rummelig ejendom med to separate boliger, stor grund og privat tennisbane
Går I med drømmen om at bo to generationer sammen, får I nu muligheden for netop dette. Nordøst for Sorø, nær Døjringe slår vi nu dørene op for en god, gedigen ejendom, der med to separate boliger gør det muligt at invitere svigerfamilien eller venneparret med til at bo i rolige, naturskønne omgivelser tæt på byens mange tilbud. Dertil får I kort afstand til motorvejstilkørslen med forbindelse mod København, Fyn og Jylland.
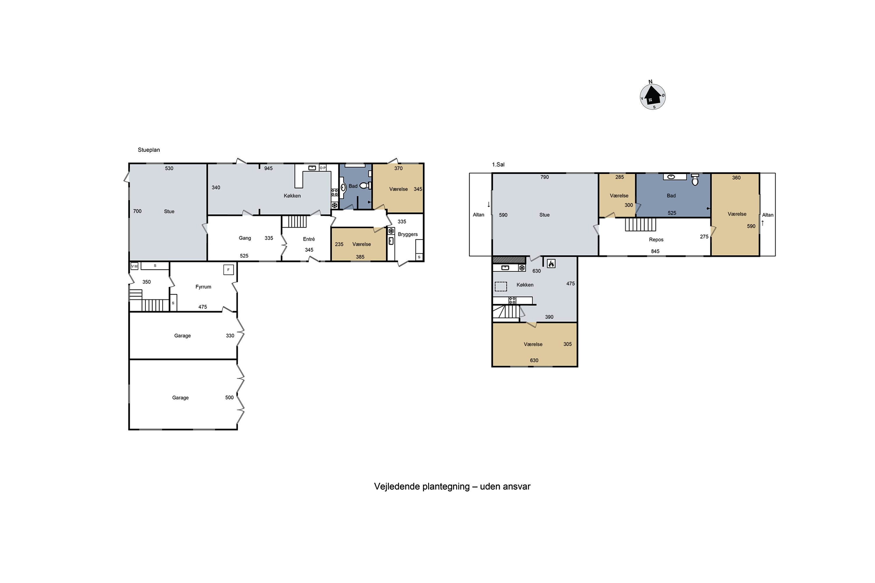
Ejendommen, der ligger på en 7.981 kvm stor grund, er oprindeligt opført i 1825 og siden til-/ombygget i 1977, hvor der inden døre venter jer hele 271 kvm i to separate units at indrette jer på. Stueplan breder sig over 165 kvm mens førstesalen byder på 106 kvm. Ejendommen fremstår autentisk og rummelig, hvor rammerne er i orden. Der kan forventes nogen istandsættelse afhængig af ønsker og behov. I får således mulighed for at sætte jeres eget præg på ejendommen.
Stueplan indeholder en værelsesafdeling med to værelser, badeværelse og bryggers med egen indgang mens I fra entréen får adgang til køkken/alrummet såvel som en mellemgang, der nemt kan indrettes til et multirum eller hvad I end måtte have af ønsker og behov. Derfra er der adgang til stuen med udgang til den vestvendte terrasse. Førstesalen kan tiltrædes fra to trapper, - en der leder op til repos, hvorfra I får adgang til to værelser, badeværelse såvel som den store stue – og med altan i begge ender, kan I her nyde morgensolen såvel som aftensolen. Den anden trappe fører direkte op til køkkenet, der har brændeovn og grænser op til både stue såvel som et værelse.
I sidebygningen er der dobbeltgarage, garage såvel som fyrrum og et rum med mulighed for tilslutning af vaskefaciliteter.
Ude venter en have med masser af plads til udeliv og leg. Her kan I sidde på terrassen og nyde udsigten ud over haven og det grønne marklandskab. Drømmer I om at blive selvforsynende med grøntsager er her god plads til en køkkenhave. Som noget ganske særligt, har I egen stor tennisbane.
Til ejendommen hører ligeledes en carport.
Økonomien i boligen
Skal Nykredit Bank ringe for en snak om din boligøkonomi?
Fortæl os, hvornår det passer dig, så ringer en rådgiver fra Nykredit Bank dig op til en uforpligtende snak om dine lånemuligheder. Så er du et skridt tættere på din nye bolig.
Vi bruger dine oplysninger til at forberede samtalen. Læs mere i Nykredit Banks privatlivspolitik
Kontakt

Kontakt
Brian Rud Sørensen
Skal du også sælge?
Kontakt os og få en gratis salgsvurdering, så ved du hvad din bolig er værd.
- Få et hurtigt estimat af salgspris eller en grundig vurdering.
- Få et indblik i, hvad din ejendom er værd på markedet lige nu.
- Find ud af, hvor meget du selv kan købe for, hvis du ønsker at skifte bolig.
Hvor langt er der til nærmeste?
Se hvor lang tid der er mellem denne bolig og en anden adresse
Fakta om Sorø Kommune
INDBYGGERE
GRUNDSKYLD
KOMMUNESKAT
SKOLER
BØRNEPASNING
Opret dig i køberkartoteket og få besked om lignende boliger.
Få direkte besked, når der kommer relevante nye boliger til salg, der matcher dine ønsker. Du ser også de boliger, vi får til salg, som vi ikke viser på Nybolig.dk.
Tilpas filtre og opret