- Altan
- Kælderrum
- Loftrum
Der er dejligt fredeligt her på Frederik den III's Vej i det centrale Fredericia. Og det til trods for at der kun er 500 meter til banegården, 200 meter til en Netto og en Meny og 10 minutters gang til Volden og bymidten. Her i nummer 17 har vi nu denne indbydende treværelses lejlighed til salg med køkken og badeværelse fra 2014. Som ekstra bonus følger der tilmed en isoleret garage på 17 m2 med til lejligheden - velkommen til!
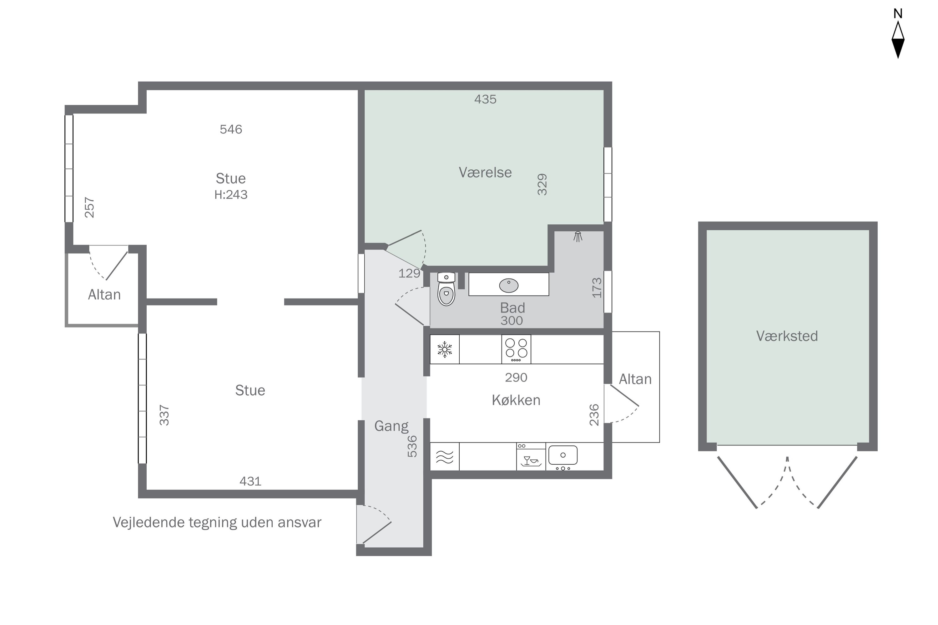
Lejligheden ligger på første sal i en mindre etageejendom med i alt fem lejligheder. Lejligheden har en logisk indretning, der giver en god udnyttelse af pladsen. Særligt de to stuer er en fornøjelse. De har gennemgående plankegulve, og hvor den ene stue har en karnap med udgang til en altan med eftermiddagssol, har den anden stue en væg med råt murværk, som giver rummet masser af karakter.
Køkkenet er fra Svanekøkken og står fuldt tidssvarende i strømlinet design med hvide elementer og integrerede hvidevarer fra Siemens. Ligesom i stuen er der også her en væg med råt murværk, og så er der tilmed udgang til en lille altan med morgensol. Også badeværelset står flot og har blandt andet el-gulvvarme og en stor bruseniche. Lejligheden afrundes af soveværelset, der er dejligt rummeligt med god plads til både seng og garderobeskab.
Som nævnt følger der en isoleret garage med til lejligheden, der giver en masse ekstra muligheder. Garagen er tinglyst til lejligheden og opvarmes via en biopejs. Derudover får du også brugsret til både et kælderrum og et loftsrum. Ejendommen har også vaskekælder og råder også over en hyggelig have med græsplæne og et terrasseafsnit med fælles havemøbler. Haven passes i fællesskab af ejendommens beboere.
Ring og bestil en fremvisning i dag!
Økonomien i boligen
Skal Nykredit Bank ringe for en snak om din boligøkonomi?
Fortæl os, hvornår det passer dig, så ringer en rådgiver fra Nykredit Bank dig op til en uforpligtende snak om dine lånemuligheder. Så er du et skridt tættere på din nye bolig.
Vi bruger dine oplysninger til at forberede samtalen. Læs mere i Nykredit Banks privatlivspolitik
Kontakt

Kontakt
Mette Ehrhorn
Skal du også sælge?
Kontakt os og få en gratis salgsvurdering, så ved du hvad din bolig er værd.
- Få et hurtigt estimat af salgspris eller en grundig vurdering.
- Få et indblik i, hvad din ejendom er værd på markedet lige nu.
- Find ud af, hvor meget du selv kan købe for, hvis du ønsker at skifte bolig.
Hvor langt er der til nærmeste?
Se hvor lang tid der er mellem denne bolig og en anden adresse
Fakta om Fredericia Kommune
INDBYGGERE
GRUNDSKYLD
KOMMUNESKAT
SKOLER
BØRNEPASNING
Opret dig i køberkartoteket og få besked om lignende boliger.
Få direkte besked, når der kommer relevante nye boliger til salg, der matcher dine ønsker. Du ser også de boliger, vi får til salg, som vi ikke viser på Nybolig.dk.
Tilpas filtre og opret