En naturperle med den ultimative beliggenhed på Vindekilde Strandvej i Odsherred
Her udbydes det ultimative liebhaveri – i form af et smukt fritidshus fra 2000, opført i træ med tagpap, flot placeret på sin egen lille "hylde" i det naturlige terræn.
Grunden, som er på samlet 6.341 kvm, har blandet beplantning, sheltersplads og er stærkt kuperet, hvor anvendelser med udsigt skal være i fokus.
Området er kendt for sin smukke, barske natur med fredede arealer og rigt dyreliv.
Nem adgang ned til vandet, hvor der kan bades eller lystfiskes.
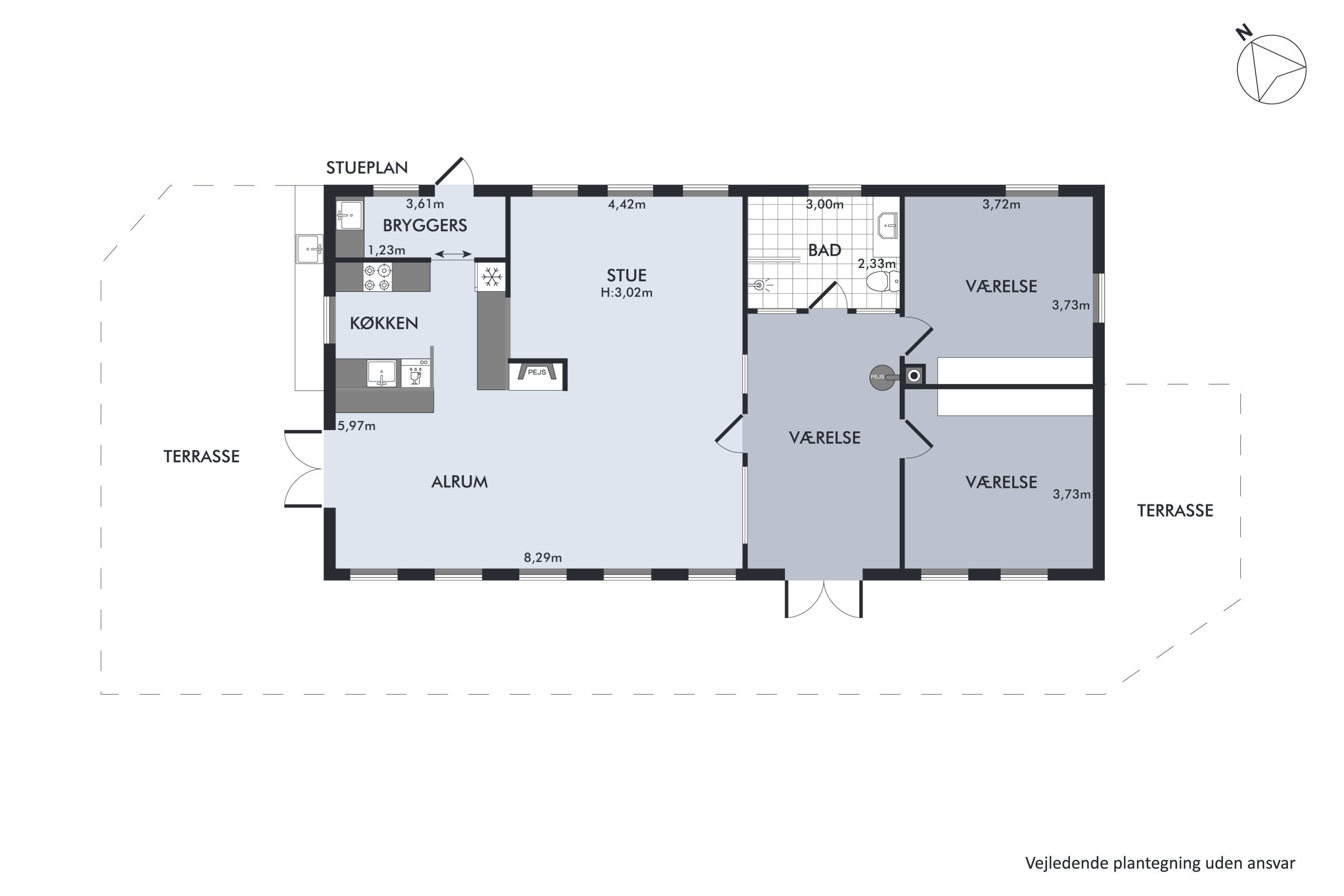
Huset, opført i 2000, indeholder entré/bryggers, et hyggeligt, åbent køkken med alle hvidevarer, lys og rummelig stue/alrum med loft til kip samt en muret, centralt placeret skorsten med indbygget brændeovn. Fra stuen er der direkte udgang til terrasseanlæg. Der er også forstue med ældre brændeovn og adgang til to gode soveværelser samt et flisebadeværelse med bruseniche.
Boligen har trægulve og klinker, opvarmes med centralvarme og brændeovn.
Huset oser af miljø og lysindfald – stadig med mulighed for at sætte sit personlige præg.
Der er en god anvendelig kælder på 29 kvm med et par disponible rum, indbygget i terrænet i den ene ende af huset.
Der er ældre udhusbygninger og drivhus i træ.
Grunden kan ikke udstykkes, og der er medlemspligt til grundejerforeningen for området.
Stedet, omgivelserne og huset skal opleves!!!
Ejendommen ligger i et af de smukkeste og mest attraktive områder i Odsherred – få kilometer til Dragsholm Slot eller det hyggelige miljø i Ordrup.
Større indkøb kan foretages i Asnæs.
Økonomien i boligen
Skal Nykredit Bank ringe for en snak om din boligøkonomi?
Fortæl os, hvornår det passer dig, så ringer en rådgiver fra Nykredit Bank dig op til en uforpligtende snak om dine lånemuligheder. Så er du et skridt tættere på din nye bolig.
Vi bruger dine oplysninger til at forberede samtalen. Læs mere i Nykredit Banks privatlivspolitik
Kontakt

Kontakt
Kenneth Jensen
Skal du også sælge?
Kontakt os og få en gratis salgsvurdering, så ved du hvad din bolig er værd.
- Få et hurtigt estimat af salgspris eller en grundig vurdering.
- Få et indblik i, hvad din ejendom er værd på markedet lige nu.
- Find ud af, hvor meget du selv kan købe for, hvis du ønsker at skifte bolig.
Hvor langt er der til nærmeste?
Se hvor lang tid der er mellem denne bolig og en anden adresse
Fakta om Odsherred Kommune
INDBYGGERE
GRUNDSKYLD
KOMMUNESKAT
SKOLER
BØRNEPASNING
Opret dig i køberkartoteket og få besked om lignende boliger.
Få direkte besked, når der kommer relevante nye boliger til salg, der matcher dine ønsker. Du ser også de boliger, vi får til salg, som vi ikke viser på Nybolig.dk.
Tilpas filtre og opret