Storkevej 27 er en "perle" af en ejendom, ejendommen ligger højt i terrænet.
I det gamle Stovby Klit område, lige nord for Marielyst Torv finder vi Storkevej 27 - ca. 300 mtr. til stranden og ca. 650 mtr. til Marielyst Torv - en stille og rolig beliggenhed, og alligevel med gå-afstand til alt, restauranter, dagligvareindkøb og meget andet.
Storkevej 27 er en "perle" af en ejendom, ejendommen ligger højt i terrænet.
Den oprindelige del af sommerhuset, er opført i 1925, tilbygget i 2003 og indenfor de senere år, er ejendommen moderniseret og fornyet meget væsentligt.
Ejendommen er opført med pudsede facader, gode termovinduer, nyere tag og stort luft til vandanlæg som bidraget til gulvvarmen i både stueetagen og på 1. salen.
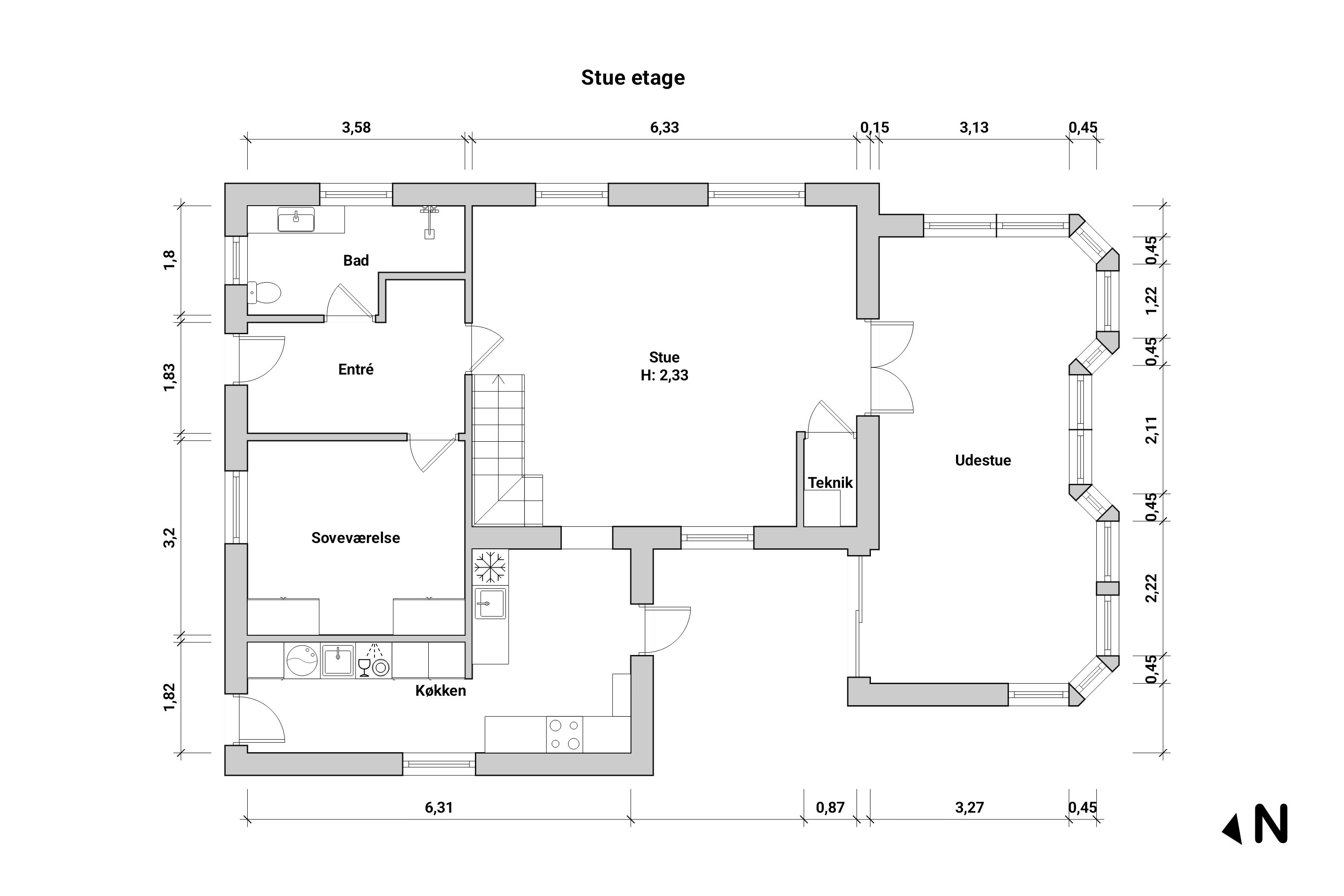
Ejendomme indeholder:
Entré hvorfra der er adgang til dejligt soveværelse med masser af skabsplads samt nydeligt flisebadeværelse med brus.
Den smukke stue har gennemgået total forvandling de senere år, alt er lavet, der er i stuen det flotteste sildebensparketgulv, hvide vægge og hvide lofter - flot og gennemført, bedre bliver det ikke - fra stuen er der udgang til ny-anlagt træterrasse mod vest.
Fra stuen er der adgang til den 27 kvm. store Homilius udestue fra 1996/2003 - det perfekt samlingspunkt for familien - der er den skønnest udsigt over haven.
Fra stuen er der adgang til funktionelt elementkøkken med videre adgang til bryggers - god plads til opbevaring og ved udgang til forhaven.
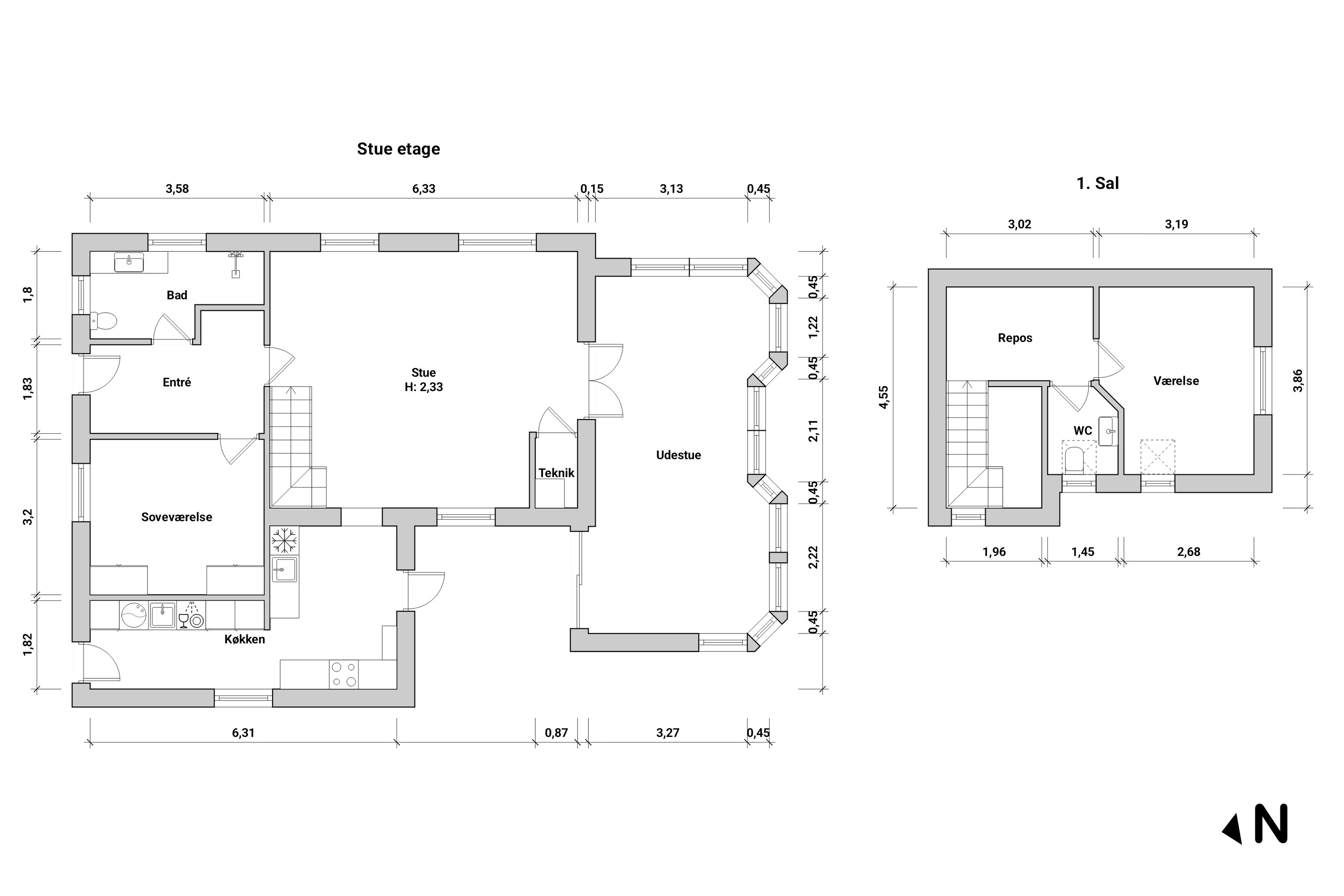
Husets tagetage er indrettet med dejligt værelse, nydeligt toilet og repos - tagetagen er tillige renoveret totalt indenfor de senere år, med samme kvalitetsgulve som i stuen og ligeledes med hvide vægge og lofter - smagfuldt renoveret.
Sælger oplyser, at der vil være mulighed for at indrette et værelse yderligere i tagetagen.
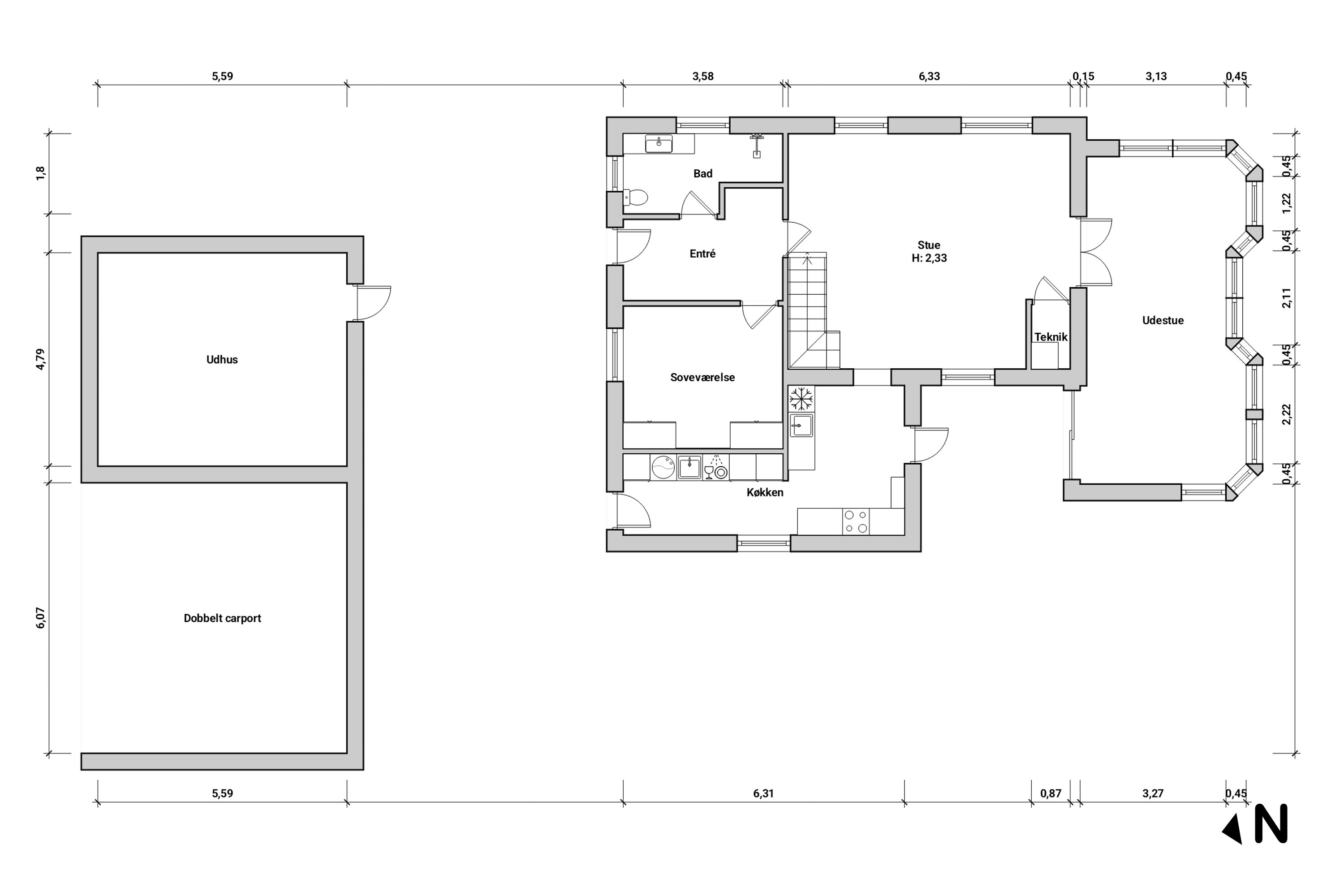
Udenfor finder vi den store dobbelte carport på 61 kvm. heraf 27 kvm. værksted, opført i de bedste materialer med træbeklædning og tegltag.
Sjælden set stort grund anlagt med plæne, buske og træer - nemt at holde og alligevel får man følelsen af at være i det helt gamle Marielyst, meget tæt på vandet.
Ejendommen er fri for udlejningsaftale og køber kan frit disponere over ejendommen.
Økonomien i boligen
Skal Nykredit Bank ringe for en snak om din boligøkonomi?
Fortæl os, hvornår det passer dig, så ringer en rådgiver fra Nykredit Bank dig op til en uforpligtende snak om dine lånemuligheder. Så er du et skridt tættere på din nye bolig.
Vi bruger dine oplysninger til at forberede samtalen. Læs mere i Nykredit Banks privatlivspolitik
Kontakt

Kontakt
Brian Jacobsen
Skal du også sælge?
Kontakt os og få en gratis salgsvurdering, så ved du hvad din bolig er værd.
- Få et hurtigt estimat af salgspris eller en grundig vurdering.
- Få et indblik i, hvad din ejendom er værd på markedet lige nu.
- Find ud af, hvor meget du selv kan købe for, hvis du ønsker at skifte bolig.
Hvor langt er der til nærmeste?
Se hvor lang tid der er mellem denne bolig og en anden adresse
Fakta om Guldborgsund Kommune
INDBYGGERE
GRUNDSKYLD
KOMMUNESKAT
SKOLER
BØRNEPASNING
Opret dig i køberkartoteket og få besked om lignende boliger.
Få direkte besked, når der kommer relevante nye boliger til salg, der matcher dine ønsker. Du ser også de boliger, vi får til salg, som vi ikke viser på Nybolig.dk.
Tilpas filtre og opret