Stemning, hygge, fred og ro på Tornbladvej 14
Den dybe, stille ro. Året rundt imponerer Bøtø med sin natur, hvor der er højt til træernes kroner og et smukt udsyn, når horisonten formes mellem hav og himmel. Bøtø er bedst kendt for sin vilde skov, hvor man kan gå på opdagelse mellem gamle træer, fugtige moser og de åbne enge. Om foråret og sommeren svæver sjældne sommerfugle i skoven, mens de vildtlevende heste og køer græsser på den knitrende skovbund hele året rundt. Flere gange om året kan man se trækfugle på vej mod nord eller syd - og få hundrede meter fra skoven kan man tage op i fugletårnet for at spejde efter flere sjældne arter og få et fantastisk syn helt ned mod Danmarks sydligste punkt, Gedser. Strandene ved Bøtø er brede, og de bakkede klitter giver mulighed for at slappe af med havet som eneste baggrundslyd. Det er muligt at gå eller cykle langs diget helt til Marielyst, hvor der på hele turen er højt til himlen og skøn udsigt til høje træer og sandstrand.
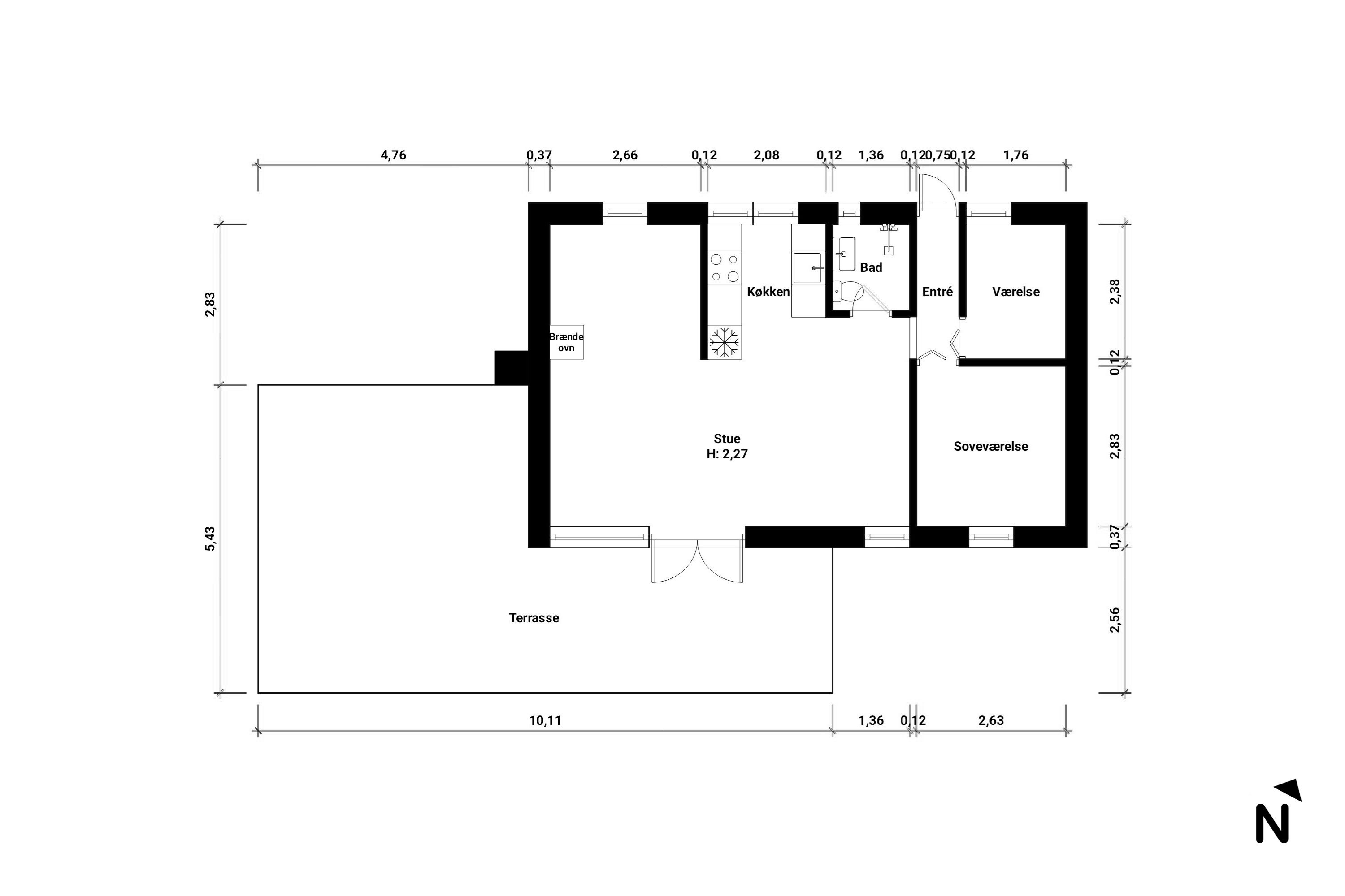
Der oser af stemning og hygge på Tornbladvej 14, som er et rigtigt sommerhus med sortmalet træbeklædning, tagpap tag og hvide, sprossede lavenergiruder. Dejlig stor grund på 1.225 i roligt område, hvor der er plads til solbadning, fordybelse eller sportsaktiviteter. Selve sommerhuset har et bebygget areal på 50 kvm. + godkendt anneksbygning på 19 kvm. - denne bygning er ligeledes holdt i sortmalet træbeklædning, tagpap tag og hvide sprossede termoruder. Indeholde: Entre, nydeligt flisebadeværelse med bruseniche, værelse med seng og skab, soveværelse med dobbeltseng, dejlig lys stue med brændeovn og sydvendt glasparti mod stor træterrasse, åbent, rustikt køkken med hårde hvidevarer. Sommerhuset har trægulve og hvide vægge/lofter. I anneksbygningen findes: stort soveværelse med trægulv og skab. Endvidere carport og udhus. Fantastisk grund med sol hele dagen, græsplæne, varieret randbeplantning, indkørsel og stor syd-vestvendt træterrasse.
Økonomien i boligen
Skal Nykredit Bank ringe for en snak om din boligøkonomi?
Fortæl os, hvornår det passer dig, så ringer en rådgiver fra Nykredit Bank dig op til en uforpligtende snak om dine lånemuligheder. Så er du et skridt tættere på din nye bolig.
Vi bruger dine oplysninger til at forberede samtalen. Læs mere i Nykredit Banks privatlivspolitik
Kontakt

Kontakt
Stig Romme Hansen
Skal du også sælge?
Kontakt os og få en gratis salgsvurdering, så ved du hvad din bolig er værd.
- Få et hurtigt estimat af salgspris eller en grundig vurdering.
- Få et indblik i, hvad din ejendom er værd på markedet lige nu.
- Find ud af, hvor meget du selv kan købe for, hvis du ønsker at skifte bolig.
Hvor langt er der til nærmeste?
Se hvor lang tid der er mellem denne bolig og en anden adresse
Fakta om Guldborgsund Kommune
INDBYGGERE
GRUNDSKYLD
KOMMUNESKAT
SKOLER
BØRNEPASNING
Opret dig i køberkartoteket og få besked om lignende boliger.
Få direkte besked, når der kommer relevante nye boliger til salg, der matcher dine ønsker. Du ser også de boliger, vi får til salg, som vi ikke viser på Nybolig.dk.
Tilpas filtre og opret