Landejendom med stor rummelig delvis renoveret bolig samt masser af udhusplads.
Velkommen til dette rummelig og naturskønt beliggende landsted "Store Fjembe" - Her har man en stor rummelig bolig som løbende har gennemgået en større renovering indvendigt. Boligen ligger usædvanligt smukt med flot udsigt over området. Den store græsplæne ligger smukt på sydsiden af huset hvor man har rigtig flot udsigt over området. Her har man virkelig plads til den store famile, mulighed for at indrette mange former for erhverv i de store rummelig udhusbygninger eller blot opnå ekstra indtægt ved udlejning af dele af udhusbygningerne. Ejendommen udstykkes med 3 ha. til ejendommen og der vil evt. kunne tilkøbes mere jord.
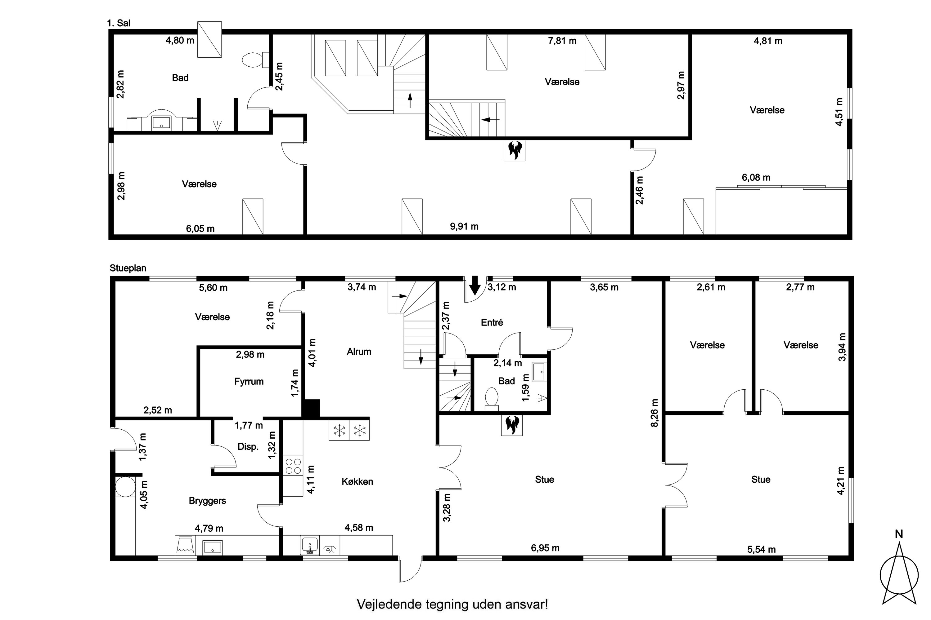
Fra ejendommen har man kun ca. 15 minutters kørsel til Sæby, 30 minutters kørsel til Aalborg. Man har ca. 2000 meter til busforbindelse mellem Sæby og Hjørring. Boligen er netpudset indenfor de sidste par år, men er endnu ikke malet. Boligen består af består af stort bryggers, fyrrum med nyere pillefyr, stort køkkenalrum med trappe til 1 sal samt fransk dør til rummelig vinkelstue med brændeovn. Fra vinkelstuen har man franske døre til endnu en stue samt 2 værelser. Desuden hall med trappe til 1 sal, hvor man har et selvstændigt værelse, uden adgang til den øvrige 1 sal, hvilket dog meget let vil kunne etableres.
Fra trappen i alrummet har man adgang til 1 sal med stor stue med brændeovn, 2 store værelser samt badeværelse. Her er der virkelig albuerum. Her har man virkelig en bolig der har plads til familiesammenkomster og børnenes kammerater.
Udbygningerne består af i alt ca. 3899 udbygninger, bestående af bl.a. stor stålspærshal/lade med stor loftshøjde, stor stald/stålspærshal samt flere mindre staldafsnit.
Tag chancen for at opleve dette unikke boliglandbrug, der venter på at blive dit hjem. Bestil en fremvisning i dag og lad dig inspirere af de mange muligheder, denne ejendom har at tilbyde. Her kan du skabe minder og leve det liv, du altid har drømt om.
Økonomien i boligen
Skal Nykredit Bank ringe for en snak om din boligøkonomi?
Fortæl os, hvornår det passer dig, så ringer en rådgiver fra Nykredit Bank dig op til en uforpligtende snak om dine lånemuligheder. Så er du et skridt tættere på din nye bolig.
Vi bruger dine oplysninger til at forberede samtalen. Læs mere i Nykredit Banks privatlivspolitik
Kontakt

Kontakt
Martin Riise
Skal du også sælge?
Kontakt os og få en salgsvurdering, så ved du hvad din bolig er værd.
- Få et hurtigt estimat af salgspris eller en grundig vurdering.
- Få et indblik i, hvad din ejendom er værd på markedet lige nu.
- Find ud af, hvor meget du selv kan købe for, hvis du ønsker at skifte bolig.
Hvor langt er der til nærmeste?
Se hvor lang tid der er mellem denne bolig og en anden adresse
Fakta om Frederikshavn Kommune
INDBYGGERE
GRUNDSKYLD
KOMMUNESKAT
SKOLER
BØRNEPASNING
Opret dig i køberkartoteket og få besked om lignende boliger.
Få direkte besked, når der kommer relevante nye boliger til salg, der matcher dine ønsker. Du ser også de boliger, vi får til salg, som vi ikke viser på Nybolig.dk.
Tilpas filtre og opret