Skønt rækkehus på 150 etagemeter beliggende på blind vej
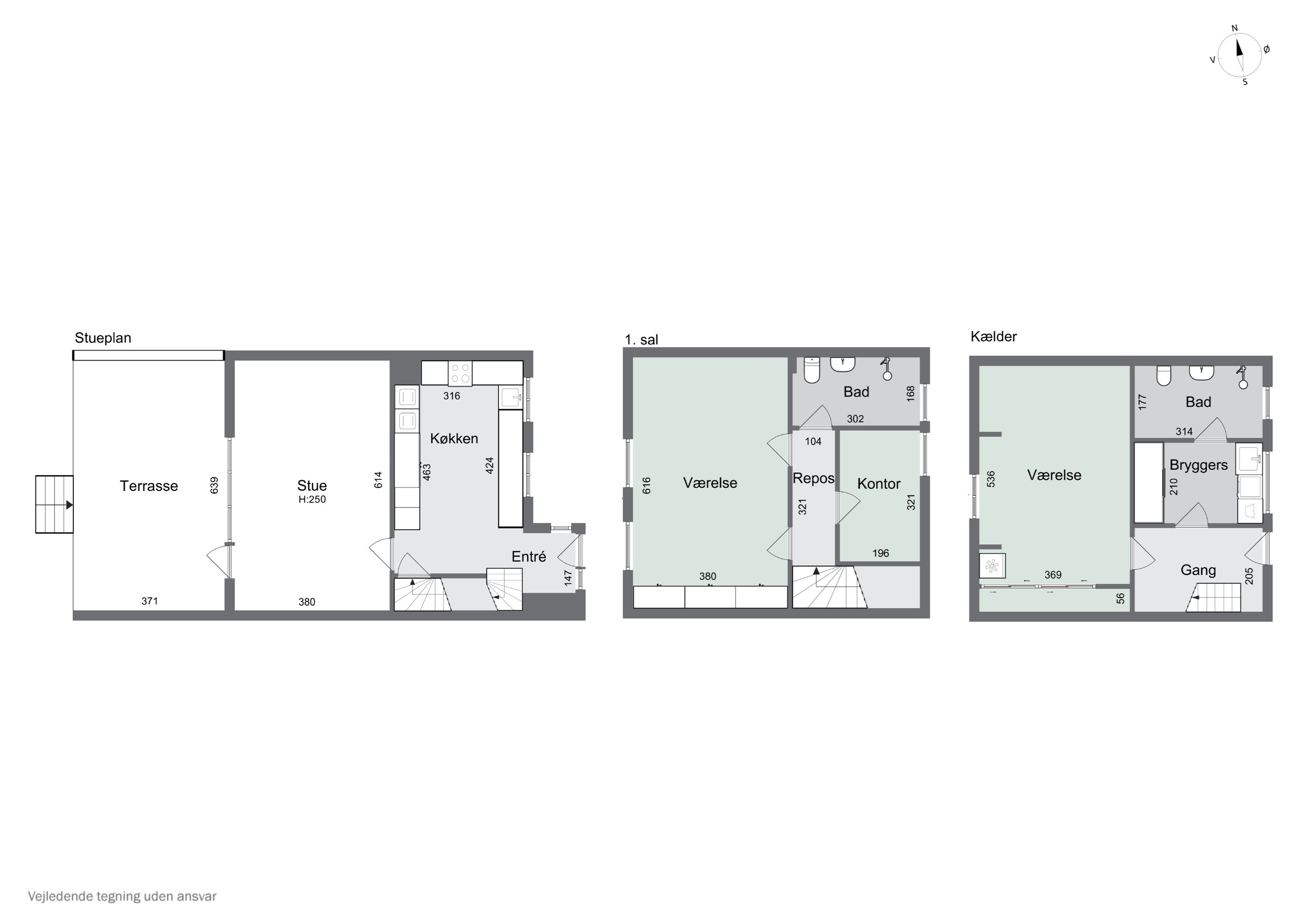
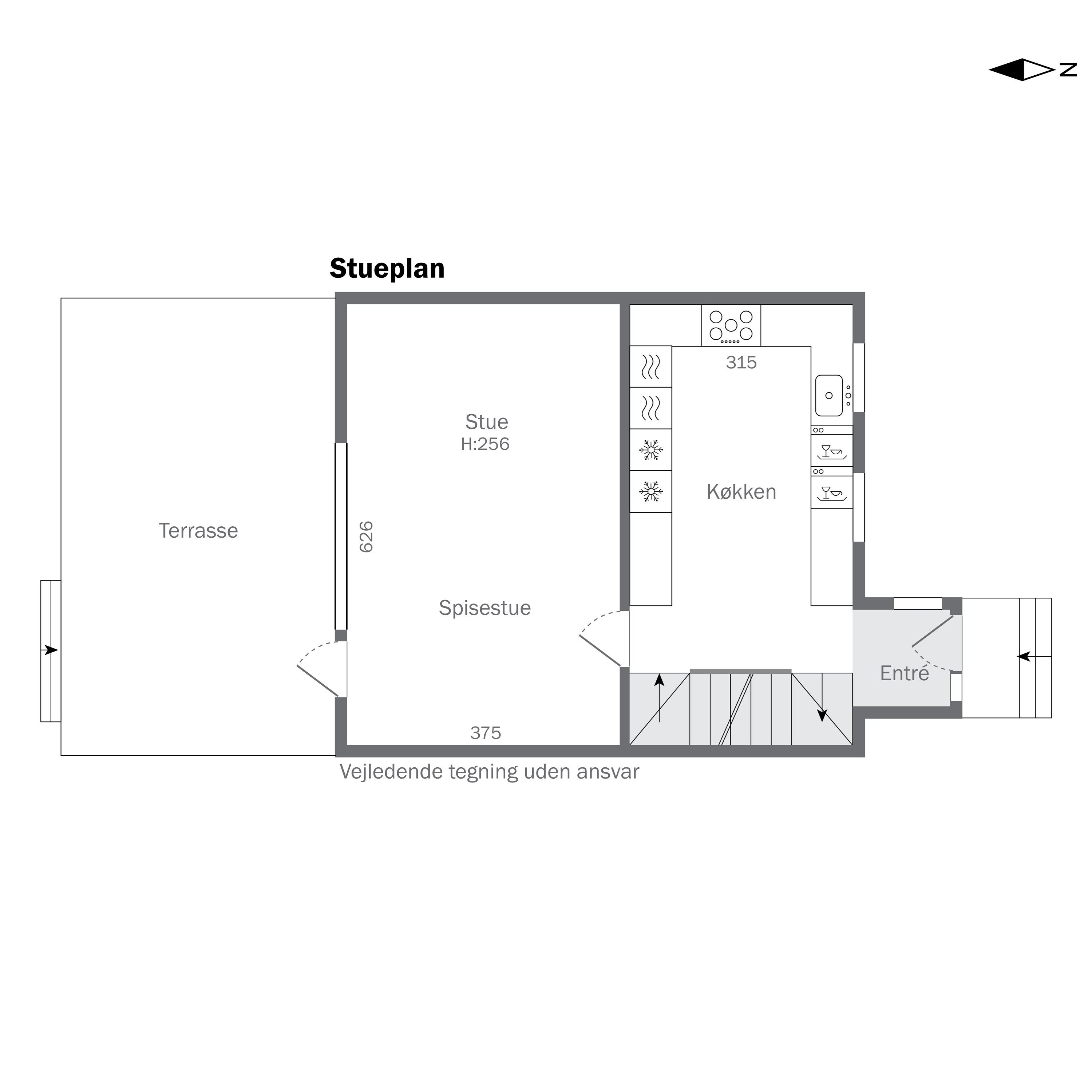
Skønt rækkehus, som strækker sig over 100 bolig kvm fordelt på stueplan og 1. sal samt en højloftet kælder/underetage på 50 kvm – oplagt til teenageafdeling med bl.a. egen indgang og lækkert badeværelse. Når du træder ind i huset, mødes du af en lys og åben entré, der fører dig videre til det moderne eksklusive køkken fra Simonsen og Czechura med stilrene elementer og ikke mindst hårde hvidevarer. Her kan du nyde morgenkaffen, mens lyset strømmer ind gennem de store vinduer. Den lyse stue indbyder til samvær og afslapning med plads til både sofaarrangement og kreative indretningsmuligheder samt hyggelig spiseplads. Fra stuen har man direkte udgang til boligens skønne sydvendte terrasse samt have. På 1. sal finder du de private værelser, hvor der er rigeligt med plads til at skabe et personligt fristed. Oprindelig har huset haft 3 soveværelser på 1. sal, kan nemt genetableres, men i dag har sælger prioriteret et meget stort master bedroom med masser af skabsplads samt kontor/børneværelse. Det rummelige badeværelse er renoveret i klassiske stil, der tilføjer en tidløs charme. Udenfor venter en dejlig terrasse og have, hvor du kan nyde de lange sommeraftener. Haven er nem at vedligeholde og giver mulighed for både leg og afslapning i grønne omgivelser. Det er det perfekte sted at skabe minder med familie og venner. Beliggende i et roligt kvarter på lukket vej, har du samtidig nem adgang til byens faciliteter og naturskønne områder. Her kan du finde ro i hverdagen, mens du stadig er tæt på det pulserende liv, som byen har at byde på. Dette rækkehus repræsenterer en harmonisk kombination af komfort og stil – et hjem, hvor du kan trives og skabe varige minder.
Økonomien i boligen
Skal Nykredit Bank ringe for en snak om din boligøkonomi?
Fortæl os, hvornår det passer dig, så ringer en rådgiver fra Nykredit Bank dig op til en uforpligtende snak om dine lånemuligheder. Så er du et skridt tættere på din nye bolig.
Vi bruger dine oplysninger til at forberede samtalen. Læs mere i Nykredit Banks privatlivspolitik
Kontakt

Kontakt
Rasmus Hinge Bagger
Skal du også sælge?
Kontakt os og få en gratis salgsvurdering, så ved du hvad din bolig er værd.
- Få et hurtigt estimat af salgspris eller en grundig vurdering.
- Få et indblik i, hvad din ejendom er værd på markedet lige nu.
- Find ud af, hvor meget du selv kan købe for, hvis du ønsker at skifte bolig.
Hvor langt er der til nærmeste?
Se hvor lang tid der er mellem denne bolig og en anden adresse
Fakta om Gladsaxe Kommune
INDBYGGERE
GRUNDSKYLD
KOMMUNESKAT
SKOLER
BØRNEPASNING
Opret dig i køberkartoteket og få besked om lignende boliger.
Få direkte besked, når der kommer relevante nye boliger til salg, der matcher dine ønsker. Du ser også de boliger, vi får til salg, som vi ikke viser på Nybolig.dk.
Tilpas filtre og opret