Lyst og rummeligt rækkehus med udsigt og naboskab i særklasse
Indflytningsklart, moderne og gennemtænkt – her er alt lavet med hverdagen for øje, så det bare spiller.
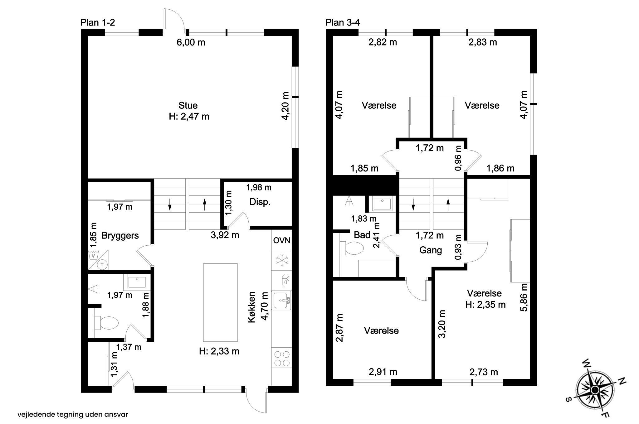
Dette enderækkehus fra 2023 er skabt med fokus på funktionalitet og livskvalitet. 142 m² fordelt på forskudte plan giver en spændende rumfordeling, hvor man fra køkkenet stadig har kontakt til børnene på deres værelser – en løsning, der gør hverdagen nem og naturlig.
Husets hjerte er det store køkken-alrum med køkkenø, masser af bordplads og lysindfald fra de mange vinduer. Køkkenet fungerer som et samlingspunkt, mens stuen ligger i åben forbindelse som familiens opholdsrum. De forskudte plan giver samtidig plads til et separat voksenværelse, så både børn og voksne kan trække sig tilbage.
Boligen rummer fire værelser, moderne badefaciliteter og er indflytningsklar med gennemtænkte detaljer som kvalitetsgardiner, energioptimering og praktiske løsninger.
Udenfor finder du en carport med skur til opbevaring – en detalje, der gør hverdagen lettere, fordi alt det praktiske har sin plads. Haven åbner sig mod grønne fællesarealer, hvor udsigten og lyset skaber en fredfyldt atmosfære. Her kan man nyde grillaftener, lege med børnene eller bare tage en stille stund i det grønne.
Området er præget af fællesskab og tryghed. Lukkede veje, masser af børn i kvarteret og et naboskab, hvor man hilser på hinanden, giver rammerne for et godt familieliv. Skoler, daginstitutioner og indkøb findes inden for kort afstand, og byen byder på et væld af fritids- og kulturtilbud – fra sportsklubber og foreninger til musik, events og sociale arrangementer.
Med nem adgang til både motorvej, busser, lokalbaner og S-tog er du hurtigt videre mod København, stranden i nord eller resten af Nordsjælland.
Her får du ikke bare et rækkehus – men et hjem, hvor hverdagens funktionalitet møder fællesskab, lys og grønne omgivelser.
Økonomien i boligen
Skal Nykredit Bank ringe for en snak om din boligøkonomi?
Fortæl os, hvornår det passer dig, så ringer en rådgiver fra Nykredit Bank dig op til en uforpligtende snak om dine lånemuligheder. Så er du et skridt tættere på din nye bolig.
Vi bruger dine oplysninger til at forberede samtalen. Læs mere i Nykredit Banks privatlivspolitik
Kontakt

Kontakt
Sofia Damgaard
Skal du også sælge?
Kontakt os og få en gratis salgsvurdering, så ved du hvad din bolig er værd.
- Få et hurtigt estimat af salgspris eller en grundig vurdering.
- Få et indblik i, hvad din ejendom er værd på markedet lige nu.
- Find ud af, hvor meget du selv kan købe for, hvis du ønsker at skifte bolig.
Hvor langt er der til nærmeste?
Se hvor lang tid der er mellem denne bolig og en anden adresse
Fakta om Hillerød Kommune
INDBYGGERE
GRUNDSKYLD
KOMMUNESKAT
SKOLER
BØRNEPASNING
Opret dig i køberkartoteket og få besked om lignende boliger.
Få direkte besked, når der kommer relevante nye boliger til salg, der matcher dine ønsker. Du ser også de boliger, vi får til salg, som vi ikke viser på Nybolig.dk.
Tilpas filtre og opret