Unikt byhus midt i Fredericia med totalrenoveret underetage og en stor, solrig have
De rå fakta alene burde være nok til at sælge denne yderst tiltalende ejendom i Fredericia. Et byhus på hele 198 m2, med fuldt renoveret stueplan (2016) og adgang til en stor, dejlig og ikke mindst solrig have. Hertil en fantastisk beliggenhed i hjertet af Fredericia fem minutter fra henholdsvis stranden, Kanalbyen og bymidten i hver sin retning - velkommen til!
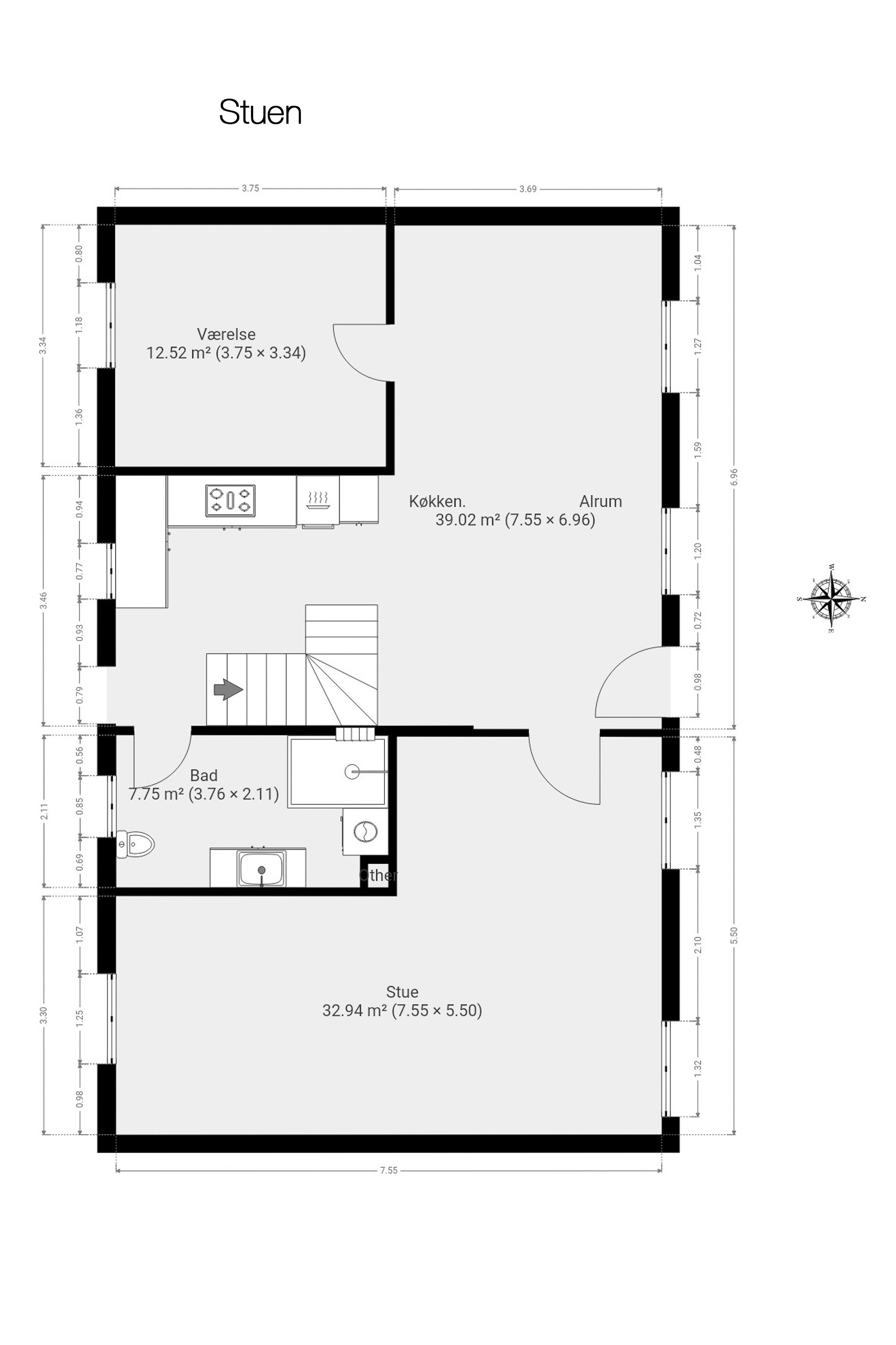
Trods den centrale beliggenhed er Sjællandsgade faktisk en rolig og relativt utrafikeret gade. Derudover er boligen udstyret med støjreducerende vinduer i hele huset på vejsiden. Det skete i forbindelse med renoveringsprojektet, hvor hele stueplan blev istandsat fra A-Z med nyt inventar, nye installationer m.m. - en totalrenovering med andre ord.
Det er således også en behagelig oplevelse at træde indenfor i husets store køkken-alrum. Rummet er integreret med entréen og har også trappe op til førstesalen, hvilket helt naturligt gør det til husets samlingspunkt. I får her et flot og rummeligt Kvik-køkken med Quooker og hvidevarer fra Siemens. Fra alrummet er der videre forbindelse til henholdsvis en vinkelstue, et badeværelse og et soveværelse.
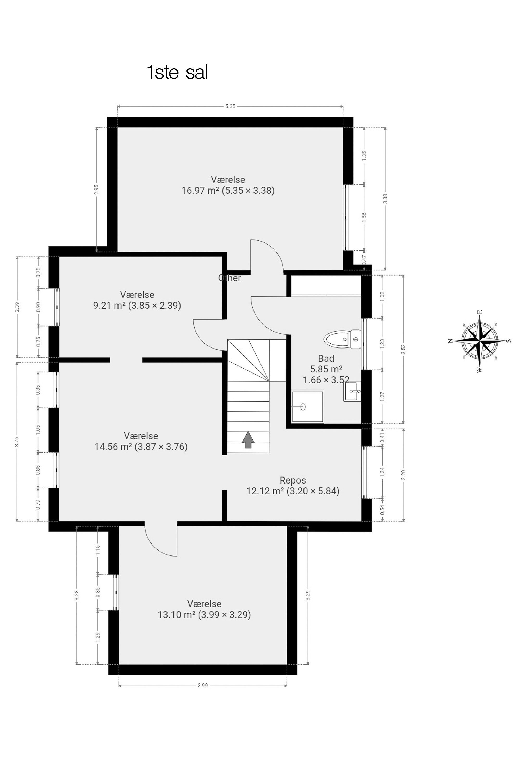
På førstesalen venter yderligere fire gode, store soveværelser, en repos og et badeværelse. Det ene værelse er pt. forbundet med reposen, men kan nemt laves til et separat værelse, hvis man sætter en dør i. Mod syd er der i øvrigt et fint kig til Lillebæltsbroen.
Det er dog den store have mod syd, der er den store attraktion. Det er virkelig en exceptionelt stor have - den centrale beliggenhed taget i betragtning. Haven er helt lukket og er stor nok til, at ungerne kan bruge den som legeplads. Der er terrasse foran alrummet og i den ene side, hvor I kan nyde aftensolen. Endelig er her også et stort, muret udhus på omtrent 20 m2 med værksted. Og selvom I bor midt i byen er haven forholdsvis ugeneret.
En ejendom af de særlige, der bestemt ikke udbydes hver dag - ring hellere i dag og bestil en fremvisning!
Økonomien i boligen
Skal Nykredit Bank ringe for en snak om din boligøkonomi?
Fortæl os, hvornår det passer dig, så ringer en rådgiver fra Nykredit Bank dig op til en uforpligtende snak om dine lånemuligheder. Så er du et skridt tættere på din nye bolig.
Vi bruger dine oplysninger til at forberede samtalen. Læs mere i Nykredit Banks privatlivspolitik
Kontakt

Kontakt
Mette Ehrhorn
Skal du også sælge?
Kontakt os og få en gratis salgsvurdering, så ved du hvad din bolig er værd.
- Få et hurtigt estimat af salgspris eller en grundig vurdering.
- Få et indblik i, hvad din ejendom er værd på markedet lige nu.
- Find ud af, hvor meget du selv kan købe for, hvis du ønsker at skifte bolig.
Hvor langt er der til nærmeste?
Se hvor lang tid der er mellem denne bolig og en anden adresse
Fakta om Fredericia Kommune
INDBYGGERE
GRUNDSKYLD
KOMMUNESKAT
SKOLER
BØRNEPASNING
Opret dig i køberkartoteket og få besked om lignende boliger.
Få direkte besked, når der kommer relevante nye boliger til salg, der matcher dine ønsker. Du ser også de boliger, vi får til salg, som vi ikke viser på Nybolig.dk.
Tilpas filtre og opret