- Parkering
- Egen have
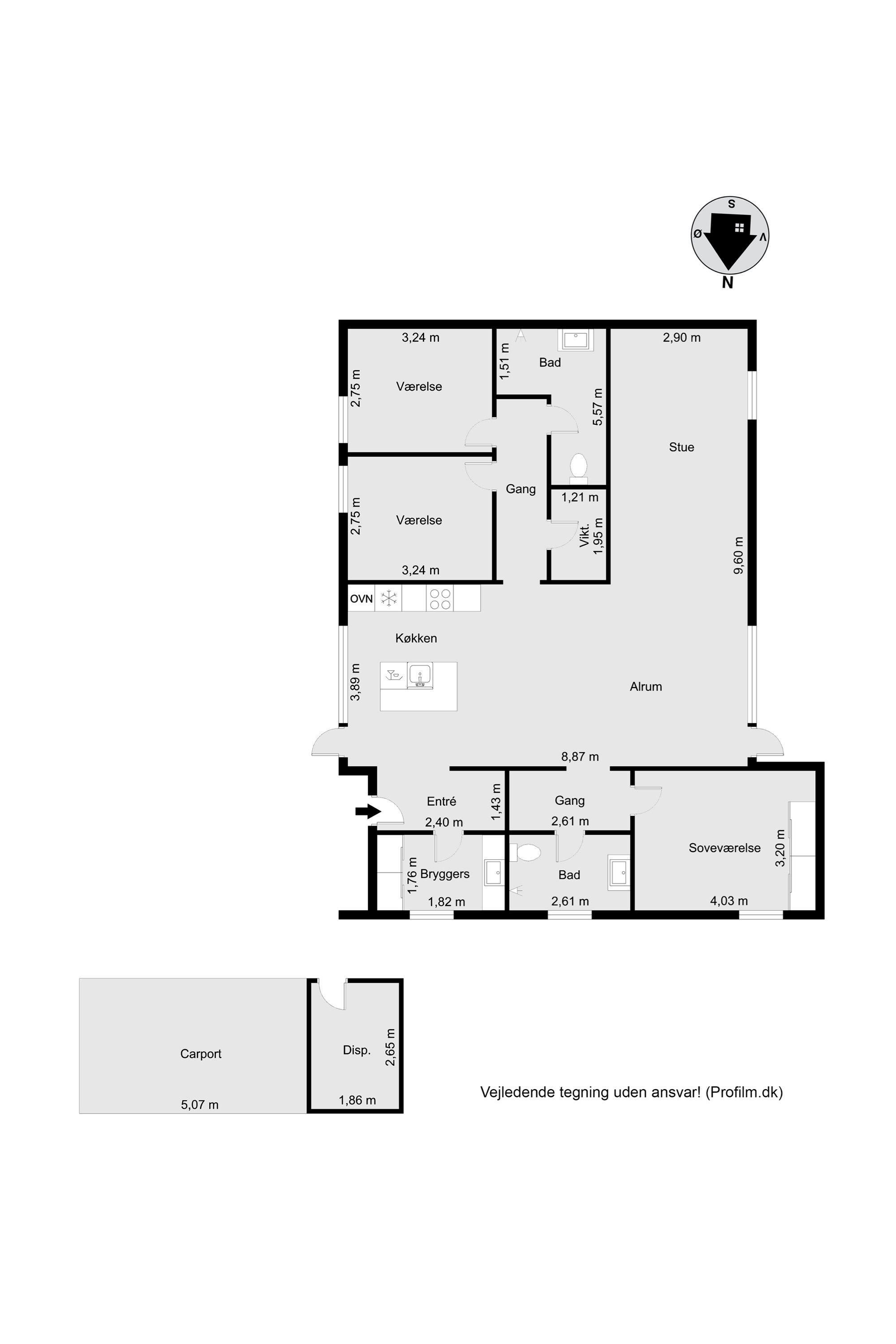
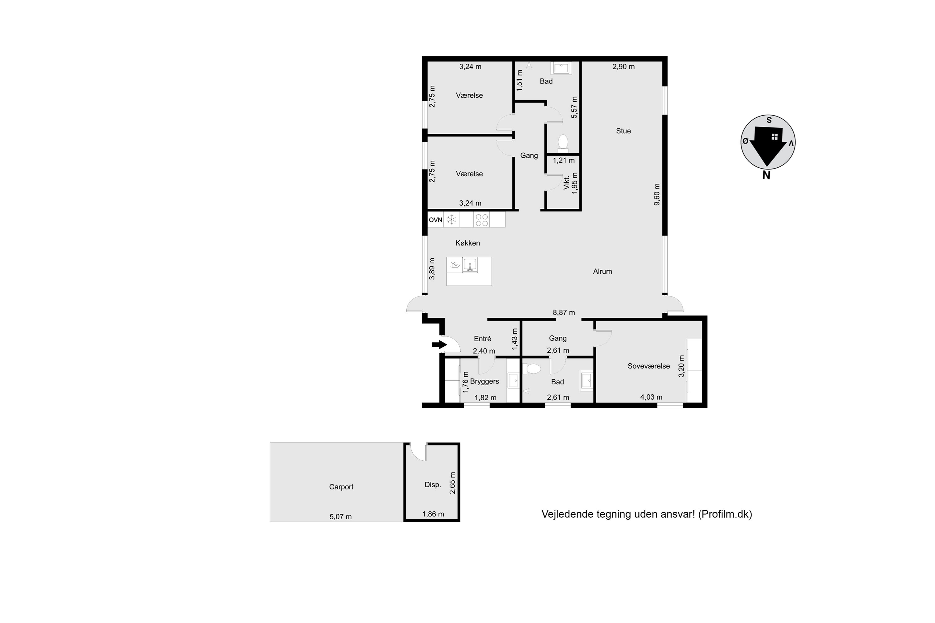
Nye flotte dobbelthuse
Tavlund Allé er en lille skøn enklave med 14 skønne boliger (1. etape) under opførelse som dobbelthuse.
Området er naturskønt ud til grønne arealer, tæt på Rind Plantage og gode stisystemer til skole og indkøb. Fællesarealerne er udformet så det skaber en indbydende atmosfære. Beplantningen er ført ind i mellem boligerne, og tilpasset med en varieret karakterbeplantning, der skaber visuel skønhed og binder bebyggelsen sammen med de grønne områder der grænser op til Tavlund Allé. Der er lagt vægt på at skabe et fællesskab, men hvor der også er skabt små private områder ved hver bolig, så du kan nyde privatlivets ro og fred. I arkitekturen har vi arbejdet med det morderne funkisudtryk, med en indbygget variation, der fremhæver naturligt lys og integrerer de omkringliggende grønne fællesarealer i boligen. Dette skaber en sammenhæng mellem indendørs og udendørs rum. Ved ankomsten til denne boligvej, vil man straks bemærke en følelse en følelse af nærhed og fællesskab. Bebyggelsen er i harmoni med den omkringliggende skønne natur og er struktureret omkring mindre, individuelle enheder med god luft imellem. De forskellige boliger har alle en nøje tilpasset planløsning og er tilrettelagt for optimal udnyttelse af rummene, hvilket minimerer spildpladsen samtidig med at der skabes en rummelig atmosfære omkring opholdsrummene.
Alle boligerne har et dejligt stort køkken/alrum og stue, som er omdrejningspunktet for hele boligen. Vi har prioriteret variation i boligstørrelserne, således at vores boliger appellerer til en bred målgruppe, lige fra den enlige, det modne ægtepar til den lille børnefamilie. Der er carport og depotrum til alle boligerne hvor der samtidigt er forberedt til el lade bokse i carporte. I materialer er der tænkt både levetid, Co2 påvirkning og vedligehold. Byggeriet udføres udvendigt i en balance mellem tegl, træ og alu. Med denne sammensætning reduceres Co2 udledningen,men samtidig opretholdes en lang levetid, et minimum af vedligehold og materialer, der alle er genanvendelige. Akustik er en utrolig vigtig del af hverdagen, derfor har vi valgt akustik lofter som giver velvære i hverdagen. Der er gulvvarme overalt som styres via individuelle rumtermostater og giverdermed en behagelig varme.
De viste fotos er fra udstillingshus.
Kontakt

Kontakt
Henrik Buur
Skal du også sælge?
Kontakt os og få en gratis salgsvurdering, så ved du hvad din bolig er værd.
- Få et hurtigt estimat af salgspris eller en grundig vurdering.
- Få et indblik i, hvad din ejendom er værd på markedet lige nu.
- Find ud af, hvor meget du selv kan købe for, hvis du ønsker at skifte bolig.
Økonomien i boligen
Skal Nykredit Bank ringe for en snak om din boligøkonomi?
Fortæl os, hvornår det passer dig, så ringer en rådgiver fra Nykredit Bank dig op til en uforpligtende snak om dine lånemuligheder. Så er du et skridt tættere på din nye bolig.
Vi bruger dine oplysninger til at forberede samtalen. Læs mere i Nykredit Banks privatlivspolitik
Hvor langt er der til nærmeste?
Se hvor lang tid der er mellem denne bolig og en anden adresse
Fakta om Herning Kommune
INDBYGGERE
GRUNDSKYLD
KOMMUNESKAT
SKOLER
BØRNEPASNING
Opret dig i køberkartoteket og få besked om lignende boliger.
Få direkte besked, når der kommer relevante nye boliger til salg, der matcher dine ønsker. Du ser også de boliger, vi får til salg, som vi ikke viser på Nybolig.dk.
Tilpas filtre og opret