Gennemført og indflytningsklar villa i børnevenligt kvarter
På en rolig villavej i Hvidovre ligger denne indbydende og velrenoverede villa på 133 kvadratmeter. Huset er opført i 1963 og fremstår i dag som et moderne og funktionelt hjem, hvor der er kælet for både materialevalg og detaljegrad. Med en grund på 684 kvadratmeter og en beliggenhed tæt på alt fra skole og station til skov og strand, er rammen sat for en tryg og velfungerende hverdag.
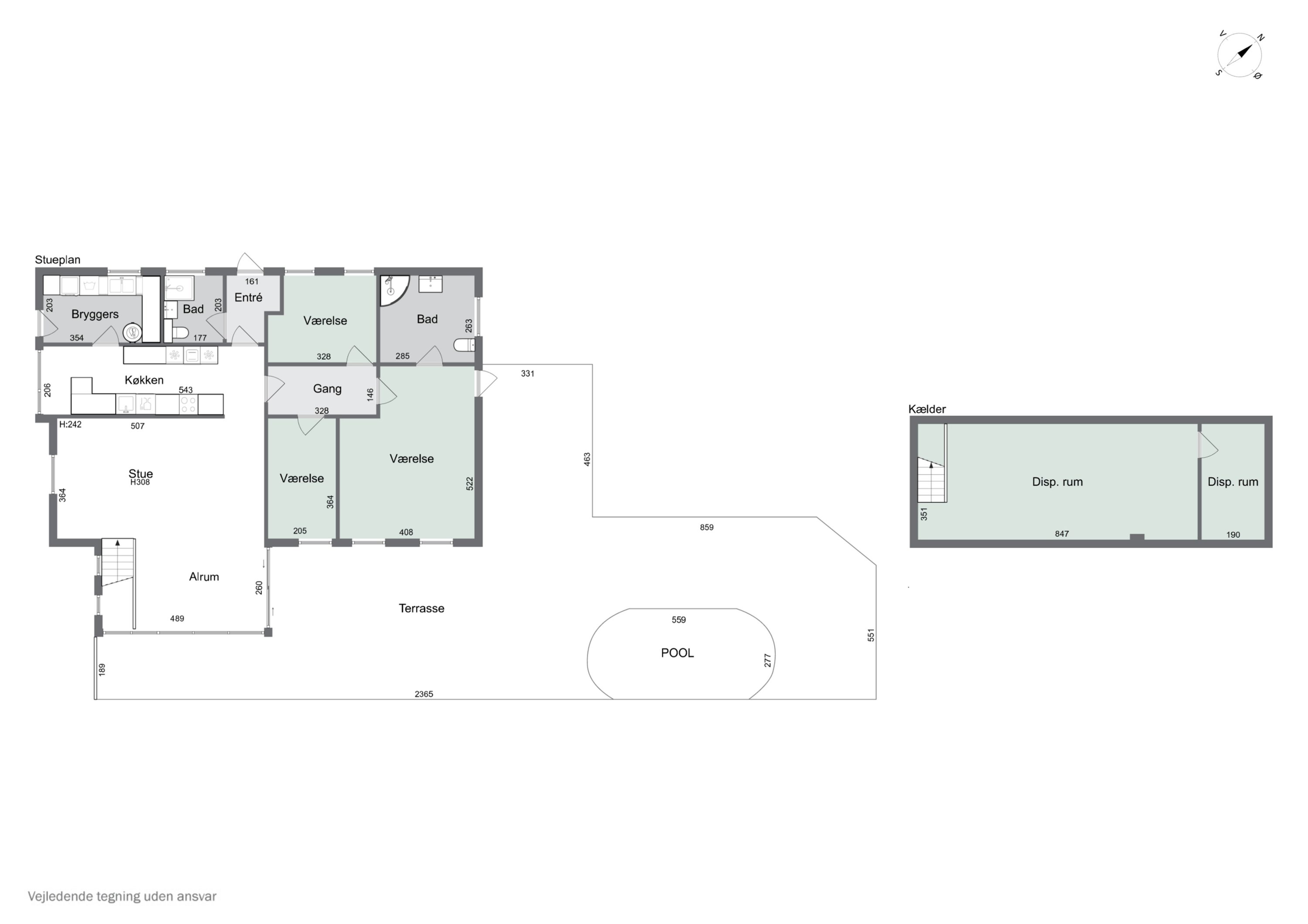
Boligens planløsning er gennemtænkt med fokus på lys, luft og sammenhæng. Fra entréen træder du direkte ind i boligens lyse opholdsafdeling, hvor stue og alrum smelter sammen i et åbent plan. Her er store vinduespartier, der både inviterer dagslyset ind og skaber en harmonisk overgang til haven og terrassen. Rummet er indrettet med god plads til både spiseområde og sofaafdeling.
Køkkenet er fra Vordingborg og udstyret med kvalitets-hvidevarer fra Miele og Quooker. Der er også installeret et BWT-anlæg, som sikrer blødt vand i hele boligen. Fra køkkenet er der adgang til et praktisk bryggers med god opbevaringsplads og separat indgang.
Villaen indeholder tre regulære værelser samt to badeværelser med gulvvarme, hvoraf det ene er moderniseret i 2019 med fokus på stilrene detaljer og kvalitetsmaterialer. En lys fordelingsgang binder rummene sammen og skaber et naturligt flow i boligen. Kælderen tilføjer ekstra fleksibilitet med to disponible rum, der eksempelvis er velegnede som hjemmekontor, hobbyrum eller til opbevaring.
Udenfor venter en privat og solrig have med nyanlagt græsplæne, flisebelagt terrasse og en lækkert placeret pool, som forsøder sommerens glæder og skaber ideelle rammer for leg og afslapning. Haven er overskuelig og velanlagt med god plads til udeliv og sociale stunder.
Beliggenheden kombinerer det bedste af begge verdener: Et fredeligt og børnevenligt kvarter med søde naboer – og samtidig nem adgang til Avedøre Station, svømmehal, legepladser, skole, institution, indkøb og rekreative områder.
Ring for en fremvisning.
Følg os på Instagram: @alexandernybolig og @nybolighvidovretorv<br>
Læs mere om vores forretning: https://www.nybolig.dk/ejendomsmaeglere/koebenhavn/nybolig-hvidovre
Økonomien i boligen
Skal Nykredit Bank ringe for en snak om din boligøkonomi?
Fortæl os, hvornår det passer dig, så ringer en rådgiver fra Nykredit Bank dig op til en uforpligtende snak om dine lånemuligheder. Så er du et skridt tættere på din nye bolig.
Vi bruger dine oplysninger til at forberede samtalen. Læs mere i Nykredit Banks privatlivspolitik
Kontakt

Skal du også sælge?
Kontakt os og få en gratis salgsvurdering, så ved du hvad din bolig er værd.
- Få et hurtigt estimat af salgspris eller en grundig vurdering.
- Få et indblik i, hvad din ejendom er værd på markedet lige nu.
- Find ud af, hvor meget du selv kan købe for, hvis du ønsker at skifte bolig.
Hvor langt er der til nærmeste?
Se hvor lang tid der er mellem denne bolig og en anden adresse
Fakta om Hvidovre Kommune
INDBYGGERE
GRUNDSKYLD
KOMMUNESKAT
SKOLER
BØRNEPASNING
Opret dig i køberkartoteket og få besked om lignende boliger.
Få direkte besked, når der kommer relevante nye boliger til salg, der matcher dine ønsker. Du ser også de boliger, vi får til salg, som vi ikke viser på Nybolig.dk.
Tilpas filtre og opret