Fantastisk lækker, totalrenoveret villa med attraktiv beliggenhed og plads til familien
For enden af en lille, lukket villavej, i et trygt kvarter, hvor det gode naboskab præger stemningen, udbydes nu en sjældent lækker villa. Her er I tæt på alt hvad hele familien har brug for i en aktiv hverdag og hele familien, den er der plads til.
Boligen er istandsat fra A-Z i 2022 og indrettet af en stilsikker hånd med sans for detaljen, for stemninger og for at skabe leverum, hvor livsnydelse er i højsæde.
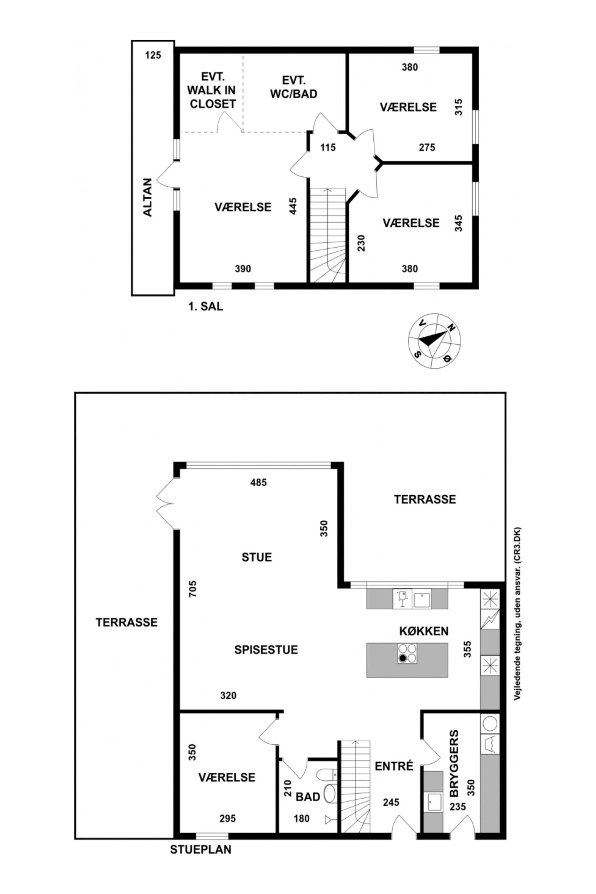
Pladsen fordeles over to plan og er i stueetagen er fokuseret omkring fællesområderne. Her får I funktionelle og eksklusivt udseende rammer om tiden tilbragt sammen. Bryggerset er indrettet med rigelig opbevaringsplads, entréen er lys, indbydende og rummelig og i det smukke alrum er der plads til både middagsselskaber, juleaftener og fejringer af fødselsdage, når vejret ikke tillader, at haven udgør rammerne. Stueetagen rummer desuden det ene af fire værelser samt husets flot indrettede badeværelse. På husets førstesal venter yderligere tre store værelser, hvoraf det største har udgang til en stor, sydvestvendt altan.
Haven er komplet ugenert og omkranset af de smukkeste, gamle træer, der skaber en helt særlig atmosfære. Her er etableret en stor, solrig terrasse, der smyger sig langs husets syd- og vestvendte facader og som giver rigelig plads til både fester, hygge, afslapning og potter og krukker.
Ikke nok med, at stranden ligger få minutters gang eller cykeltur fra hoveddøren, så får I også alle Solrøds tilbud inden for korte afstande, med både Solrød Center, station, skole, fritidsinteresser og institutioner samt nem og hurtig tilkørsel til motorvejen.
Vi glæder os meget til at vise jer rundt, så I ved selvsyn kan opleve hvordan alt bare spiller her.
Økonomien i boligen
Skal Nykredit Bank ringe for en snak om din boligøkonomi?
Fortæl os, hvornår det passer dig, så ringer en rådgiver fra Nykredit Bank dig op til en uforpligtende snak om dine lånemuligheder. Så er du et skridt tættere på din nye bolig.
Vi bruger dine oplysninger til at forberede samtalen. Læs mere i Nykredit Banks privatlivspolitik
Kontakt

Skal du også sælge?
Kontakt os og få en gratis salgsvurdering, så ved du hvad din bolig er værd.
- Få et hurtigt estimat af salgspris eller en grundig vurdering.
- Få et indblik i, hvad din ejendom er værd på markedet lige nu.
- Find ud af, hvor meget du selv kan købe for, hvis du ønsker at skifte bolig.
Hvor langt er der til nærmeste?
Se hvor lang tid der er mellem denne bolig og en anden adresse
Fakta om Solrød Kommune
INDBYGGERE
GRUNDSKYLD
KOMMUNESKAT
SKOLER
BØRNEPASNING
Opret dig i køberkartoteket og få besked om lignende boliger.
Få direkte besked, når der kommer relevante nye boliger til salg, der matcher dine ønsker. Du ser også de boliger, vi får til salg, som vi ikke viser på Nybolig.dk.
Tilpas filtre og opret