Landejendom med charme og plads til drømme - 16.815 m² grund
Blandt marker og skov lige uden for Fuglebjerg ligger en ejendom med masser af sjæl og potentiale. Rødstensvillaen med tilhørende udbygninger og en grund på 1,68 hektar er perfekt til dig, der ønsker at skabe dit eget hjem tæt på naturen. Der er rig mulighed for udfoldelse af enhver art, hvad enten du drømmer om dyrehold, selvforsyning eller at drive erhverv fra hjemmeadressen.
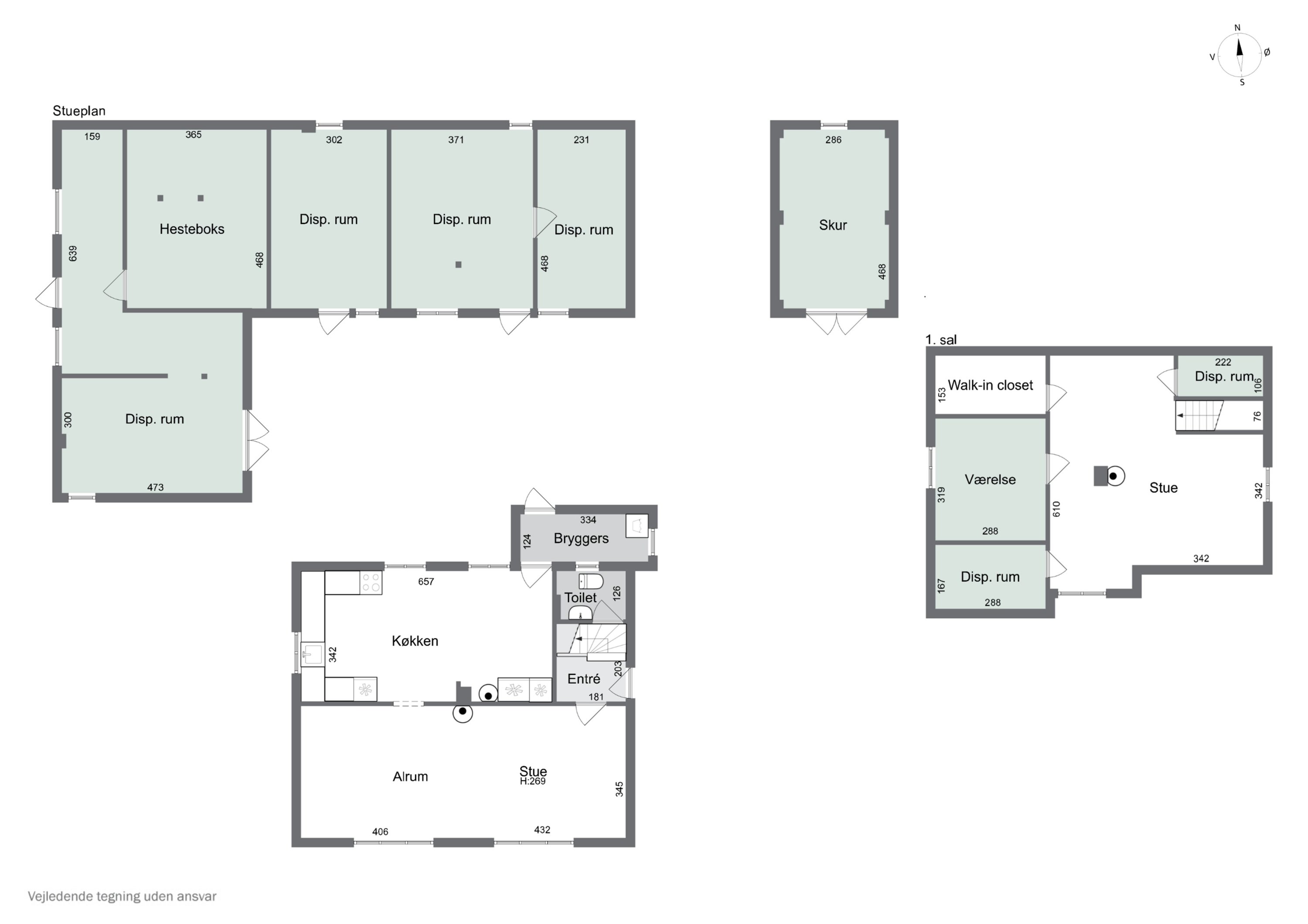
Grunden er anlagt med vild natur, hvor høje, gamle træer og åben eng med slåede stier præger omgivelserne. Det hele indbyder til friluftsliv, leg og projekter, og du kan nemt etablere græsfolde til heste eller bare lade det vilde dyreliv få glæde af naturen på din grund. Udbygningerne inkluderer en gammel stald i bindingsværk samt en garage og en lade, der byder på gode disponible kvadratmeter til opbevaring såvel som pladskrævende hobbyer eller erhverv.
Boligens stueplan er hovedsageligt afsat til en stor, lys stue og et køkken-alrum, men der er også et badeværelse og et bryggers til rådighed. Stuen modtager naturligt lys gennem sydvendte vinduer, mens køkken-alrummet giver plads til både madlavning og samvær.
På førstesalen møder du en rummelig stue, hvorfra der er adgang til et soveværelse, et walk-in-closet og to disponible rum. Den fleksible planløsning giver gode muligheder for at skabe en bolig, der passer til både familieliv og fritidsinteresser.
Beliggenheden er landlig, naturskøn og fredelig, men samtidig praktisk. Der er knap tre kilometer til Fuglebjerg, som imødekommer alle børnefamiliens behov med skole, fritidsaktiviteter, daginstitutioner og indkøbsmuligheder.
Alt i alt et fantastisk sted for naturelskere, som ønsker plads til at gro.
Økonomien i boligen
Skal Nykredit Bank ringe for en snak om din boligøkonomi?
Fortæl os, hvornår det passer dig, så ringer en rådgiver fra Nykredit Bank dig op til en uforpligtende snak om dine lånemuligheder. Så er du et skridt tættere på din nye bolig.
Vi bruger dine oplysninger til at forberede samtalen. Læs mere i Nykredit Banks privatlivspolitik
Kontakt

Kontakt
Morten Laj Grønlund
Skal du også sælge?
Kontakt os og få en gratis salgsvurdering, så ved du hvad din bolig er værd.
- Få et hurtigt estimat af salgspris eller en grundig vurdering.
- Få et indblik i, hvad din ejendom er værd på markedet lige nu.
- Find ud af, hvor meget du selv kan købe for, hvis du ønsker at skifte bolig.
Hvor langt er der til nærmeste?
Se hvor lang tid der er mellem denne bolig og en anden adresse
Fakta om Næstved Kommune
INDBYGGERE
GRUNDSKYLD
KOMMUNESKAT
SKOLER
BØRNEPASNING
Opret dig i køberkartoteket og få besked om lignende boliger.
Få direkte besked, når der kommer relevante nye boliger til salg, der matcher dine ønsker. Du ser også de boliger, vi får til salg, som vi ikke viser på Nybolig.dk.
Tilpas filtre og opret