Stor ejendom beliggende med nemme adgangsforhold i Vipperød, og på en stor, flot anlagt grund med ugeneret
have, samt gode parkeringsforhold. I ejendommens grundareal på 4481m² indgår vejareal på 1633m², idet der fra ejendommen for år tilbage er udstykket 10 parcelhusgrunde.
Ejendommen fremtræder pænt vedligeholdt og har oprindeligt været erhvervsbygning som lagerhal m.v. til frugtplantage. Her er masser af plads med bebygget areal på 373m², 1. sal på 290m² og fuld kælder på 373m² - i alt etageareal på 1036m².
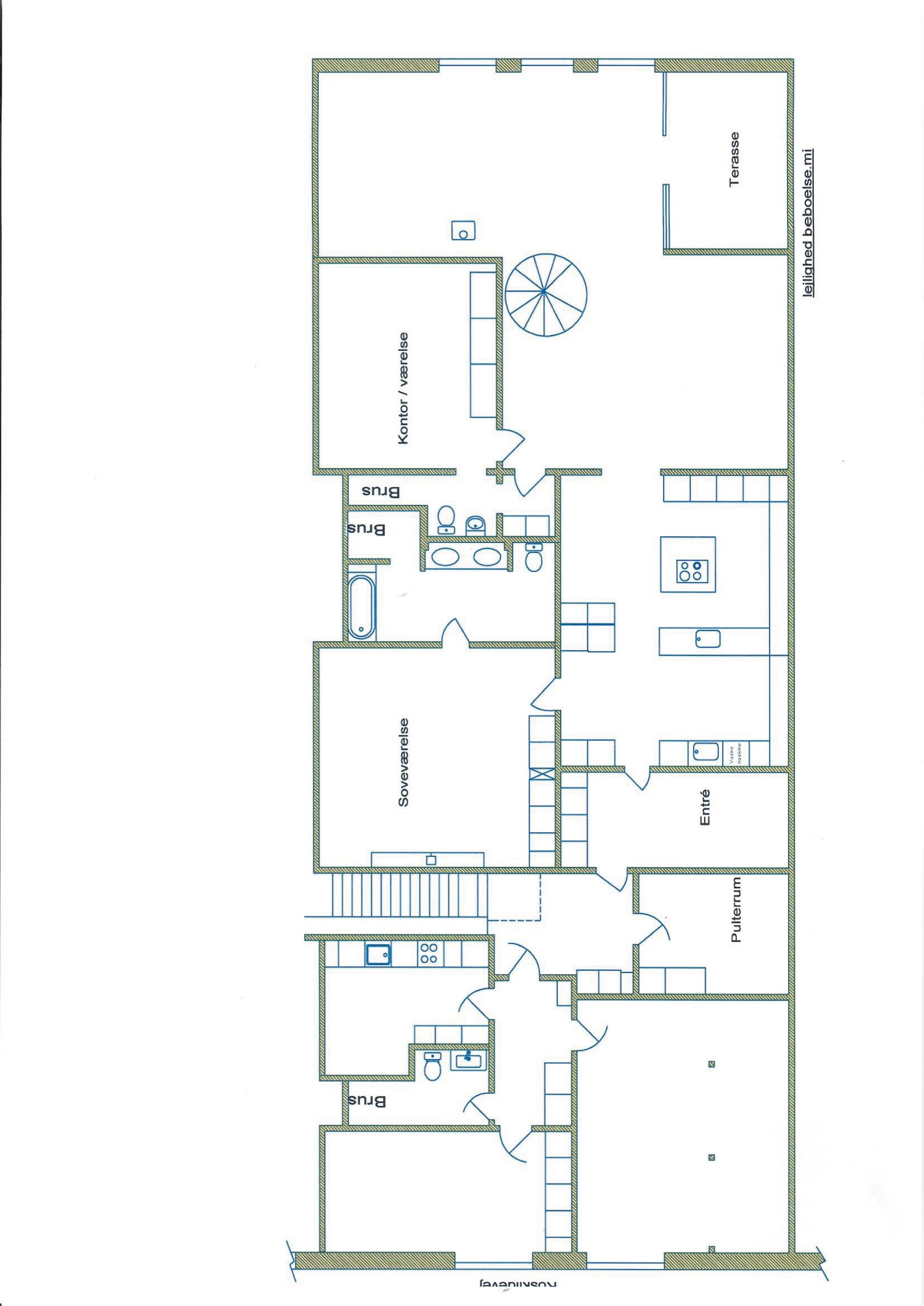
Ejerne har privat bolig på ejendommens 1. sal, der reelt er indrettet i 2 boliger der kan anvendes uafhængigt af hinanden. Den ene som en stor bolig på over 200m² + hems, og den anden på anslået 80-90m². Den store bolig er indrettet med gang, bryggers, stort spisekøkken (køkken/alrum), stor stue med brændeovn og vindeltrappe til hems, samt udgang til altan/terrasse, værelse/kontor, soveværelse med eget badeværelse, yderligere et badeværelse. Den lille bolig er indrettet med gang, køkken, stue, badeværelse, og soveværelse.
Stueetagen er BBR-mæssigt registreret som bolig - bortset fra 75m² erhverv. Reelt har stueetagen været indrettet til erhvervsmæssige formål som kontor, klinik, tegnestue o.l. Pt er udlejet ca. 30m² til fodklinik, der ophører med udgangen af september og lejer fraflytter.
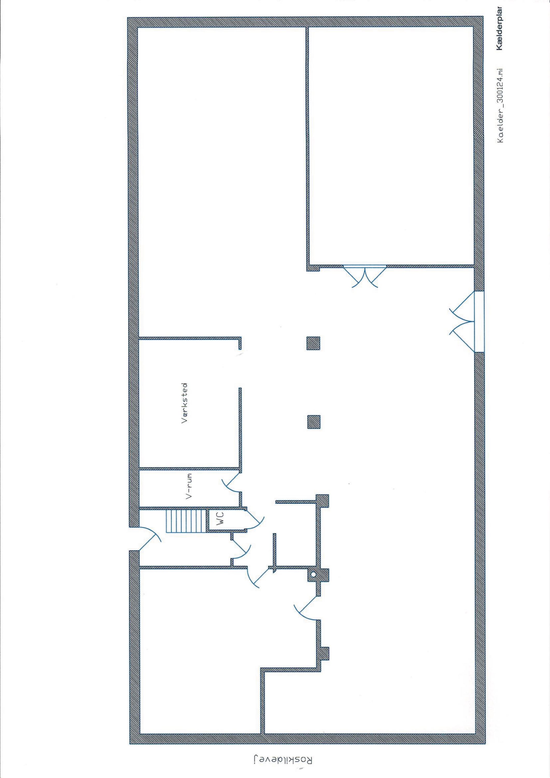
Kælderen er en høj, tør kælder med god loftshøjde, og indrettet som fx garage, værksted, samt diverse disponible rum. Der er gode adgangsforhold til garagen i kælderen via rampe.
Denne helt specielle ejendom er yderst velegnet til den store familie, flere generationer, dig med egen virksomhed, der kan kombineres med boligen, og desuden til fx. bo-/opholdssted/krisecenter o.l.
For yderligere oplysninger og aftale om fremvisning kontakt venligst Nybolig eller Nordicals
Økonomien i boligen
Skal Nykredit Bank ringe for en snak om din boligøkonomi?
Fortæl os, hvornår det passer dig, så ringer en rådgiver fra Nykredit Bank dig op til en uforpligtende snak om dine lånemuligheder. Så er du et skridt tættere på din nye bolig.
Vi bruger dine oplysninger til at forberede samtalen. Læs mere i Nykredit Banks privatlivspolitik
Kontakt

Kontakt
Thomas Skau Lundvig
Skal du også sælge?
Kontakt os og få en gratis salgsvurdering, så ved du hvad din bolig er værd.
- Få et hurtigt estimat af salgspris eller en grundig vurdering.
- Få et indblik i, hvad din ejendom er værd på markedet lige nu.
- Find ud af, hvor meget du selv kan købe for, hvis du ønsker at skifte bolig.
Hvor langt er der til nærmeste?
Se hvor lang tid der er mellem denne bolig og en anden adresse
Fakta om Holbæk Kommune
INDBYGGERE
GRUNDSKYLD
KOMMUNESKAT
SKOLER
BØRNEPASNING
Opret dig i køberkartoteket og få besked om lignende boliger.
Få direkte besked, når der kommer relevante nye boliger til salg, der matcher dine ønsker. Du ser også de boliger, vi får til salg, som vi ikke viser på Nybolig.dk.
Tilpas filtre og opret