Velbygget kvalitetshus med ugeneret beliggenhed
I hjertet af Svinninge finder I denne arkitekttegnet villa, med en spændende planløsning - der står klar til at byde nye ejere velkommen. Villaen har en brugbar og interessant indretning, der sammen med den ugenerede beliggenhed tæt på hverdagens gøremål skaber en ideel ramme for familielivet. Boligen er beliggende tilbagetrukket fra Hovedgaden og støj derfra, og ligger lige ud til store grønne områder samt åen. Denne beliggenhed giver en følelse af at være omgivet af naturen, idet der er eng, træer og buske så langt øjer rækker.
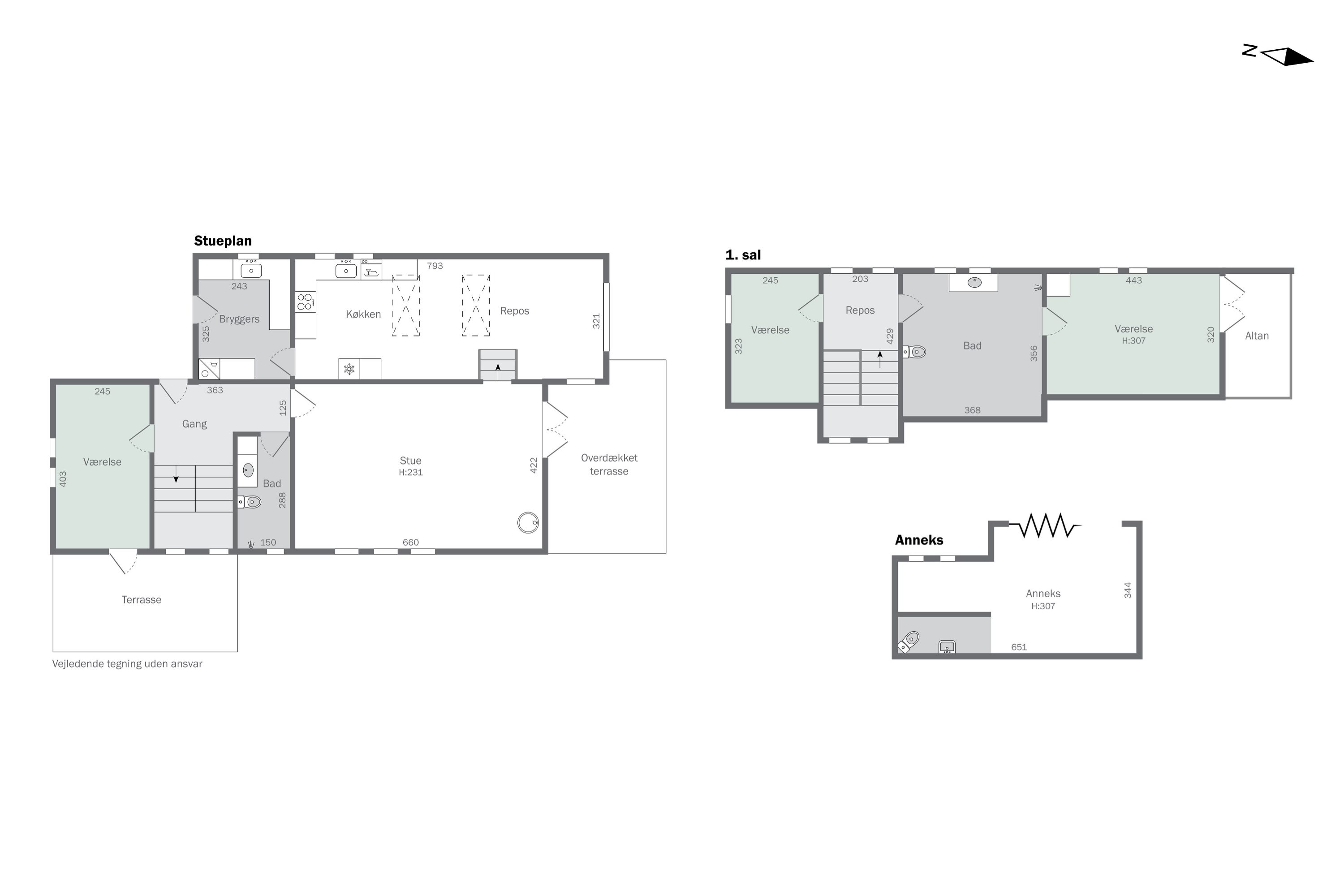
Centrum af boligen udgøres af en rummelig og spændende stue og et stort, godt køkken med masser af naturligt dagslys fra ovenlysvinduerne. Atmosfæren er rar og imødekommende, og plads til samvær kommer I ikke til at mangle noget af. I køkkenet får I nemlig både masser af skabsopbevaring til remedierne, og plads til det store middagsbord. Herfra adgang til niveauforskudt stue, hvor I kan etablere de bløde sektioner. Stueetagen rummer også et bryggers til vaskefaciliteter og med udgang til grunden. Tillige et nydeligt badeværelse med bruseplads. Et regulært og fint soveværelse, der kan indrettes efter jeres behov. På førstesalen venter yderligere to værelser – begge i god størrelse - hvoraf det største har en imponerende loftshøjde på over tre meter samt udgang til en sydvendt altan – med udsigt over området. Et anseeligt og fint badeværelse fuldender etagen. Der er nye gulve i hele huset.
Fra stuen er der direkte adgang til en overdækket terrasse mod syd, der forlænger opholdsafsnittet i sommerhalvåret. Her får I et privat udendørsrum til afslapning og sociale sammenkomster. Den anden terrasse vender mod vest og er oplagt til sommerens grillmiddage. Resten af udemiljøet byder på en enkel og pæn beplantning, og giver tillige muligheden for at nyde de omkringliggende grønne arealer og det rige fugleliv. Her er dejligt ude som inde – og højt til himlen.
Til huset hører endvidere et nyere anneks på 28 kvm, opført i god stil som hovedhuset, og med godt opholdsrum som stue, soverum eller kontor samt et toiletrum med håndvask. Her er varmepumpe og gulvvarme, og plads til alt fra teenagere, bedsteforældre eller arbejdspladsen. Mulighederne er mange.
Beliggenheden midt på Hovedgaden er central, hvilket sikrer jer kort afstand til alt. Derved bliver hverdagen både nem og bekvem. Ejendommen er placeret inden for gåafstand til indkøb, daginstitution, Svinninge Skole, idrætsfaciliteter og stationen med gode togforbindelser. Naturskønne omgivelser har I heller ikke langt til med blot 400 meter til Bjerregårdsskoven.
Velkommen til et helt særligt sted.
Økonomien i boligen
Skal Nykredit Bank ringe for en snak om din boligøkonomi?
Fortæl os, hvornår det passer dig, så ringer en rådgiver fra Nykredit Bank dig op til en uforpligtende snak om dine lånemuligheder. Så er du et skridt tættere på din nye bolig.
Vi bruger dine oplysninger til at forberede samtalen. Læs mere i Nykredit Banks privatlivspolitik
Kontakt

Kontakt
Line Friis
Skal du også sælge?
Kontakt os og få en gratis salgsvurdering, så ved du hvad din bolig er værd.
- Få et hurtigt estimat af salgspris eller en grundig vurdering.
- Få et indblik i, hvad din ejendom er værd på markedet lige nu.
- Find ud af, hvor meget du selv kan købe for, hvis du ønsker at skifte bolig.
Hvor langt er der til nærmeste?
Se hvor lang tid der er mellem denne bolig og en anden adresse
Fakta om Holbæk Kommune
INDBYGGERE
GRUNDSKYLD
KOMMUNESKAT
SKOLER
BØRNEPASNING
Opret dig i køberkartoteket og få besked om lignende boliger.
Få direkte besked, når der kommer relevante nye boliger til salg, der matcher dine ønsker. Du ser også de boliger, vi får til salg, som vi ikke viser på Nybolig.dk.
Tilpas filtre og opret