Villa på 204 kvalitetskvadratmeter med tonsvis af muligheder og nyere luft/vand anlæg
Velkommen til Møllebakken 59 i det evigt attraktive Rørvig. Her skal I præsenteres for en villa på tre etager, der tilsammen giver jer 308 etagemeter fyldt med kvalitet og muligheder. De rummelige takter fortsætter udenfor, hvor en fantastisk grund på 2.349 kvadratmeter giver udelivet frit spil.
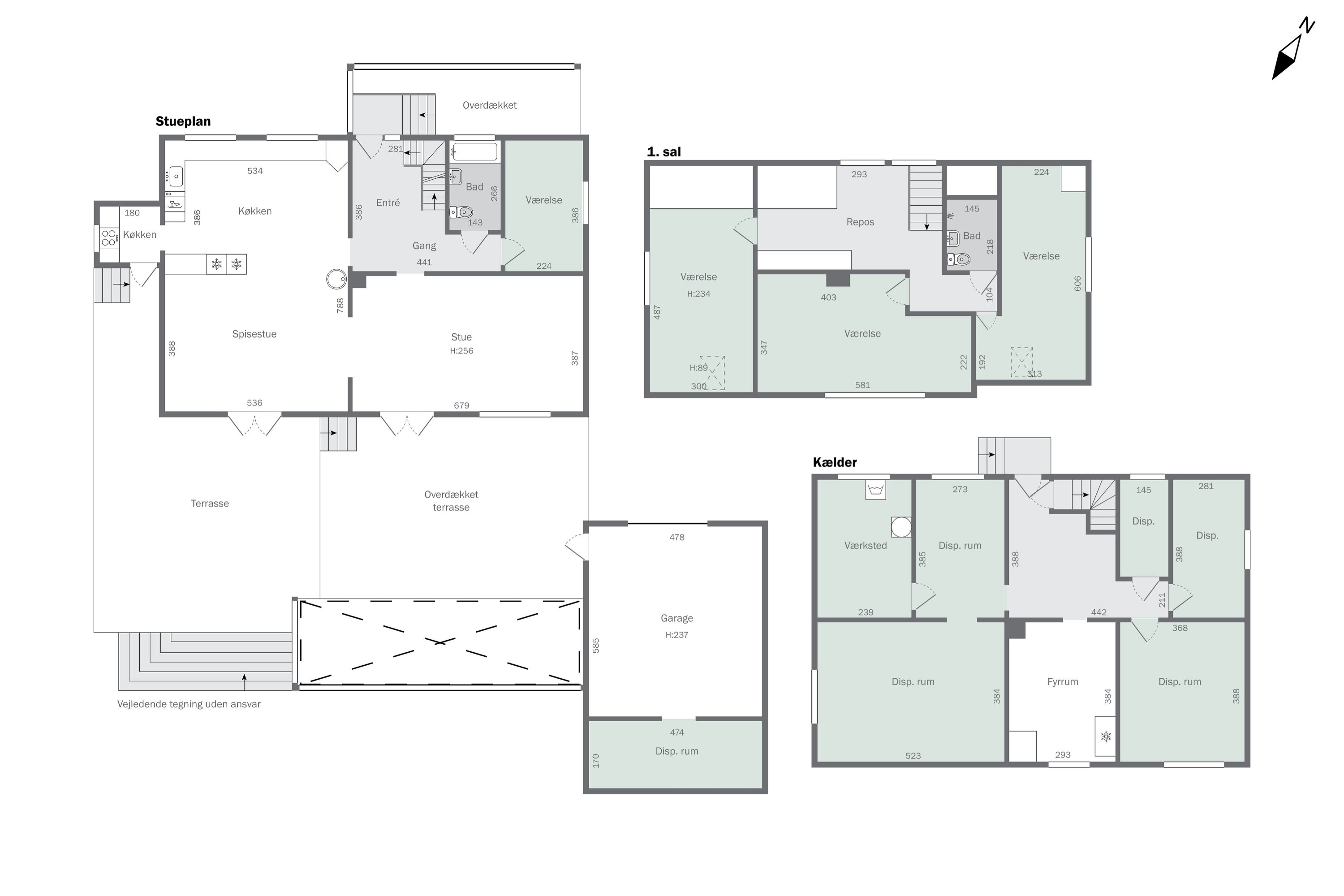
Set udefra præsenterer huset sig med hvid facade og et rødt tag med en særlig, arkitektonisk udformning, der skiller sig ud fra mængden. Sidstnævnte frase er også rammende for det indvendige interiør. Her får I først et lyst og åbent stueplan at se med et velfungerende rumforløb mellem det elegante køkken, spisestuen og stuen. To sæt dobbeltdøre lader jer tilgå terrassen direkte.
Etagen afrundes af et værelse og et badeværelse. Herefter går turen op på førstesalen, hvor endnu et værelse byder sig til i selskab med tre store værelser. Reposen er tilmed så anseelig, at den kan indtænkes i indretningen. I har stadig masser af anvendelige kvadratmeter til gode, for nede i kælderen får I hele fem disponible rum og mere til.
Den kæmpestore og toplækre terrasse vender ideelt for solen, og takket være den delvise overdækning er det derfor muligt at opsøge både varmen og skyggen. Grunden er en del større end gennemsnittet, og qua de store, ranke træer skabes der et helt særligt uderum.
I flytter ind i et rart og veludstyret område af Rørvig med under 700 meter til både indkøbsmuligheder, daginstitution og offentlig transport. Meget længere er der heller ikke til vandkanten, den hyggelige havn, Rørvig Friskole, og listen fortsætter.
OBS: Da huset er lejet ud, skal lejer have to ugers varsel inden fremvisning.
Økonomien i boligen
Skal Nykredit Bank ringe for en snak om din boligøkonomi?
Fortæl os, hvornår det passer dig, så ringer en rådgiver fra Nykredit Bank dig op til en uforpligtende snak om dine lånemuligheder. Så er du et skridt tættere på din nye bolig.
Vi bruger dine oplysninger til at forberede samtalen. Læs mere i Nykredit Banks privatlivspolitik
Kontakt

Kontakt
Bastian Flindt
Skal du også sælge?
Kontakt os og få en gratis salgsvurdering, så ved du hvad din bolig er værd.
- Få et hurtigt estimat af salgspris eller en grundig vurdering.
- Få et indblik i, hvad din ejendom er værd på markedet lige nu.
- Find ud af, hvor meget du selv kan købe for, hvis du ønsker at skifte bolig.
Hvor langt er der til nærmeste?
Se hvor lang tid der er mellem denne bolig og en anden adresse
Fakta om Odsherred Kommune
INDBYGGERE
GRUNDSKYLD
KOMMUNESKAT
SKOLER
BØRNEPASNING
Opret dig i køberkartoteket og få besked om lignende boliger.
Få direkte besked, når der kommer relevante nye boliger til salg, der matcher dine ønsker. Du ser også de boliger, vi får til salg, som vi ikke viser på Nybolig.dk.
Tilpas filtre og opret