Indbydende villa i naturskønne omgivelser
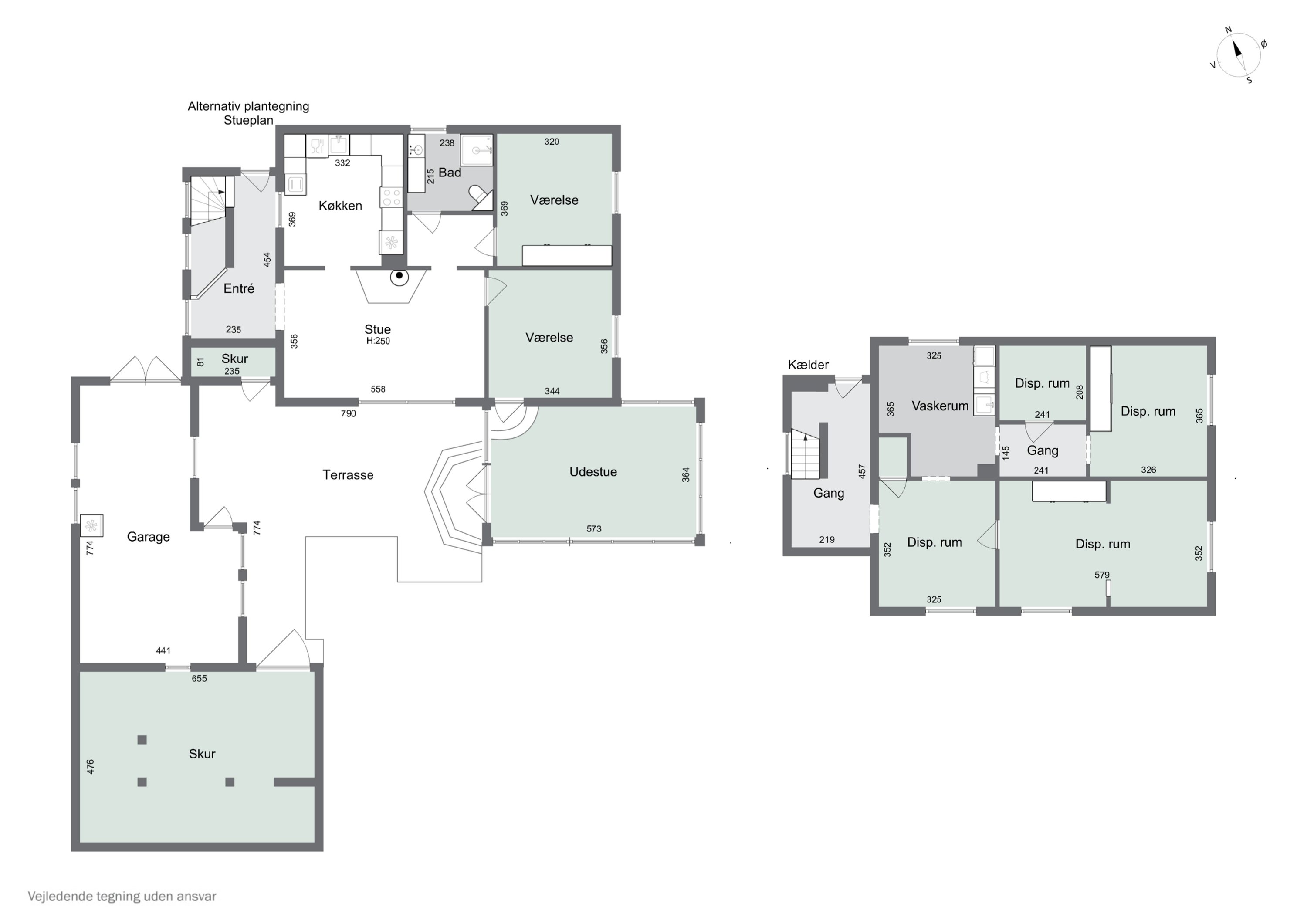
Velkommen til denne charmerende villa i Faxe Ladeplads, hvor moderne komfort møder landlig idyl. Med sine 93 kvadratmeter og en veludnyttet grund på 774 kvadratmeter, tilbyder denne bolig en indbydende atmosfære, der er perfekt til både førstegangskøbere, unge par og børnefamilier. Ejendommen er indflytningsklar og præsenterer sig med et nyere køkken og badeværelse, der giver et friskt og moderne præg. Når du træder ind i stuen, bliver du mødt af et fantastisk lysindfald fra de store vinduer, der åbner op mod haven. Her er der plads til hyggelige stunder med familie og venner, og den åbne planløsning skaber en naturlig forbindelse mellem stue og køkken. Det moderne køkken er udstyret med stilfulde materialer og funktionelle løsninger, der gør madlavningen til en fornøjelse. Fra stuen er der direkte adgang til en skøn udestue, hvor du kan nyde morgenkaffen, mens du betragter haven og det omkringliggende landskab. Villaens soveværelse er rummeligt og indbydende, og derudover er der mulighed for at indrette et ekstra alrum eller kontor i kælderen, som også rummer gode opbevaringsmuligheder. Den store kælder på 93 kvadratmeter er tør og anvendelig, hvilket giver dig mulighed for at skabe et hobbyrum, kontor eller ekstra opbevaringsplads. Udenfor venter en dejlig have, der indbyder til leg og afslapning. Her kan du nyde de lange sommeraftener på terrassen, hvor du kan samle familien til grill og hyggeligt samvær. Gårdmiljøet er perfekt til haveelskere, der ønsker at dyrke deres egne planter og blomster. Beliggenheden i Faxe Ladeplads giver dig det bedste fra begge verdener – du bor tæt på naturen, men har samtidig nem adgang til byens faciliteter. Området byder på grønne arealer, legepladser og gode indkøbsmuligheder, mens den smukke kystlinje kun er en kort gåtur væk. Her kan du nyde strandliv, gåture langs vandet og de naturskønne omgivelser. Tag chancen for at opleve denne dejlige villa, der er klar til at blive dit nye hjem. Bestil din fremvisning i dag, og lad dig inspirere af de mange muligheder, denne bolig har at byde på!
Økonomien i boligen
Skal Nykredit Bank ringe for en snak om din boligøkonomi?
Fortæl os, hvornår det passer dig, så ringer en rådgiver fra Nykredit Bank dig op til en uforpligtende snak om dine lånemuligheder. Så er du et skridt tættere på din nye bolig.
Vi bruger dine oplysninger til at forberede samtalen. Læs mere i Nykredit Banks privatlivspolitik
Kontakt

Kontakt
Søren Jagd Lauritsen
Skal du også sælge?
Kontakt os og få en gratis salgsvurdering, så ved du hvad din bolig er værd.
- Få et hurtigt estimat af salgspris eller en grundig vurdering.
- Få et indblik i, hvad din ejendom er værd på markedet lige nu.
- Find ud af, hvor meget du selv kan købe for, hvis du ønsker at skifte bolig.
Hvor langt er der til nærmeste?
Se hvor lang tid der er mellem denne bolig og en anden adresse
Fakta om Faxe Kommune
INDBYGGERE
GRUNDSKYLD
KOMMUNESKAT
SKOLER
BØRNEPASNING
Opret dig i køberkartoteket og få besked om lignende boliger.
Få direkte besked, når der kommer relevante nye boliger til salg, der matcher dine ønsker. Du ser også de boliger, vi får til salg, som vi ikke viser på Nybolig.dk.
Tilpas filtre og opret