Billigt hus nær Haslev og Ringsted
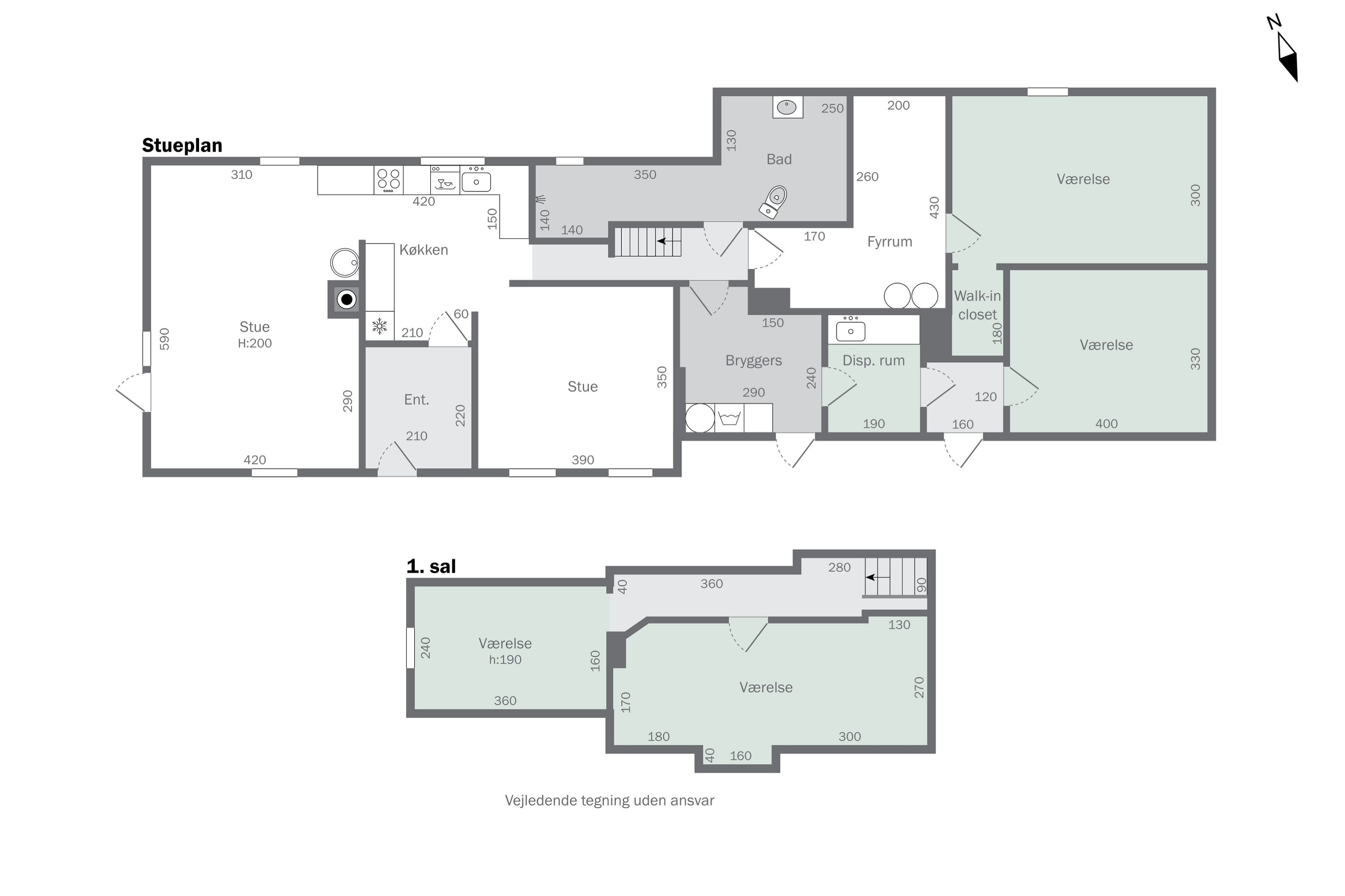
Førslev er et hyggeligt lokalsamfund med et godt sammenhold og en attraktiv placering nær både Haslev og Ringsted. Her kan I netop nu erhverve jer et billigt hus, som ligger godt placeret i det naturskønne område, ligesom der er gode kvadratmeter og disponible rum, som giver jer endnu flere muligheder. De grønne fingre kan også slippes løs i haven med terrasse og højbede. Køkkenet er placeret med en stue på hver side, så I får en oplagt dagligstue og et spiseafsnit. Selve køkkenet har lyse fronter og stålfarvede hårde hvidevarer, mens de synlige bjælker og sprosseruderne bidrager til en utrolig hyggelig stemning, som fuldendes af brændeovnen. De fire værelser er godt fordelt i huset, og da I har to af dem i stueplan, kan I etablere en forældreafdeling, hvis I ønsker det. Det ene værelse har tilmed et walk-in-closet, og desuden har I også badeværelset hernede. Går I ovenpå, er der yderligere to gode værelser, så I får mange muligheder. I kan gå i haven via stuen, så grænsen mellem inde og ude udviskes gennem de varme måneder. Haven har blandt andet en fliseterrasse og en anseelig græsplæne, som giver masser af plads til leg og aktiviteter. Der er ligeledes højbede, drivhus og en række disponible rum, så I også får plads til hobbyer og alt muligt andet. Lokalt er der en aktiv idrætsforening, så I kan dyrke sport og få nye bekendtskaber, ligesom der er busforbindelser til Haslev. Her finder I alt, hvad I ellers skal bruge i form af skole, indkøb, pasningstilbud og endnu flere fritidsaktiviteter. Det er også praktisk med nærheden til Ringsted, hvorfra I kan tage toget til København, ligesom den nemme rute til motorvejen er et plus.
Økonomien i boligen
Skal Nykredit Bank ringe for en snak om din boligøkonomi?
Fortæl os, hvornår det passer dig, så ringer en rådgiver fra Nykredit Bank dig op til en uforpligtende snak om dine lånemuligheder. Så er du et skridt tættere på din nye bolig.
Vi bruger dine oplysninger til at forberede samtalen. Læs mere i Nykredit Banks privatlivspolitik
Kontakt

Kontakt
Christina Skov Algreen-Ussing
Skal du også sælge?
Kontakt os og få en gratis salgsvurdering, så ved du hvad din bolig er værd.
- Få et hurtigt estimat af salgspris eller en grundig vurdering.
- Få et indblik i, hvad din ejendom er værd på markedet lige nu.
- Find ud af, hvor meget du selv kan købe for, hvis du ønsker at skifte bolig.
Hvor langt er der til nærmeste?
Se hvor lang tid der er mellem denne bolig og en anden adresse
Fakta om Faxe Kommune
INDBYGGERE
GRUNDSKYLD
KOMMUNESKAT
SKOLER
BØRNEPASNING
Opret dig i køberkartoteket og få besked om lignende boliger.
Få direkte besked, når der kommer relevante nye boliger til salg, der matcher dine ønsker. Du ser også de boliger, vi får til salg, som vi ikke viser på Nybolig.dk.
Tilpas filtre og opret