Ejendom med mange muligheder, fredelige beliggenhed og en dejlig stor have
I bunden af et lukket vænge i Hyllinge ligger denne fine etplansvilla, der ikke alene byder på en velkomponeret planløsning og en god placering i forhold til alle hverdagens gøremål. I kan nemlig også se frem til en dejlig have, og både inde og ude er der potentiale for at sætte jeres eget præg på ejendommen.
Beliggenheden er attraktiv, og det er den ikke mindst fordi, at der er så korte afstande til alt det, I har brug for, når dagligdagen skal gå op i en højere enhed. Inden for en radius af bare 750 meter kan I tilgå skole, pasningstilbud og fritidsaktiviteter, mens de nærmeste dagligvareforretninger ligger i Fuglebjerg, Sandved og Menstrup. Flot natur er der også i området, og lige i baghaven kan I tilgå Fodsporet, der er perfekt til ture ud i det fri.
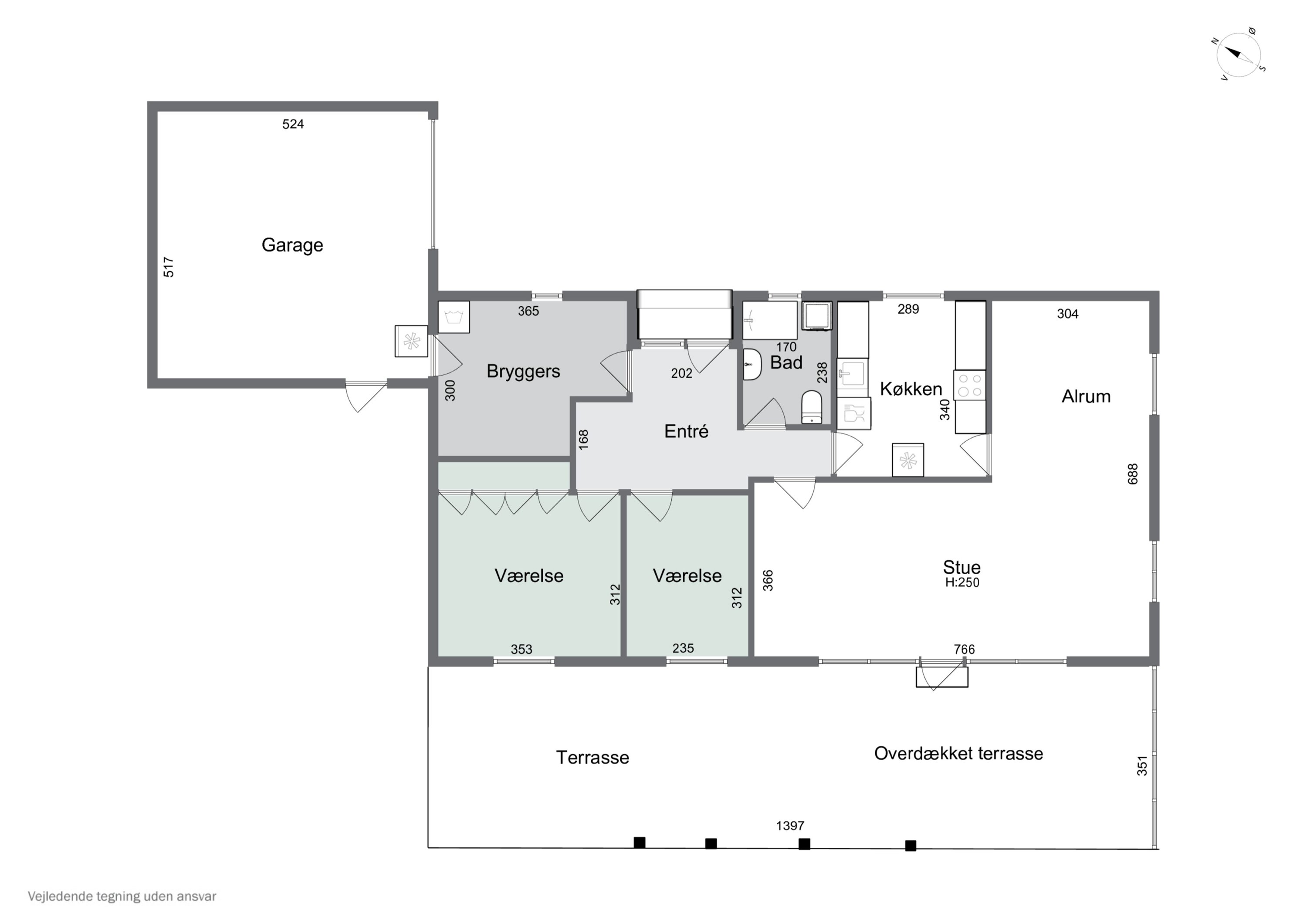
Villaen fremstår med et fint udseende i form af hvide sten og sort træværk. Der er i de seneste år lavet ganske mange forbedringer rundt om i huset, og inden døre ankommer I til en bolig på 110 kvadratmeter, som er centreret omkring den anseelige stue. Her er et godt og behageligt lysindfald, og takket være stuens størrelse er den meget nem at indrette.
Det resterende af hjemmet består af et køkken med hvide skabe, et badeværelse, hvor de blå fliser bidrager til et harmonisk udtryk, mens de to værelser og et praktisk bryggers sætter prikken over i’et.
Haven er holdt i en enkel stil. Der er fine terrasser, både med og uden overdække, og da grunden er nem at passe, er der god tid til at slappe af under solen.
Lyder det som noget for jer? Så kontakt os for en fremvisning eller yderligere information allerede i dag.
Økonomien i boligen
Skal Nykredit Bank ringe for en snak om din boligøkonomi?
Fortæl os, hvornår det passer dig, så ringer en rådgiver fra Nykredit Bank dig op til en uforpligtende snak om dine lånemuligheder. Så er du et skridt tættere på din nye bolig.
Vi bruger dine oplysninger til at forberede samtalen. Læs mere i Nykredit Banks privatlivspolitik
Kontakt

Kontakt
Ian Hanna
Skal du også sælge?
Kontakt os og få en gratis salgsvurdering, så ved du hvad din bolig er værd.
- Få et hurtigt estimat af salgspris eller en grundig vurdering.
- Få et indblik i, hvad din ejendom er værd på markedet lige nu.
- Find ud af, hvor meget du selv kan købe for, hvis du ønsker at skifte bolig.
Hvor langt er der til nærmeste?
Se hvor lang tid der er mellem denne bolig og en anden adresse
Fakta om Næstved Kommune
INDBYGGERE
GRUNDSKYLD
KOMMUNESKAT
SKOLER
BØRNEPASNING
Opret dig i køberkartoteket og få besked om lignende boliger.
Få direkte besked, når der kommer relevante nye boliger til salg, der matcher dine ønsker. Du ser også de boliger, vi får til salg, som vi ikke viser på Nybolig.dk.
Tilpas filtre og opret