Rummelig villa med god garage og udsigt i Køng
I den hyggelige landsby Køng får I en skøn kombination mellem landlig idyl og nem adgang til det praktiske såsom indkøb og daginstitution til de små. Jeres kommende hjem er en herlig ejendom med udsigt til det åbne marklandskab. I får blandt andet fem værelser og to badeværelser.
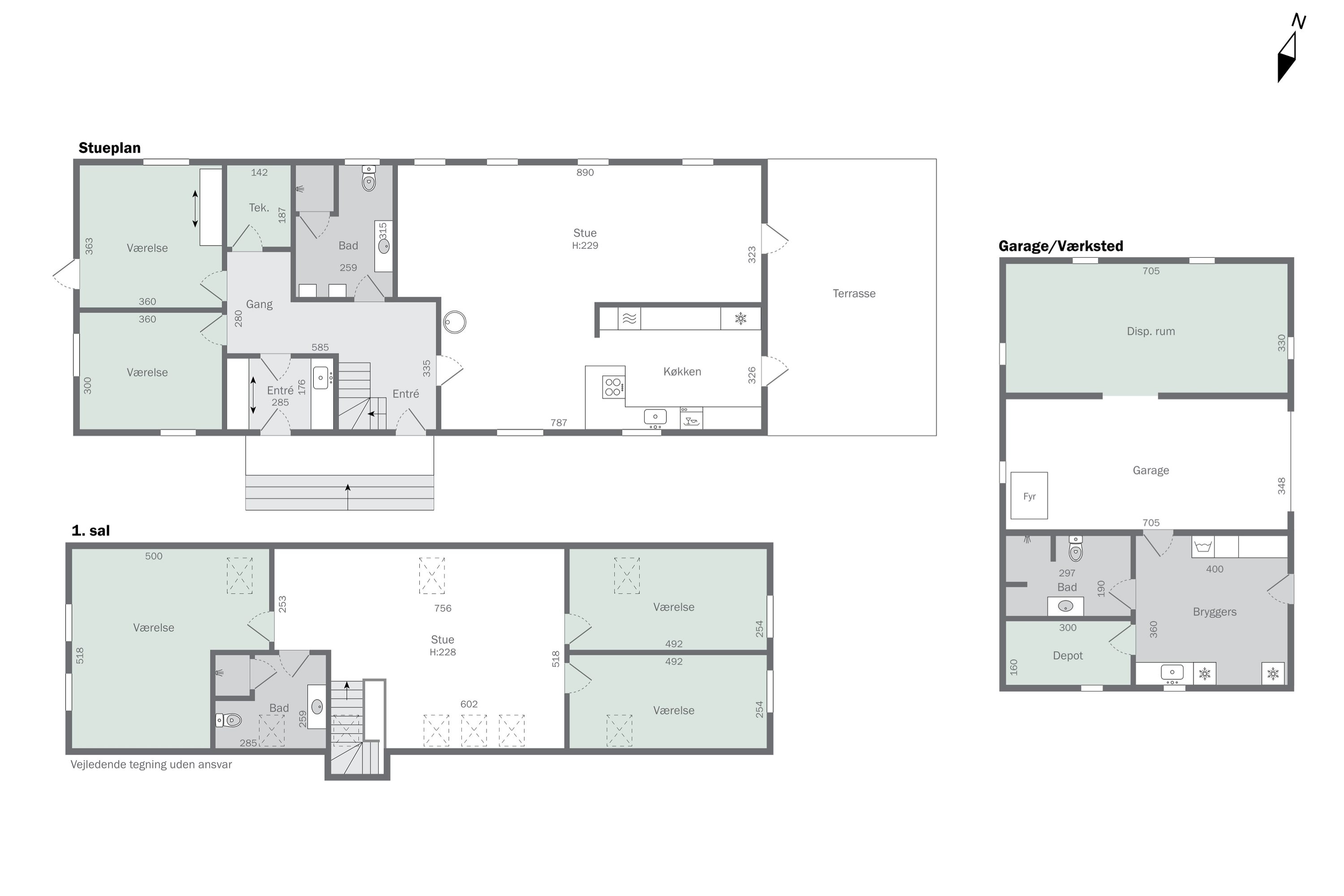
Start med at begive jer ind i hovedhuset, hvor familiens kærkomne samlingssted bliver det åbne opholdsmiljø. Stemningen er forrygende med de synlige bjælker og det dejlige lysindfald, og så er det en klar fordel, at der er gulvvarme både på denne etage og førstesalen. Køkkenet er nydeligt med hvide fyldningsfronter og vitrineskabe, og kogezonen vender ud mod alrummet og stuen, så det er let at føre samtaler under madlavningen. Der er tilmed plads til et par barstole, og endelig bemærker I de to terrassedøre.
Etagen afsluttes af to værelser, et teknikrum og ikke mindst det store badeværelse med en bruseniche. Begiv jer op til førstesalen, hvor I træder op i en stue, og med det samme bemærker I udsigten over omgivelserne. Heroppe får I tre værelser og et badeværelse mere, så der er plads til familien. Der er sågar et tredje badeværelse i udbygningen, som desuden rummer et bryggers, et disponibelt rum og en garage.
Glæd jer til sommerdage i haven, hvor børnene får masser af plæne at lege på, mens I kan slå jer ned i det hyggelige gårdmiljø, som bliver omkranset af hovedhuset og udbygningen. Udsigten er også fantastisk fra haven. Endelig har I en bred indkørsel med to dobbelte carporte.
I dette fremragende lokalmiljø finder I busforbindelser, daginstitution og indkøb, mens I blot skal omtrent fem kilometer for at nå til Svend-Gønge Skolen. I bil er der godt et kvarter til større byer i form af Næstved eller Vordingborg.
Økonomien i boligen
Skal Nykredit Bank ringe for en snak om din boligøkonomi?
Fortæl os, hvornår det passer dig, så ringer en rådgiver fra Nykredit Bank dig op til en uforpligtende snak om dine lånemuligheder. Så er du et skridt tættere på din nye bolig.
Vi bruger dine oplysninger til at forberede samtalen. Læs mere i Nykredit Banks privatlivspolitik
Kontakt

Kontakt
Mads Raalund Jensen
Skal du også sælge?
Kontakt os og få en gratis salgsvurdering, så ved du hvad din bolig er værd.
- Få et hurtigt estimat af salgspris eller en grundig vurdering.
- Få et indblik i, hvad din ejendom er værd på markedet lige nu.
- Find ud af, hvor meget du selv kan købe for, hvis du ønsker at skifte bolig.
Hvor langt er der til nærmeste?
Se hvor lang tid der er mellem denne bolig og en anden adresse
Fakta om Vordingborg Kommune
INDBYGGERE
GRUNDSKYLD
KOMMUNESKAT
SKOLER
BØRNEPASNING
Opret dig i køberkartoteket og få besked om lignende boliger.
Få direkte besked, når der kommer relevante nye boliger til salg, der matcher dine ønsker. Du ser også de boliger, vi får til salg, som vi ikke viser på Nybolig.dk.
Tilpas filtre og opret