Landejendom med stor grund
Fritliggende landejendom med udbygninger og stor grund, beliggende ca. 3½ km. syd for Sakskøbing by og Sydmotorvejen og ca. 10 km. øst for Maribo by - naturskøn beliggenhed.
Tag og vinduer på beboelsen er udskiftet på et tidspunkt.
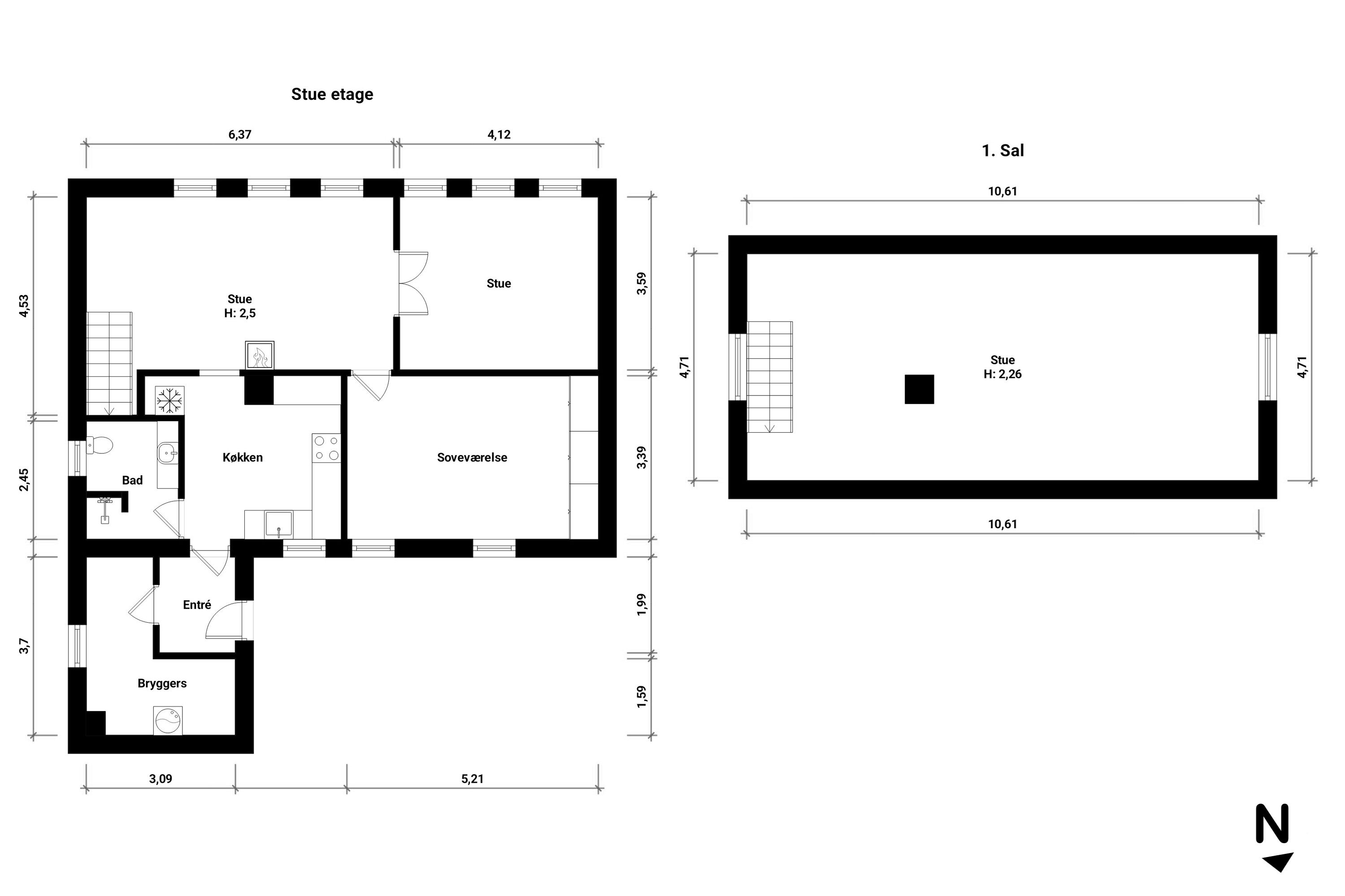
Indeholder: stueetagen på 106 kvm., er indrettet med entré, bryggers, hvidt elementkøkken, badeværelse med brus og væghængt toilet, pæn spisestue med brændeovn og trappe til husets 1. sal - fra spisestuen er der adgang til stort soveværelse med klinkegulv og skabsvæg samt yderligere opholdsstue.
Tagetagen er på 50 kvm. og er indrettet med en stor stue som kan ombygget til flere værelser.
Yderligere findes anneks på 25 kvm. godkendt til beboelse.
Tidligere stald/lo nu noteret som udhus på 106 kvm. i ældre stand samt 24 kvm. garage og 24 kvm. udhus/drivhus.
Nogen modernisering af især udbygninger må forventes.
Ejendommen er spildevandskloakeret.
Stort fritliggende grundareal mod nord med masser af udnyttelsesmuligheder.
Mulighed for at benytte ejendommen som flex-bolig uden bopælspligt.
En spændende ejendom med stort grundareal - hvem kommer så først her?
Økonomien i boligen
Skal Nykredit Bank ringe for en snak om din boligøkonomi?
Fortæl os, hvornår det passer dig, så ringer en rådgiver fra Nykredit Bank dig op til en uforpligtende snak om dine lånemuligheder. Så er du et skridt tættere på din nye bolig.
Vi bruger dine oplysninger til at forberede samtalen. Læs mere i Nykredit Banks privatlivspolitik
Kontakt

Kontakt
Brian Jacobsen
Skal du også sælge?
Kontakt os og få en gratis salgsvurdering, så ved du hvad din bolig er værd.
- Få et hurtigt estimat af salgspris eller en grundig vurdering.
- Få et indblik i, hvad din ejendom er værd på markedet lige nu.
- Find ud af, hvor meget du selv kan købe for, hvis du ønsker at skifte bolig.
Hvor langt er der til nærmeste?
Se hvor lang tid der er mellem denne bolig og en anden adresse
Fakta om Guldborgsund Kommune
INDBYGGERE
GRUNDSKYLD
KOMMUNESKAT
SKOLER
BØRNEPASNING
Opret dig i køberkartoteket og få besked om lignende boliger.
Få direkte besked, når der kommer relevante nye boliger til salg, der matcher dine ønsker. Du ser også de boliger, vi får til salg, som vi ikke viser på Nybolig.dk.
Tilpas filtre og opret