Moderne luksusvilla med plads, lys og livskvalitet på Isabellavænget 23
Her venter en ekstraordinær og moderne villa på hele 289 kvm fordelt på to indbydende etager – et hjem skabt med blik for kvalitet, funktionalitet og æstetik.
En bolig i særklasse til dig, der ønsker plads, komfort og et fredeligt nabolag tæt på Odense.
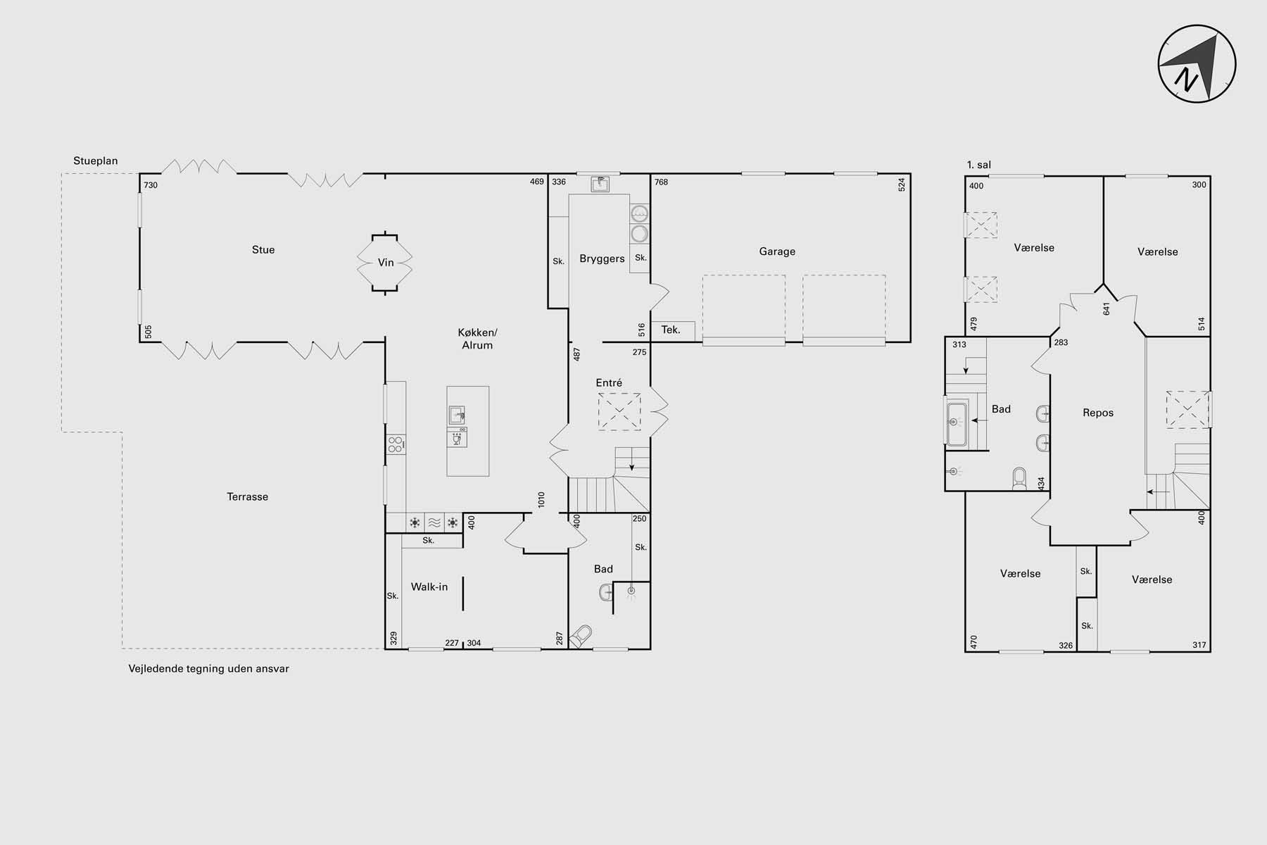
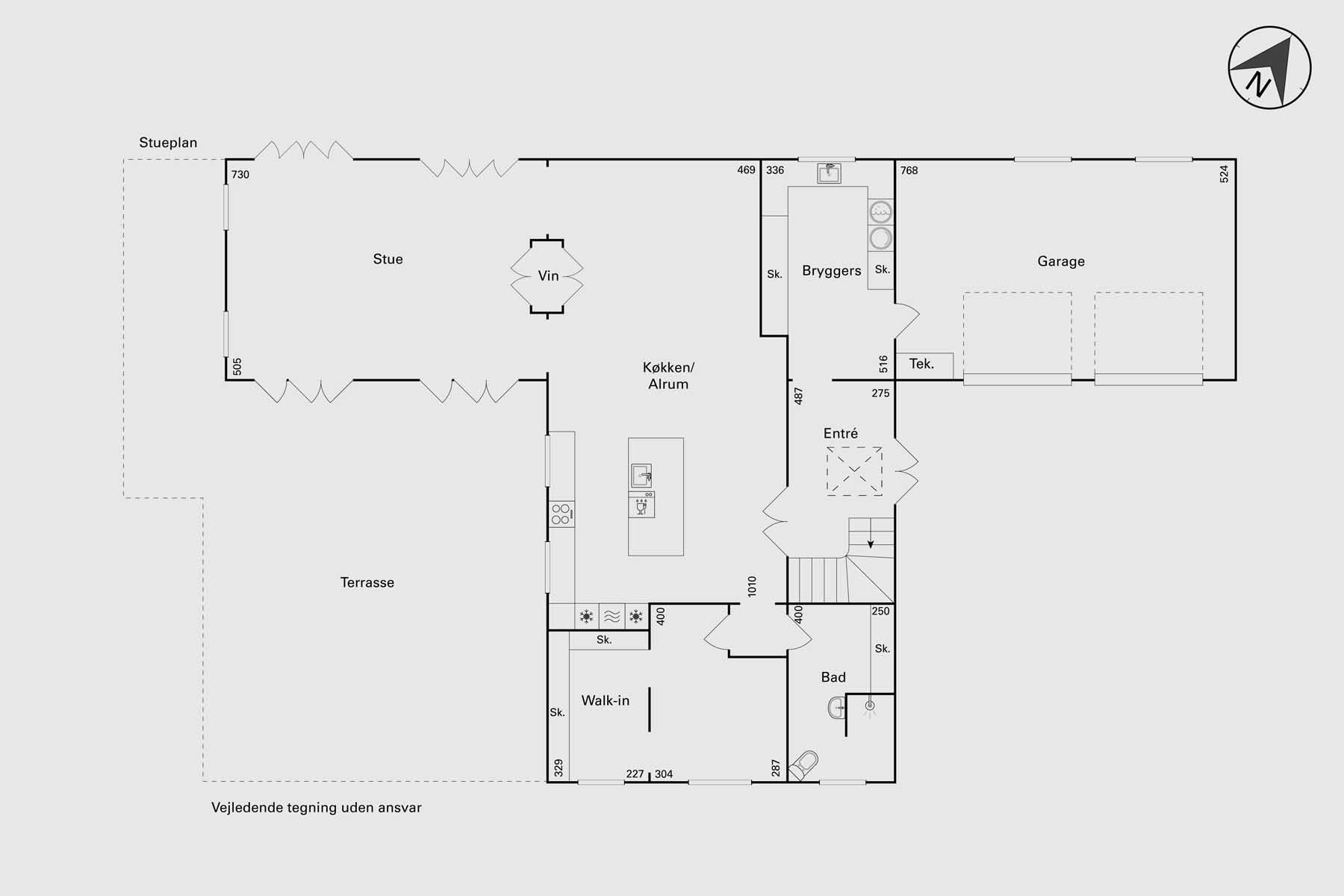
Allerede i den rummelige entré mærker du husets åbne atmosfære. Ovenlysvinduerne lukker lyset ind og leder dig naturligt videre til det store køkken-alrum, som danner hjertet i hjemmet.
Køkkenet er stilrent og moderne med en flot køkkenø og masser af bordplads. Her er plads til både madlavning, hverdagsliv og lange, hyggelige middage med familie og venner.
Fra alrummet er der åben forbindelse til den lyse stue, hvor store vinduespartier trækker haven og de grønne omgivelser helt ind i rummet.
Herfra er der udgang til en skøn, ugeneret terrasse, der indbyder til afslapning, grillhygge og rolige aftener under åben himmel.
Stueplan byder desuden på et stort soveværelse med walk-in closet, et lækkert badeværelse, et praktisk bryggers samt direkte adgang til en dobbelt garage, der i dag er indrettet som et moderne homegym – en luksus, der gør hverdagen lidt sjovere.
På førstesalen finder du en lys repos, fire rummelige værelser og endnu et stilfuldt badeværelse. Her er god plads til både børneafdeling, gæster og hjemmekontor – alt sammen i en behagelig og harmonisk atmosfære.
Udendørs fortsætter den høje standard med flere hyggelige terrasser og en privat have, hvor du kan nyde solen dagen lang og lade blikket glide ud over de grønne arealer. Et fredfyldt fristed, hvor man straks mærker roen.
Beliggenheden i Lumby kombinerer det bedste fra to verdener – fred og natur lige uden for døren, og samtidig kun kort afstand til Odense C.
Her har du skole, daginstitution, indkøb og idrætsfaciliteter inden for rækkevidde, så hverdagen glider ubesværet.
Kort sagt: Isabellavænget 23 er en bolig ud over det sædvanlige – et sted, hvor design, komfort og velvære går hånd i hånd.
Lyder dette interessant? Kontakt os allerede i dag – vi glæder os til at vise dig rundt!
Økonomien i boligen
Skal Nykredit Bank ringe for en snak om din boligøkonomi?
Fortæl os, hvornår det passer dig, så ringer en rådgiver fra Nykredit Bank dig op til en uforpligtende snak om dine lånemuligheder. Så er du et skridt tættere på din nye bolig.
Vi bruger dine oplysninger til at forberede samtalen. Læs mere i Nykredit Banks privatlivspolitik
Kontakt

Kontakt
Bahadir Demirhan
Skal du også sælge?
Kontakt os og få en gratis salgsvurdering, så ved du hvad din bolig er værd.
- Få et hurtigt estimat af salgspris eller en grundig vurdering.
- Få et indblik i, hvad din ejendom er værd på markedet lige nu.
- Find ud af, hvor meget du selv kan købe for, hvis du ønsker at skifte bolig.
Hvor langt er der til nærmeste?
Se hvor lang tid der er mellem denne bolig og en anden adresse
Fakta om Odense Kommune
INDBYGGERE
GRUNDSKYLD
KOMMUNESKAT
SKOLER
BØRNEPASNING
Opret dig i køberkartoteket og få besked om lignende boliger.
Få direkte besked, når der kommer relevante nye boliger til salg, der matcher dine ønsker. Du ser også de boliger, vi får til salg, som vi ikke viser på Nybolig.dk.
Tilpas filtre og opret