Villa i ét plan med nyt køkken og bryggers !
OMRÅDE:Præstevejen 14 er beliggende i Faster by mellem Skjern og Videbæk med ca. 5 km. til Borris og ca. 2,5 km til Astrup, hvor der i begge byer er skole, børnehave og dagligvarebutik samt et aktivt foreningsliv. Desuden er der kun 4 km. til Borris by ligeledes med skole, dagligvarehandel mm..
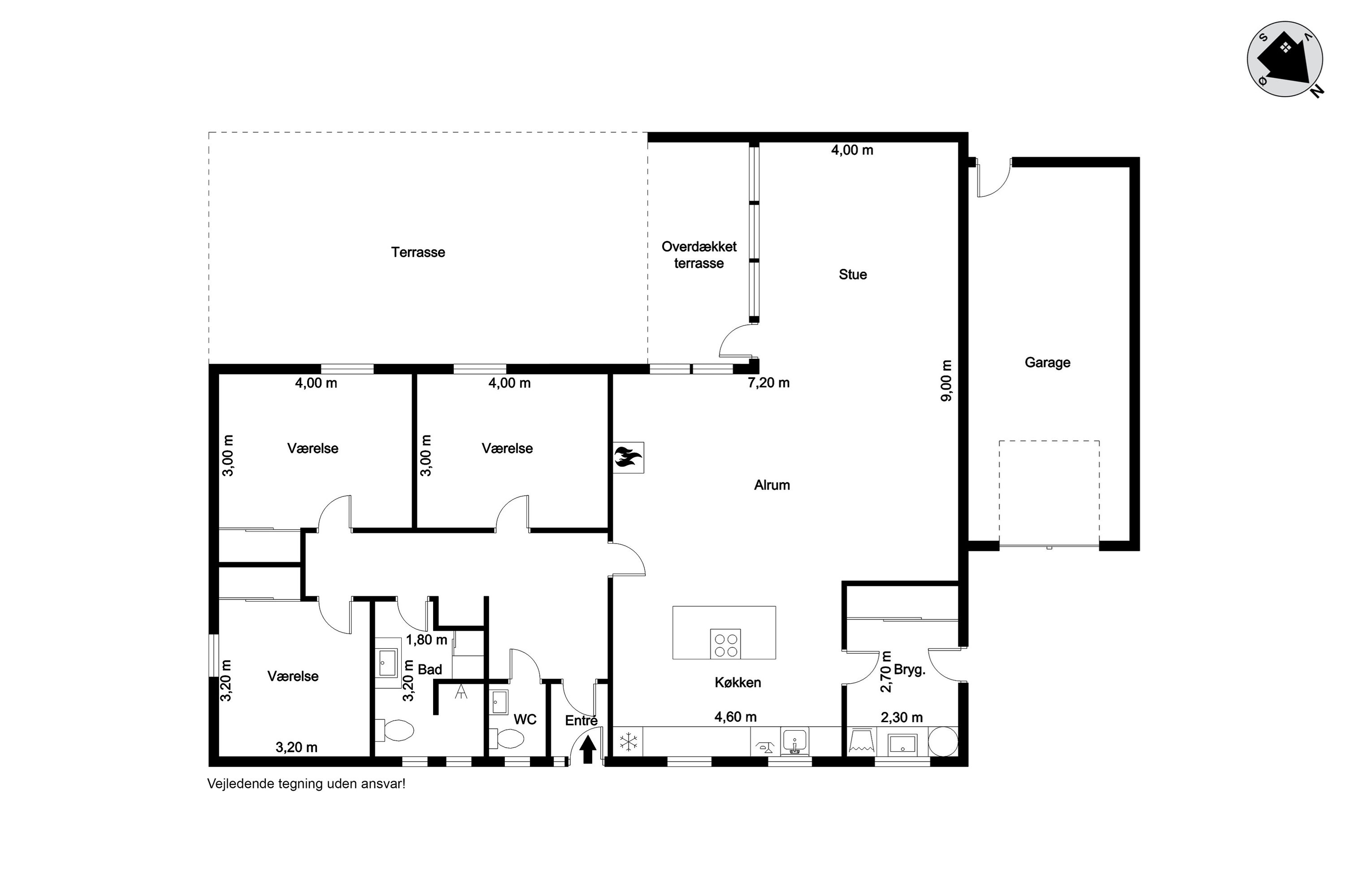
BOLIGEN:Solidt bygget villa i ét plan fra 1978 med et boligareal på 162 kvm. + muret garage.Der kan bl.a. fremhæves helt nyt flot køkken, bryggers med gulvvarme samt både badeværelse og gæstetoilet.Villaen opvarmes med GAS suppleret med nyere pille- brændeovn i køkken/alrum samt solvarme.Bemærk, efter energimærket er udarbejdet er der lavet energimæssige forbedringer i form af ekstra isolering på loft, hulmursisolering, solvarme og pille-brændeovn.
VELKOMMEN INDENFOR:Bryggers med klinker på gulv med gulvvarme, installation til vaskemaskine og tørretumbler, vask i bord. Flot nyt køkken med god spiseplads samt i åben forbindelse med stuen, hvorfra der er udgang til ugenert have. Vindfang og fordelingsgang. Gæstetoilet. Soveværelse, 2 værelser samt badeværelse med klinker på gulv med gulvvarme, stor bruseniche.
Økonomien i boligen
Skal Nykredit Bank ringe for en snak om din boligøkonomi?
Fortæl os, hvornår det passer dig, så ringer en rådgiver fra Nykredit Bank dig op til en uforpligtende snak om dine lånemuligheder. Så er du et skridt tættere på din nye bolig.
Vi bruger dine oplysninger til at forberede samtalen. Læs mere i Nykredit Banks privatlivspolitik
Kontakt

Kontakt
Kent Damgaard
Skal du også sælge?
Kontakt os og få en gratis salgsvurdering, så ved du hvad din bolig er værd.
- Få et hurtigt estimat af salgspris eller en grundig vurdering.
- Få et indblik i, hvad din ejendom er værd på markedet lige nu.
- Find ud af, hvor meget du selv kan købe for, hvis du ønsker at skifte bolig.
Hvor langt er der til nærmeste?
Se hvor lang tid der er mellem denne bolig og en anden adresse
Fakta om Ringkøbing-Skjern Kommune
INDBYGGERE
GRUNDSKYLD
KOMMUNESKAT
SKOLER
BØRNEPASNING
Opret dig i køberkartoteket og få besked om lignende boliger.
Få direkte besked, når der kommer relevante nye boliger til salg, der matcher dine ønsker. Du ser også de boliger, vi får til salg, som vi ikke viser på Nybolig.dk.
Tilpas filtre og opret