Moderniseret byhus med nyere tag, vinduer og luft-vand varmepumpe!
Er du på udkig efter en moderniseret villa i Herborg med god opbevaringsplads og en skøn, hævet overdækket terrasse? Så er Finderupvej 18 et godt bud på dit næste hjem.Værd at fremhæve er, at der er en varmepumpe fra 2022, alle vinduer er 3-lagsvinduer fra 2023, og taget er skiftet i 2024.
Boligen:
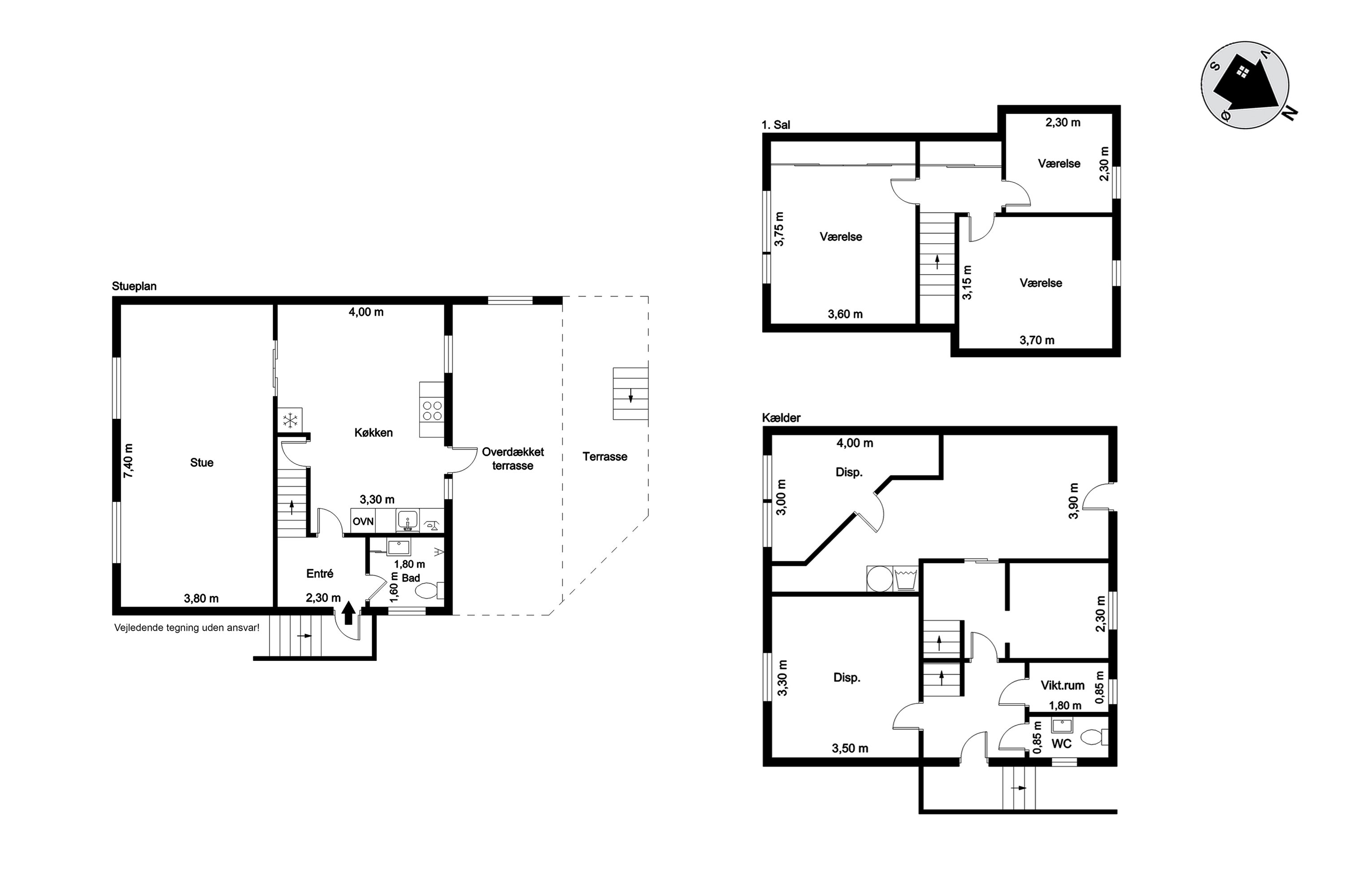
På Finderupvej får du en overskuelig planløsning, som fordeler sig over stueplan, 1. sal og kælder. På stueplan træder du ind i entréen, hvor der er direkte adgang til boligens badeværelse, trappen til 1. sal og køkken/alrummet. Køkken/alrummet rummer et skønt lysindfald og er i åben og harmonisk forbindelse til boligens stue. Fra køkkenet har du også adgang til den store overdækkede og hævede træterrasse. På 1. sal er værelsesafdelingen, hvor du finder boligens 3 værelser. I kælderen finder du et toilet, vaskefaciliteter og flere disponible rum, hvor der er gode opbevaringsmuligheder.
Højdepunkter:
- Tag fra 2024
- 3-lagsvinduer fra 2023
- Varmepumpe fra 2022
- Skøn hævet og overdækket træterrasse
- Gode opbevaringsmuligheder
Kunne denne skønne bolig være noget for dig? Så grib telefonen og bestil en fremvisning. Ring til os på 9717 3966.
Økonomien i boligen
Skal Nykredit Bank ringe for en snak om din boligøkonomi?
Fortæl os, hvornår det passer dig, så ringer en rådgiver fra Nykredit Bank dig op til en uforpligtende snak om dine lånemuligheder. Så er du et skridt tættere på din nye bolig.
Vi bruger dine oplysninger til at forberede samtalen. Læs mere i Nykredit Banks privatlivspolitik
Kontakt

Kontakt
Mathias Skov Lynge
Skal du også sælge?
Kontakt os og få en gratis salgsvurdering, så ved du hvad din bolig er værd.
- Få et hurtigt estimat af salgspris eller en grundig vurdering.
- Få et indblik i, hvad din ejendom er værd på markedet lige nu.
- Find ud af, hvor meget du selv kan købe for, hvis du ønsker at skifte bolig.
Hvor langt er der til nærmeste?
Se hvor lang tid der er mellem denne bolig og en anden adresse
Fakta om Ringkøbing-Skjern Kommune
INDBYGGERE
GRUNDSKYLD
KOMMUNESKAT
SKOLER
BØRNEPASNING
Opret dig i køberkartoteket og få besked om lignende boliger.
Få direkte besked, når der kommer relevante nye boliger til salg, der matcher dine ønsker. Du ser også de boliger, vi får til salg, som vi ikke viser på Nybolig.dk.
Tilpas filtre og opret