Spændende familievilla i fredfyldte omgivelser
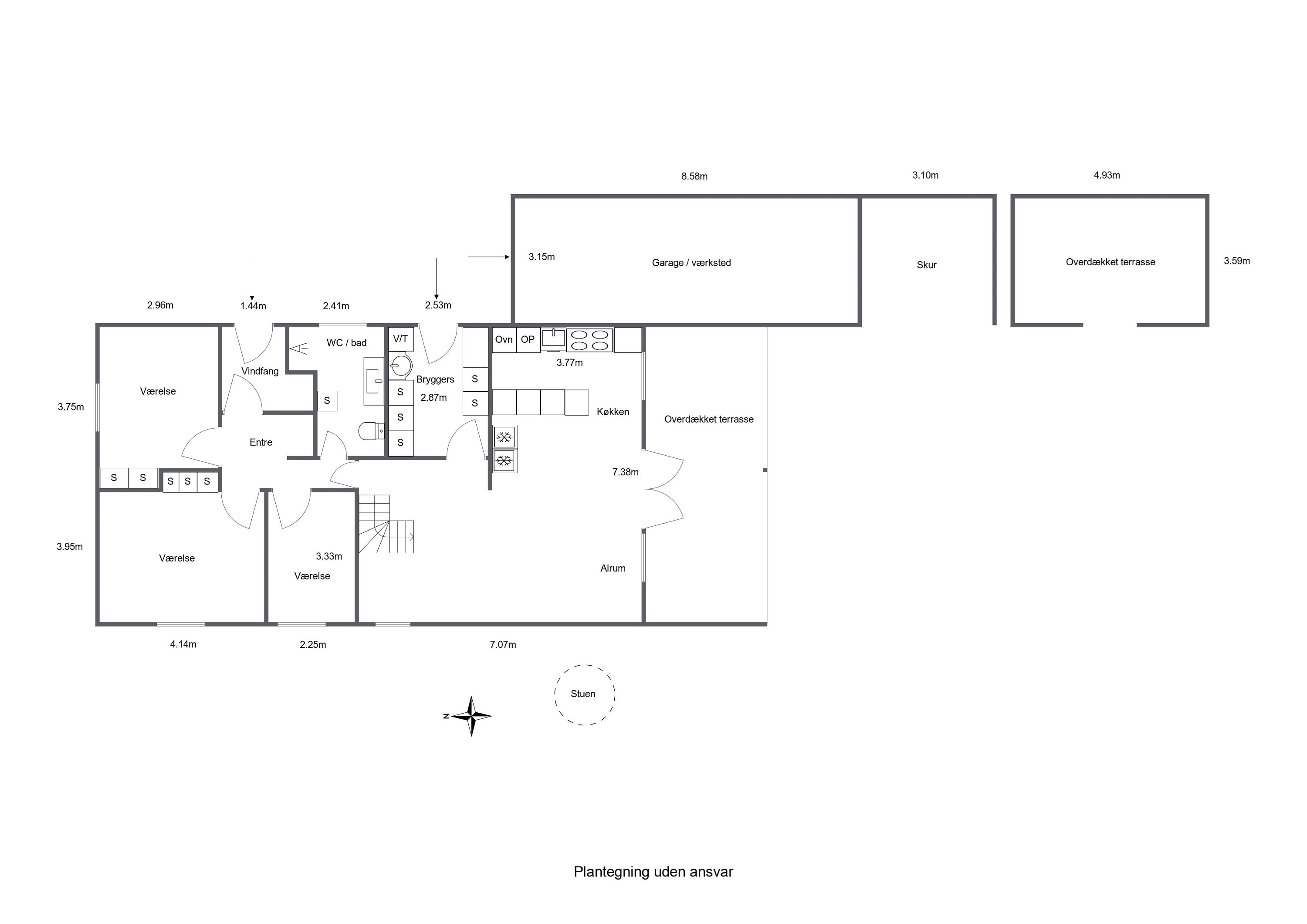
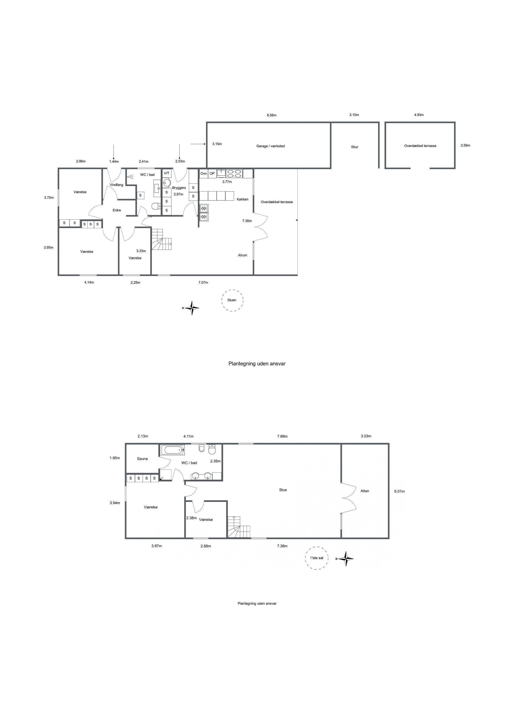
På Sybergsvej 2 venter en spændende villa fra 1972. Boligen er løbende istandsat og opdateret således I i husets hjerte finder et stort alrum samt et moderne og stilrent indrettet køkken. Det store rum åbner, med dobbelt terrassedør op til den sydvendte del af haven og et stort, overdækket terrassemiljø, der i sommerhalvåret fungerer som en naturlig forlængelse af alrummet. Alrummet har rigelig plads til både langbord og de helt store middagsselskaber.
I stueplan finder I også husets praktiske bryggers, det ene af to badeværelser og tre af husets i alt 5 værelser. På førstesalen træder I op i en stor stue med dejligt meget lys og udgang til en stor, overdækket, sydvendt altan. Heroppe finder I desuden to værelser, hvoraf det største, i forening med sauna og husets andet badeværelse, udgør den perfekte forældreafdeling. Pladsen er veldisponeret og mulighederne for hvordan I kan indrette jer mange. Huset byder både på rum med moderne og velholdte faciliteter og på rum, hvor I, som det passer jer, løbende kan sætte eget præg på udtrykket.
I haven kan I nyde solen fra tidlig morgen og til den forsvinder ned bag genboens tag. Det store terrassemiljø, der er anlagt med udgang fra alrummet suppleres af endnu en store, overdækket terrasse, hvor aftensolen står lige ind i et fantastisk hyggeligt uderum, der danner perfekte rammer om sommerens måltider. Haven i øvrigt er anlagt med stor plæne og foran huset en rummelig, flisebelagt indkørsel med plads til flere biler.
Kvarteret grænser op til store, åbne naturområder, der strækker sig hele vejen til kysten. Omtrent 1,2 km. fra huset åbner Fredericia Skov op til det enorme skovområde, der strækker sig hele vejen langs kysten til Trelde Næs. Her får de naturglade virkelig et nærområde, hvor årstidernes skifte kan følges på allernærmeste hold og hvor alle naturens og vandets muligheder tilbyder sig gennem dem alle fire. Kvarteret er trygt og fredfyldt. Her er kort afsted til diverse fornødenheder og kort cykelafstand til skole og daginstitution.
Vi glæder os til at vise jer rundt
Økonomien i boligen
Skal Nykredit Bank ringe for en snak om din boligøkonomi?
Fortæl os, hvornår det passer dig, så ringer en rådgiver fra Nykredit Bank dig op til en uforpligtende snak om dine lånemuligheder. Så er du et skridt tættere på din nye bolig.
Vi bruger dine oplysninger til at forberede samtalen. Læs mere i Nykredit Banks privatlivspolitik
Kontakt

Kontakt
Mette Ehrhorn
Skal du også sælge?
Kontakt os og få en gratis salgsvurdering, så ved du hvad din bolig er værd.
- Få et hurtigt estimat af salgspris eller en grundig vurdering.
- Få et indblik i, hvad din ejendom er værd på markedet lige nu.
- Find ud af, hvor meget du selv kan købe for, hvis du ønsker at skifte bolig.
Hvor langt er der til nærmeste?
Se hvor lang tid der er mellem denne bolig og en anden adresse
Fakta om Fredericia Kommune
INDBYGGERE
GRUNDSKYLD
KOMMUNESKAT
SKOLER
BØRNEPASNING
Opret dig i køberkartoteket og få besked om lignende boliger.
Få direkte besked, når der kommer relevante nye boliger til salg, der matcher dine ønsker. Du ser også de boliger, vi får til salg, som vi ikke viser på Nybolig.dk.
Tilpas filtre og opret