"Vandkanten" - nyt og flot i funkis-stil
Nyt og flot kvalitetsbyggeri i funkis-stil og med WOW effekt, såvel ude som inde; anden række af forreste udstykning til Fuglsang Sø og med stor tagterrasse på knap 30 m². En unik mulighed både hvad angår boligen og ikke mindst området - rolige og smukke omgivelser, og med flot udsigt ud over Fuglsang Sø. Alt er smukt, uanset årstiden.
Husene opføres som unikke dobbelthuse; med opførelse i gode, gedigne og fine materialer, og hvor lys og atmosfære er tænkt ind. Projektet indeholder 6 dobbelthuse og opføres i flotte Petersens Tegl mursten (D72 vandstrøgne) og træ/alu vinduer, som giver et æstetisk flot og eksklusivt udtryk. Der er både terrasse mod søen samt stor tagterrasse mod vest.
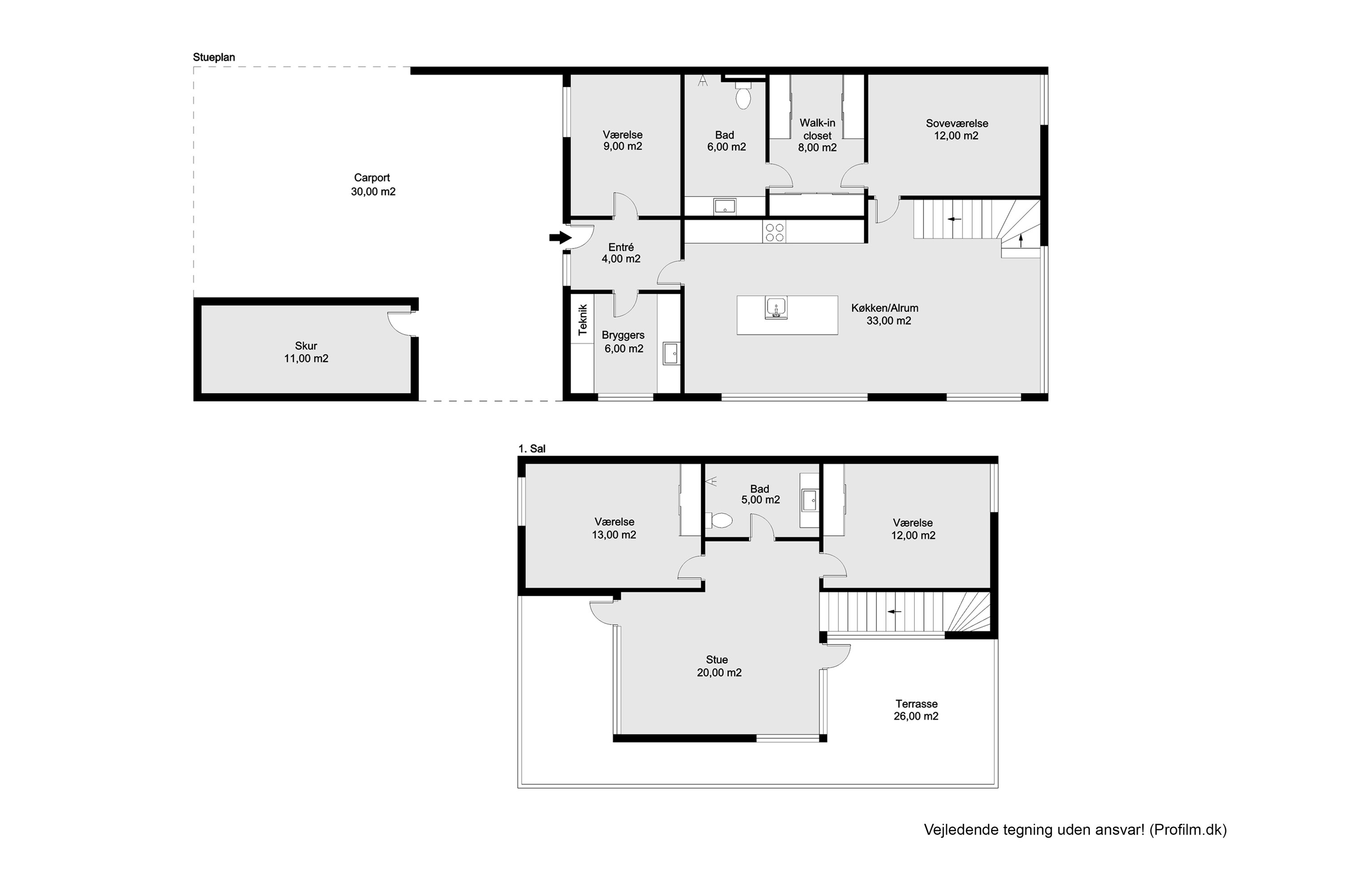
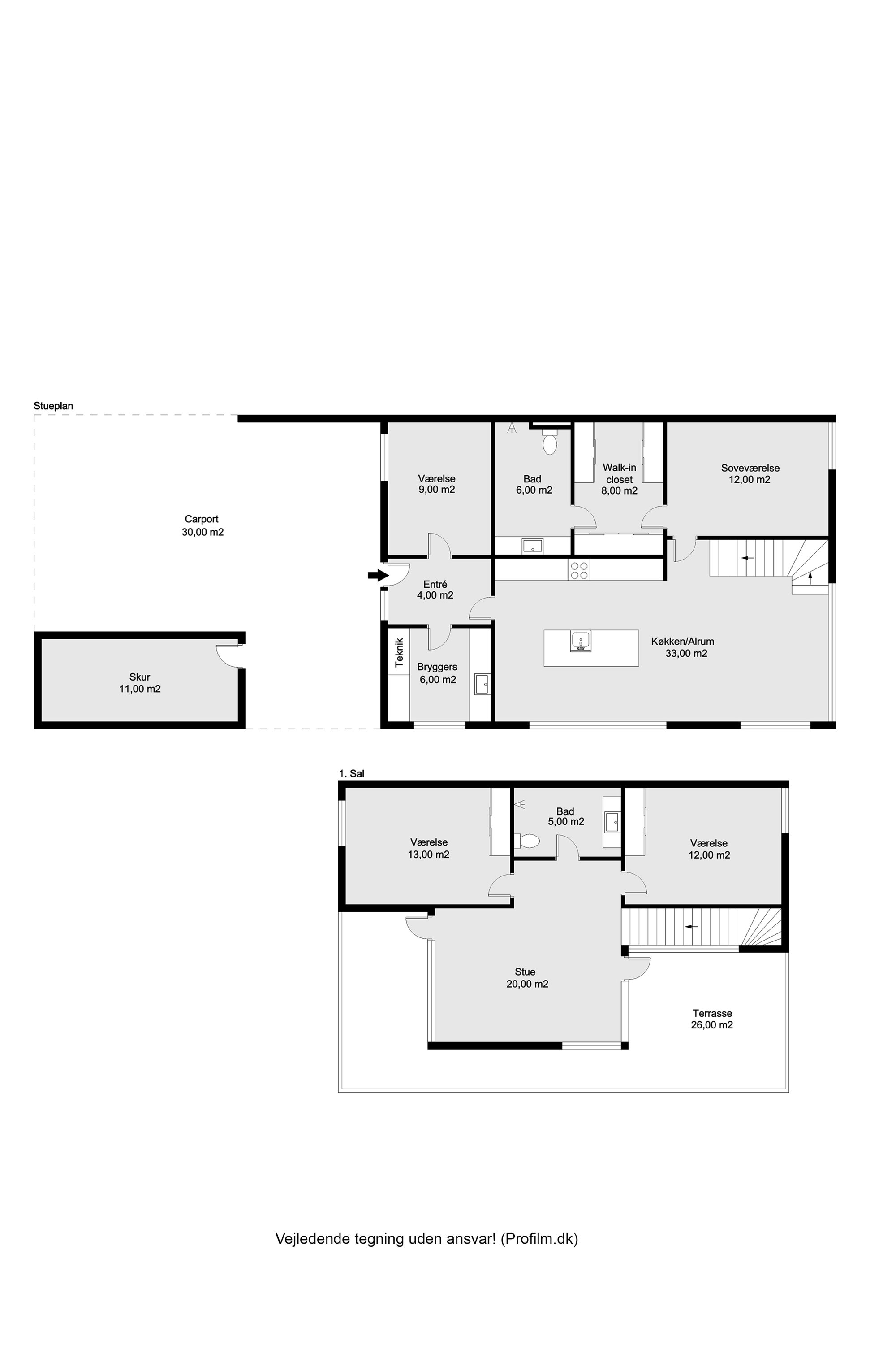
Huset er indrettet så dagligdagen i princippet kan foregå udelukkende i stueplan - ellers er hjertet i lejlighederne det gennemgående alrum med et integreret køkken. Fra carport er der adgang til stort entre samt bryggers med teknik og vaskeplads. Dejligt køkken/alrum med godt lysindfald og udgang til terrasse mod vest samt soveværelse med walk-in og eget badeværelse. Endvidere et værelse. 1. sal indeholder stue samt 2 store værelser og badeværelse.
De viste fotos er fra udstillingshus.
Kontakt

Kontakt
Henrik Buur
Skal du også sælge?
Kontakt os og få en gratis salgsvurdering, så ved du hvad din bolig er værd.
- Få et hurtigt estimat af salgspris eller en grundig vurdering.
- Få et indblik i, hvad din ejendom er værd på markedet lige nu.
- Find ud af, hvor meget du selv kan købe for, hvis du ønsker at skifte bolig.
Økonomien i boligen
Skal Nykredit Bank ringe for en snak om din boligøkonomi?
Fortæl os, hvornår det passer dig, så ringer en rådgiver fra Nykredit Bank dig op til en uforpligtende snak om dine lånemuligheder. Så er du et skridt tættere på din nye bolig.
Vi bruger dine oplysninger til at forberede samtalen. Læs mere i Nykredit Banks privatlivspolitik
Hvor langt er der til nærmeste?
Se hvor lang tid der er mellem denne bolig og en anden adresse
Fakta om Herning Kommune
INDBYGGERE
GRUNDSKYLD
KOMMUNESKAT
SKOLER
BØRNEPASNING
Opret dig i køberkartoteket og få besked om lignende boliger.
Få direkte besked, når der kommer relevante nye boliger til salg, der matcher dine ønsker. Du ser også de boliger, vi får til salg, som vi ikke viser på Nybolig.dk.
Tilpas filtre og opret