Velkommen til Råbukken 23
Her opføres en kvalitetsvilla i det eftertragtede område Halgård Enge i Holstebro. Her får I et hjem, hvor æstetik, funktionalitet og komfort går hånd i hånd, og hvor planløsningen er skabt med tanke på både hverdag og livets små pauser.
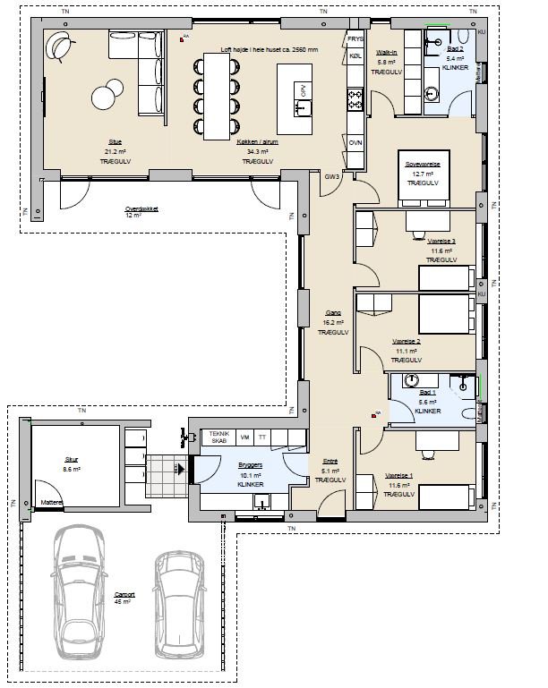
Boligen rummer 182 m² og byder på masser af naturligt lys, god loftshøjde, en rolig og afdæmpet farvepalette og lækre materialevalg i hele huset. I træder tørskoet ind via den 46 m² integreret carport og videre ind i et praktisk bryggers med god skabsplads og adgang til resten af boligen. Herudover får du 12 kvm udhus og 12 kvm overdækket terrasse.
Huset er bla. indrettet med fire rummelige værelser og to flotte badeværelser med moderne løsninger og flotte klinker. I husets hjerte finder I det åbne køkken-alrum, som står i forbindelse med stue. Her er store vinduespartier, og masser af plads til både hverdagsliv og hyggelige middage med gæster. Køkkenet er fra HTH og indeholder alt i hårde hvidevarer fra Siemens – klar til brug fra første dag. Der er fra køkken/alrum direkte adgang til skøn gårdhave, som er perfekt til leg, sol og gril.
Alt er udført med omtanke – fra de gode detaljer som gulvvarme i hele huset, og Unidrain-løsninger i begge badeværelser. Boligen opvarmes via fjernvarme og har ventilationsanlæg med varmegenvinding for et godt og sundt indeklima.
Udenfor venter en 713 m² stor grund, hvor haven er anlagt med græs og gårdhave. Der er rig mulighed for at skabe jeres eget uderum, hvad enten drømmen er legehus eller højbede.
Forventet overtagelse 1/3 2026
Kontakt

Kontakt
Kim Fuursted Poulsen
Skal du også sælge?
Kontakt os og få en gratis salgsvurdering, så ved du hvad din bolig er værd.
- Få et hurtigt estimat af salgspris eller en grundig vurdering.
- Få et indblik i, hvad din ejendom er værd på markedet lige nu.
- Find ud af, hvor meget du selv kan købe for, hvis du ønsker at skifte bolig.
Økonomien i boligen
Skal Nykredit Bank ringe for en snak om din boligøkonomi?
Fortæl os, hvornår det passer dig, så ringer en rådgiver fra Nykredit Bank dig op til en uforpligtende snak om dine lånemuligheder. Så er du et skridt tættere på din nye bolig.
Vi bruger dine oplysninger til at forberede samtalen. Læs mere i Nykredit Banks privatlivspolitik
Hvor langt er der til nærmeste?
Se hvor lang tid der er mellem denne bolig og en anden adresse
Fakta om Holstebro Kommune
INDBYGGERE
GRUNDSKYLD
KOMMUNESKAT
SKOLER
BØRNEPASNING
Opret dig i køberkartoteket og få besked om lignende boliger.
Få direkte besked, når der kommer relevante nye boliger til salg, der matcher dine ønsker. Du ser også de boliger, vi får til salg, som vi ikke viser på Nybolig.dk.
Tilpas filtre og opret