Velkommen til Astrupvej 29.
Her ligger en flot villa med et boligareal på hele 255 m² plus garage med plads til værksted.
Ejendommen er beliggende i landlige omgivelser, og har en stor grund på 1.382 m² omringet af åbne marker på alle sider og med enestående udsigt. Her får du muligheden for at bosætte dig på landet med knap 3 kilometer ind til Hurup by.
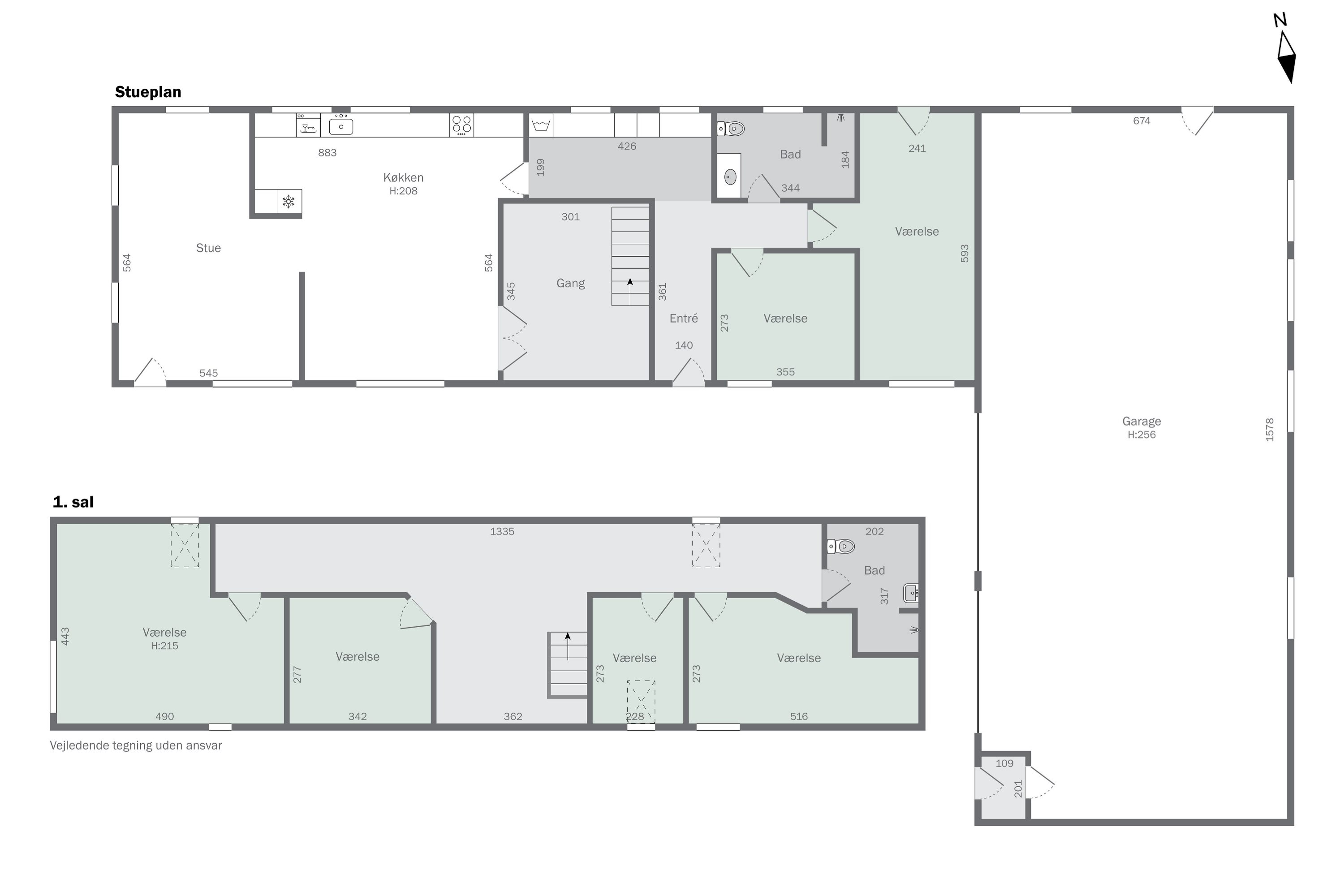
Stueplanen indeholder: Entré/baggang med klinkegulve og god plads til vaskemaskine, tørretumbler m.m. Flot og rummeligt spisekøkken med alt i hårde hvidevarer. I køkkenet er der fine, synlige bjælkelofter. Herudover er der en hyggelig vinkelstue, hvorfra der er flot udsigt til det åbne landskab, godt soveværelse samt badeværelse med klinker og stor bruseniche.
1.salen indeholder: Tre fine værelser, alle med god plads, endvidere stort gavlværelse med flot udsigt over åbne marker samt badeværelse med bruser (badeværelset er ikke registreret på BBR-meddelelsen)
Foruden ovennævnte får du samtidig et spændende hus, der er beliggende tæt på Hurup, som byder på både daginstitution, skole, idrætsfaciliteter samt alverdens indkøbsmuligheder.
Endvidere får du stor garage med to porte - herinde er der plads til et stort værksted eller gildesal til de sjove fester.
Kom med en tur på landet og se mulighederne her på Astrupvej 29.
På ejendommen er der tillige en 11 kWh vindmølle. Sælger oplyser, at møllen i 2022 har produceret i niveauet 18-20.000 kWh årlig.
(Den i salgsopstillingen oplyste finansiering kan ikke forventes opnået, da en del af handelsprisen vedrører møllen.)
FREMVISNING: Såfremt du ønsker en fremvisning af ejendommen, er du naturligvis velkommen til at kontakte os, ligesom vi altid kan bidrage med yderligere oplysninger om ejendommen.
Økonomien i boligen
Skal Nykredit Bank ringe for en snak om din boligøkonomi?
Fortæl os, hvornår det passer dig, så ringer en rådgiver fra Nykredit Bank dig op til en uforpligtende snak om dine lånemuligheder. Så er du et skridt tættere på din nye bolig.
Vi bruger dine oplysninger til at forberede samtalen. Læs mere i Nykredit Banks privatlivspolitik
Kontakt

Kontakt
Jakob Steensgaard
Skal du også sælge?
Kontakt os og få en gratis salgsvurdering, så ved du hvad din bolig er værd.
- Få et hurtigt estimat af salgspris eller en grundig vurdering.
- Få et indblik i, hvad din ejendom er værd på markedet lige nu.
- Find ud af, hvor meget du selv kan købe for, hvis du ønsker at skifte bolig.
Hvor langt er der til nærmeste?
Se hvor lang tid der er mellem denne bolig og en anden adresse
Fakta om Thisted Kommune
INDBYGGERE
GRUNDSKYLD
KOMMUNESKAT
SKOLER
BØRNEPASNING
Opret dig i køberkartoteket og få besked om lignende boliger.
Få direkte besked, når der kommer relevante nye boliger til salg, der matcher dine ønsker. Du ser også de boliger, vi får til salg, som vi ikke viser på Nybolig.dk.
Tilpas filtre og opret