Stor villa beliggende på 6.048 m² grund ved åbne marker
Drømmer du om et hjem, hvor der er god plads, fredelige omgivelser og lave energiomkostninger? Så byder Kobberøvej 2 i Hurup Thy på alt det – og mere til!
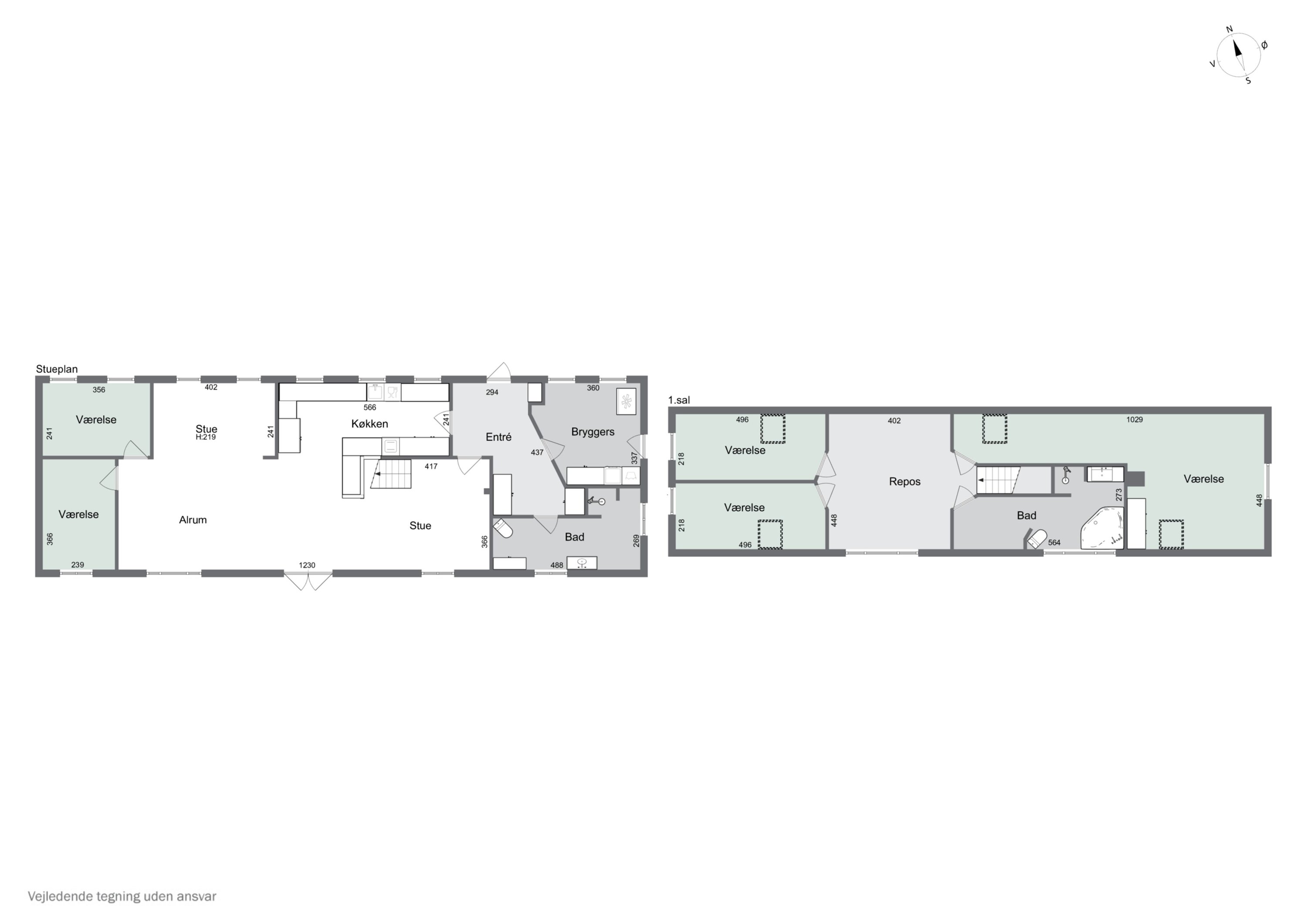
Her får du en rummelig og velindrettet bolig på ca. 225 m², der giver dig masser af plads til både familieliv, hobby og hjemmearbejde. Ejendommen byder på lyse opholdsrum, flere værelser og mulighed for at sætte dit eget præg. Huset har en praktisk indretning med både funktionalitet og charme, og der er god plads til både hverdag og gæster.
Ejendommen er udstyret med luft-til-vand-varmeanlæg, Bosch fra 2019, samt en husstandsvindmølle, der tilsammen sikrer en yderst lav energiregning og et flot energimærke B. Det betyder, at du kan bo stort og komfortabelt – uden at bekymre dig om høje varmeudgifter. Kombinationen af moderne varmeteknologi og vedvarende energi giver både økonomisk tryghed og et grønnere aftryk på miljøet.
Kobberøvej 2 ligger i rolige og naturskønne omgivelser lige uden for Hurup Thy – en by med et aktivt lokalsamfund, gode skoler, daginstitutioner, sportstilbud og dagligvarebutikker.
Her får du det bedste af to verdener: fred og ro i grønne omgivelser, og samtidig nem adgang til byens faciliteter. Du har kort afstand til både Limfjorden, Nationalpark Thy og Vesterhavet, som byder på fantastiske naturoplevelser året rundt.
Med sine mange kvadratmeter giver boligen god plads til hele familien – og mulighed for at indrette både kontor, gæsteværelser og hobbyrum. Grunden giver desuden gode muligheder for udeliv, haveprojekter og leg i det fri. På stuehuset er der Decra ståltag og værkstedet asbestfri eternit.
Ejendommen fremstår med solidt udgangspunkt og rummer potentiale for at blive et moderne og personligt hjem, der passer præcis til dine behov.
Kort fortalt får du her:
Ca. 225 m² bolig med god og fleksibel planløsning
Luft-til-vand-varmeanlæg og husstandsvindmølle 6KW – lavt energiforbrug
Fredelig og naturskøn beliggenhed med en stor grund med plads til familieliv og udeliv
Køkken og stue fra 2020 - overetage fra 2001
Gulvvarme i hele underetagen
Økonomien i boligen
Skal Nykredit Bank ringe for en snak om din boligøkonomi?
Fortæl os, hvornår det passer dig, så ringer en rådgiver fra Nykredit Bank dig op til en uforpligtende snak om dine lånemuligheder. Så er du et skridt tættere på din nye bolig.
Vi bruger dine oplysninger til at forberede samtalen. Læs mere i Nykredit Banks privatlivspolitik
Kontakt
 
                Kontakt
Jakob Steensgaard
Skal du også sælge?
Kontakt os og få en gratis salgsvurdering, så ved du hvad din bolig er værd.
- Få et hurtigt estimat af salgspris eller en grundig vurdering.
- Få et indblik i, hvad din ejendom er værd på markedet lige nu.
- Find ud af, hvor meget du selv kan købe for, hvis du ønsker at skifte bolig.
Hvor langt er der til nærmeste?
Se hvor lang tid der er mellem denne bolig og en anden adresse
Fakta om Thisted Kommune
INDBYGGERE
GRUNDSKYLD
KOMMUNESKAT
SKOLER
BØRNEPASNING
Opret dig i køberkartoteket og få besked om lignende boliger.
Få direkte besked, når der kommer relevante nye boliger til salg, der matcher dine ønsker. Du ser også de boliger, vi får til salg, som vi ikke viser på Nybolig.dk.
Tilpas filtre og opret