- Altan
Rummelig villa nær Nationalpark Thy – tæt på både by og natur
Velkommen til denne rummelige villa fra 1927, der med sine 195 kvadratmeter kombinerer klassisk byggestil med funktionelle løsninger til nutidens behov. Ejendommen er i dag indrettet og anvendt som fritidsbolig og ligger særdeles attraktivt – lige ned til Krik Vig – i området mellem Vestervig og Agger, tæt på Nationalpark Thy.
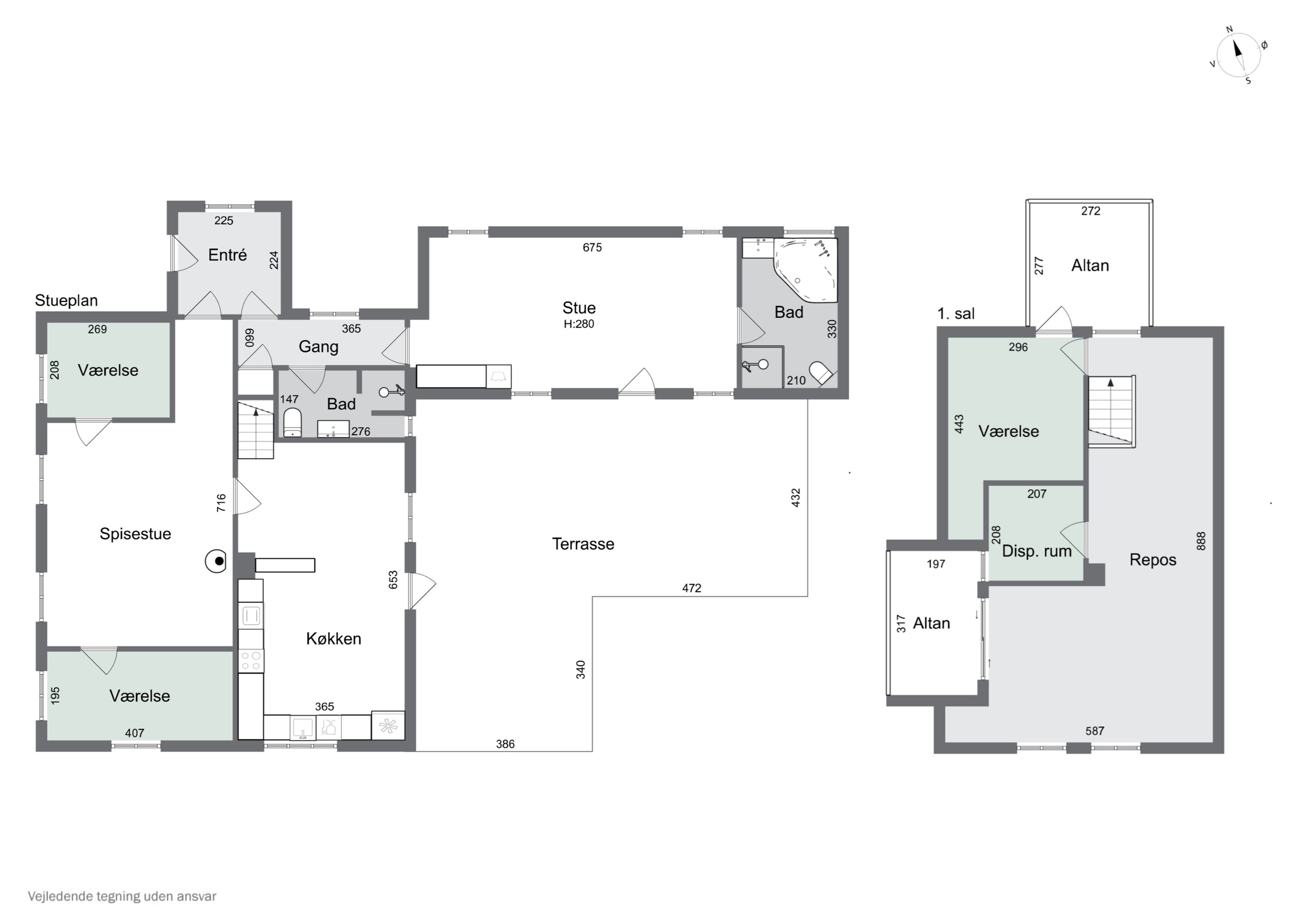
Boligen rummer entré, fordelingsgang, hyggelig spisestue og to gode værelser, og den lyse stue byder på store vinduespartier, der giver et behageligt lysindfald og en god rumfornemmelse. Køkkenet er praktisk indrettet med lyse elementer og god plads samt mulighed for spisebord, hvilket gør det anvendeligt både til dagligdagen og samvær. Herudover er der to gode badeværelser i stueplan – begge med bruseniche, og det ene med spabad.
Fra stuen og køkkenet er der direkte adgang til en sydvendt terrasse, som ligger godt placeret i forhold til haven. Her er der gode muligheder for udeliv – hvad enten det handler om morgenkaffe i solen eller afslapning på varme sommeraftener. Haven er primært udlagt i græs og er privat med god plads til både leg og ophold.
1.sal byder på repos, som i dag anvendes til stue, et værelse samt to hyggelige altaner, hvoraf den ene vender direkte ud mod Krik Vigs dejlige badevand.
Beliggenheden direkte ud til vandet giver adgang til unikke naturoplevelser og mange former for friluftsaktiviteter. Med kort afstand til Vesterhavet og Nationalpark Thy er der rige muligheder for vandreture, cykling og vandsport. Lokalområdet byder desuden på dagligvarebutikker, caféer og spisesteder, hvilket gør boligen anvendelig både som helårs- og fritidsbolig uden bopælspligt.
En ejendom som denne – med sin størrelse, beliggenhed og fleksible anvendelse – henvender sig til både familier og fritidssøgende, der ønsker en base i naturskønne og rolige omgivelser.
Kontakt os for yderligere information eller en fremvisning!
Økonomien i boligen
Skal Nykredit Bank ringe for en snak om din boligøkonomi?
Fortæl os, hvornår det passer dig, så ringer en rådgiver fra Nykredit Bank dig op til en uforpligtende snak om dine lånemuligheder. Så er du et skridt tættere på din nye bolig.
Vi bruger dine oplysninger til at forberede samtalen. Læs mere i Nykredit Banks privatlivspolitik
Kontakt

Kontakt
Jakob Steensgaard
Skal du også sælge?
Kontakt os og få en gratis salgsvurdering, så ved du hvad din bolig er værd.
- Få et hurtigt estimat af salgspris eller en grundig vurdering.
- Få et indblik i, hvad din ejendom er værd på markedet lige nu.
- Find ud af, hvor meget du selv kan købe for, hvis du ønsker at skifte bolig.
Hvor langt er der til nærmeste?
Se hvor lang tid der er mellem denne bolig og en anden adresse
Fakta om Thisted Kommune
INDBYGGERE
GRUNDSKYLD
KOMMUNESKAT
SKOLER
BØRNEPASNING
Opret dig i køberkartoteket og få besked om lignende boliger.
Få direkte besked, når der kommer relevante nye boliger til salg, der matcher dine ønsker. Du ser også de boliger, vi får til salg, som vi ikke viser på Nybolig.dk.
Tilpas filtre og opret