Villa med god plads søger en ny familie
Beliggende i sydbyen på en rolig villavej ligger denne rummelige villa - her er plads til både mor, far og børn og deres husdyr, venner og familie.
Her er huset, hvor ting og mennesker kan samles under et tag i hverdagen, til fester, højtider m.m. og uden pladsen føles trang.
Huset ligger i et skønt og roligt villa kvarter, hvor der både er kort afstand til fjorden - fra 1. sal på huset er der fjord udsigt og på de gode dage kan man sagtens kigge helt til salling.
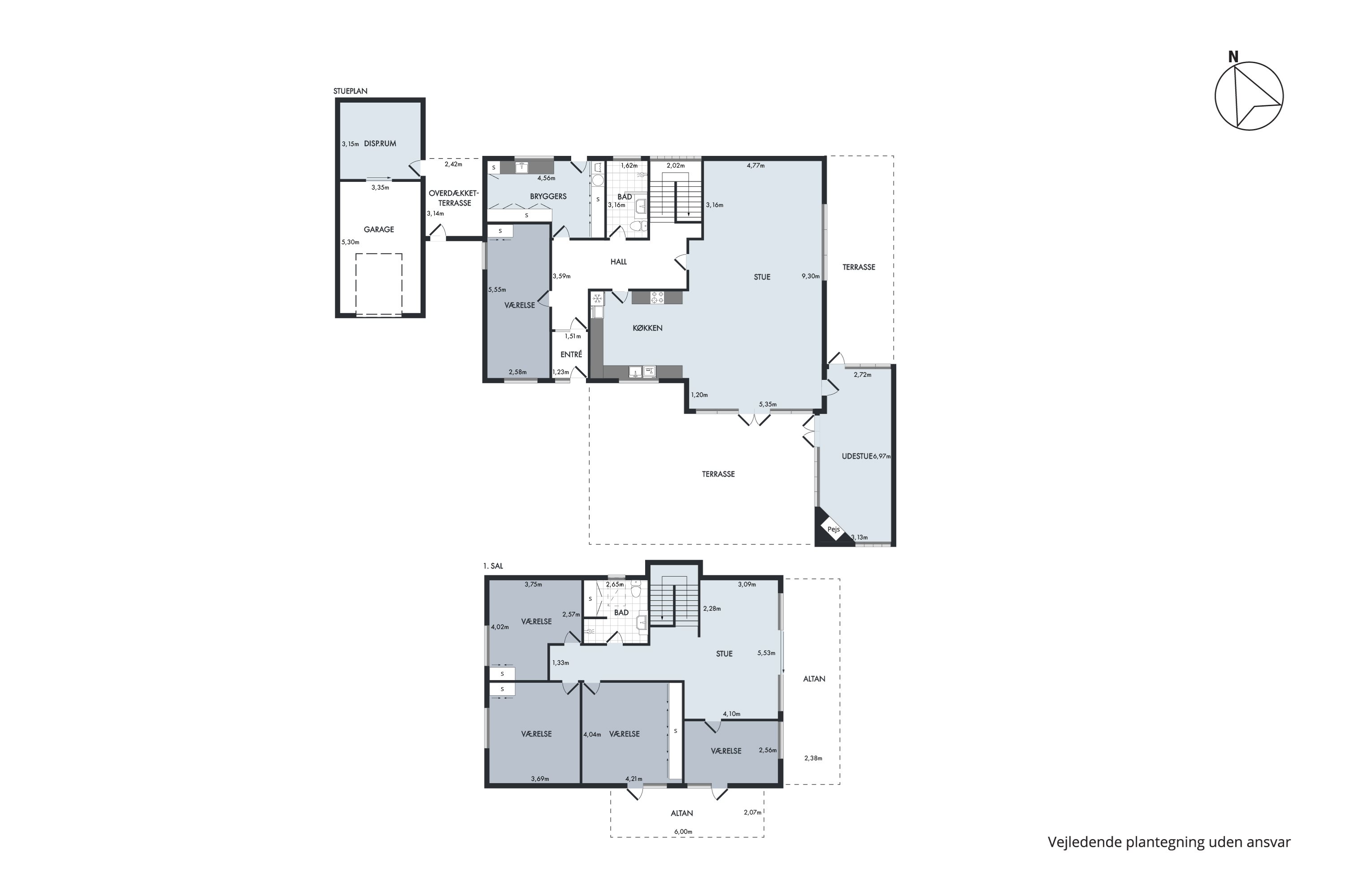
Med et boligareal på 232 m2 i 2 plan bliver pladsmangel næppe dét, som i skal koncentrere jer om - her gælder det om, hvordan indretningen være, så det bliver jeres drømmehjem.
I stueplan, hvor der næsten er gulvvarme i alle rum, er indretningen således - Entré, hall med trappe op til 1. sal, værelse, et stort bryggers med masser af skabsplads, badeværelse med bruser, stort køkken - alrum - stue i ét. Udestue i samme bolig kvalitet, som resten.
På 1 sal er en pragtfuld stue med udgang til en altan, der vender mod syd. Herfra er der den flotteste udsigt over fjorden - vi garanterer at den stue med udsigten hurtigt vil blive dit favorit sted. Derudover er der 4 rigtig gode værelser og et badeværelse med bruser.
Grunden er 788 m2 og ved siden af huset er en muret garage på 28 m2. Der er et dejligt terrassemiljø med masser af sol foran huset.
Der er monteret et 6 kWH solcelleanlæg på taget. Huset opvarmes med naturgas.
Kort afstand til både skole, sport og ungdomsuddannelser.
Kom og kig på denne rummelig villa i sydbyen og mærk efter i maven om det er noget for jer!
Økonomien i boligen
Skal Nykredit Bank ringe for en snak om din boligøkonomi?
Fortæl os, hvornår det passer dig, så ringer en rådgiver fra Nykredit Bank dig op til en uforpligtende snak om dine lånemuligheder. Så er du et skridt tættere på din nye bolig.
Vi bruger dine oplysninger til at forberede samtalen. Læs mere i Nykredit Banks privatlivspolitik
Kontakt

Kontakt
Christian Nielsen
Skal du også sælge?
Kontakt os og få en gratis salgsvurdering, så ved du hvad din bolig er værd.
- Få et hurtigt estimat af salgspris eller en grundig vurdering.
- Få et indblik i, hvad din ejendom er værd på markedet lige nu.
- Find ud af, hvor meget du selv kan købe for, hvis du ønsker at skifte bolig.
Hvor langt er der til nærmeste?
Se hvor lang tid der er mellem denne bolig og en anden adresse
Fakta om Morsø Kommune
INDBYGGERE
GRUNDSKYLD
KOMMUNESKAT
SKOLER
BØRNEPASNING
Opret dig i køberkartoteket og få besked om lignende boliger.
Få direkte besked, når der kommer relevante nye boliger til salg, der matcher dine ønsker. Du ser også de boliger, vi får til salg, som vi ikke viser på Nybolig.dk.
Tilpas filtre og opret