Charmerende 1960-villa med hyggelige udearealer, lys stue og kælder
I smukke og naturskønne omgivelser ligger denne dejlige rødstensvilla fra 1960 på 122 m2 med kælder og vognly samt et stort delvis overdækket terrasse-anlæg med nedsænket grill-terrasse. Villaen er løbende nænsomt renoveret med respekt for boligens oprindelige stil med bl.a. tag, vinduer, badeværelse og køkken, og fremstår overalt særdeles flot og velholdt.
Villaen er beliggende i et hyggeligt lille landsby miljø og med en storslået udsigt over Nørreå og Nørreådalen. Boligen er pænt afskærmet fra asfalteret vej og med cykelsti direkte til friskole med tilknyttet vuggestue og børnehave samt gode idrætsaktiviteter. Endvidere er der off. transportmulighed med bus til Randers og Viborg.
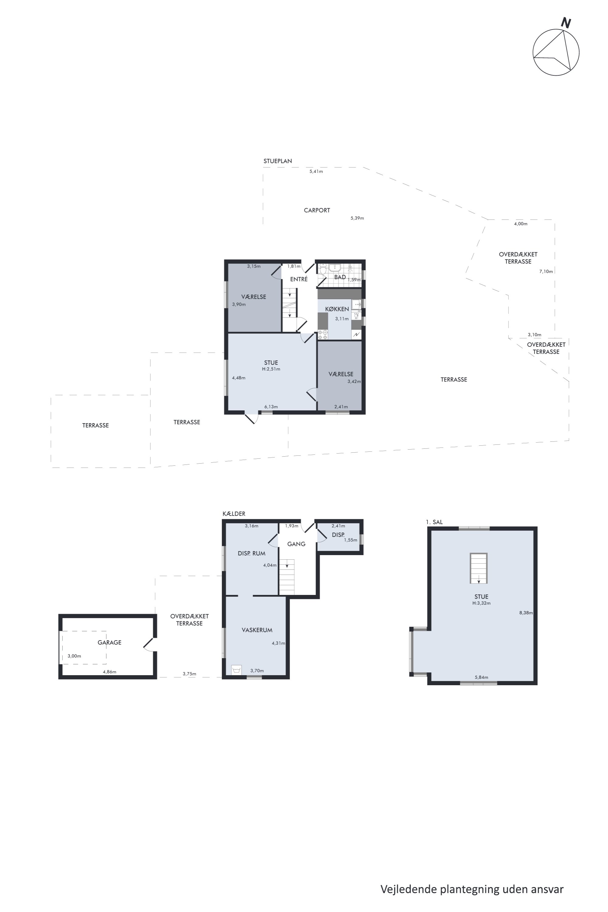
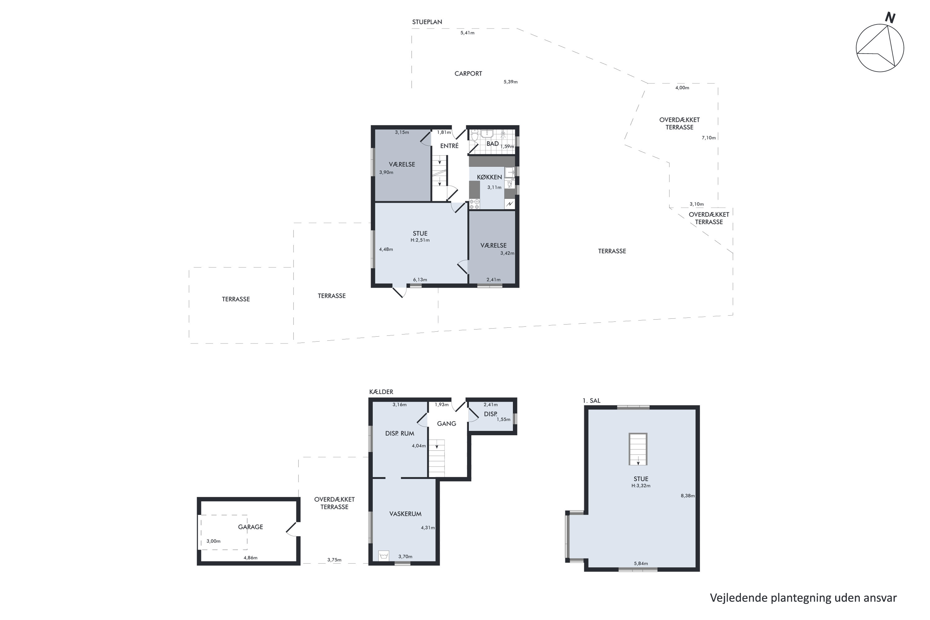
Boligen indeholder følgende: Entre med opgang til tagetagen og nedgang til underetagen/kælder, pænt badeværelse med bruseniche og gulvvarme der ligger lige overfor soveværelset, funktionelt og lyst køkken med hvidevarer, pænt værelse, hyggelig stue med forrygende udsigt og udgang til dejlig syd/vestvendt træ terrasse, hvorfra der er nedgang til et ugenert og delvis overdækket gård og terrassemiljø.
Tagetagen er indrettet med en stor stue med plankegulv, loft i kip og med en skøn karnap med panorama udsigt over hele Nørreå-dalen hvorfra et sjældent rigt fugle- og dyre-liv kan iagttages. Tagetagen kan sagtens opdeles i 2-3 værelser. Underetagen/kælder er indrettet som følgende: god stor baggang, viktualierum, fyrrum samt et stort vaskerum.
Der er her tale om et boligtilbud, der skal ses og opleves.
Sætter du pris på lys, luft og udsigt samt hyggelige ude og inde rum i skønne omgivelser så kom og se. Vi fremviser denne bolig når det passer dig... træffes altid 40365257.
Økonomien i boligen
Skal Nykredit Bank ringe for en snak om din boligøkonomi?
Fortæl os, hvornår det passer dig, så ringer en rådgiver fra Nykredit Bank dig op til en uforpligtende snak om dine lånemuligheder. Så er du et skridt tættere på din nye bolig.
Vi bruger dine oplysninger til at forberede samtalen. Læs mere i Nykredit Banks privatlivspolitik
Kontakt

Kontakt
Viggo Pedersen
Skal du også sælge?
Kontakt os og få en gratis salgsvurdering, så ved du hvad din bolig er værd.
- Få et hurtigt estimat af salgspris eller en grundig vurdering.
- Få et indblik i, hvad din ejendom er værd på markedet lige nu.
- Find ud af, hvor meget du selv kan købe for, hvis du ønsker at skifte bolig.
Hvor langt er der til nærmeste?
Se hvor lang tid der er mellem denne bolig og en anden adresse
Fakta om Viborg Kommune
INDBYGGERE
GRUNDSKYLD
KOMMUNESKAT
SKOLER
BØRNEPASNING
Opret dig i køberkartoteket og få besked om lignende boliger.
Få direkte besked, når der kommer relevante nye boliger til salg, der matcher dine ønsker. Du ser også de boliger, vi får til salg, som vi ikke viser på Nybolig.dk.
Tilpas filtre og opret