Skøn familievilla tæt på Ekkoparken
En familievenlig tilværelse tæt på hverdagen. Der venter den boligsøgende børnefamilie en rigtig glædelig overraskelse i Hjallerup: 160 kvm flot opdateret 1½ plansvilla, strømlinet inventar, flere uderum og en bekvem hverdag med alle faste stop i gå- og cykelafstand.
By og natur 20 min. fra Aalborg.
Det er Hjallerup, I flytter til, og her finder I jer hurtigt til rette. Tre minutter nede ad vejen fører stisystemer ind blandt høje træer og åbne vidder mod bl.a. Hjallerups Oase, EKKO Parken med geder, sø og legepladser samt vandrestier. Og når Hjallerup Marked indtager byen, har I heller ikke langt dértil.
I får desuden 10 min. gang til skolen, idrætscentret og ungdomsklubben; 11 min. til børnehaven; og fire min. på cykel til dér, hvor I kan hente friskt morgenbrød og dagligdagens indkøbsvarer på Søndergade. Og var det måske noget med en tur på kro, restaurant eller i biografen? Det kan I også lige her.
Flere solrige uderum.
Sætter I kurs mod adressen, ankommer I foran en fin rødstensvilla på en lukket vej. Den lange, brede indkørsel, carporten og udhuset tager imod jer, og så er det bare at indtage ét af de lækre uderum, der byder sig til. Altanen under taget nyder godt af sol fra syd, og giver desuden kig ned til havens græsplæne og skiftende farveflor samt den indmurede terrasse, der oser af gode gårdhavefornemmelser.
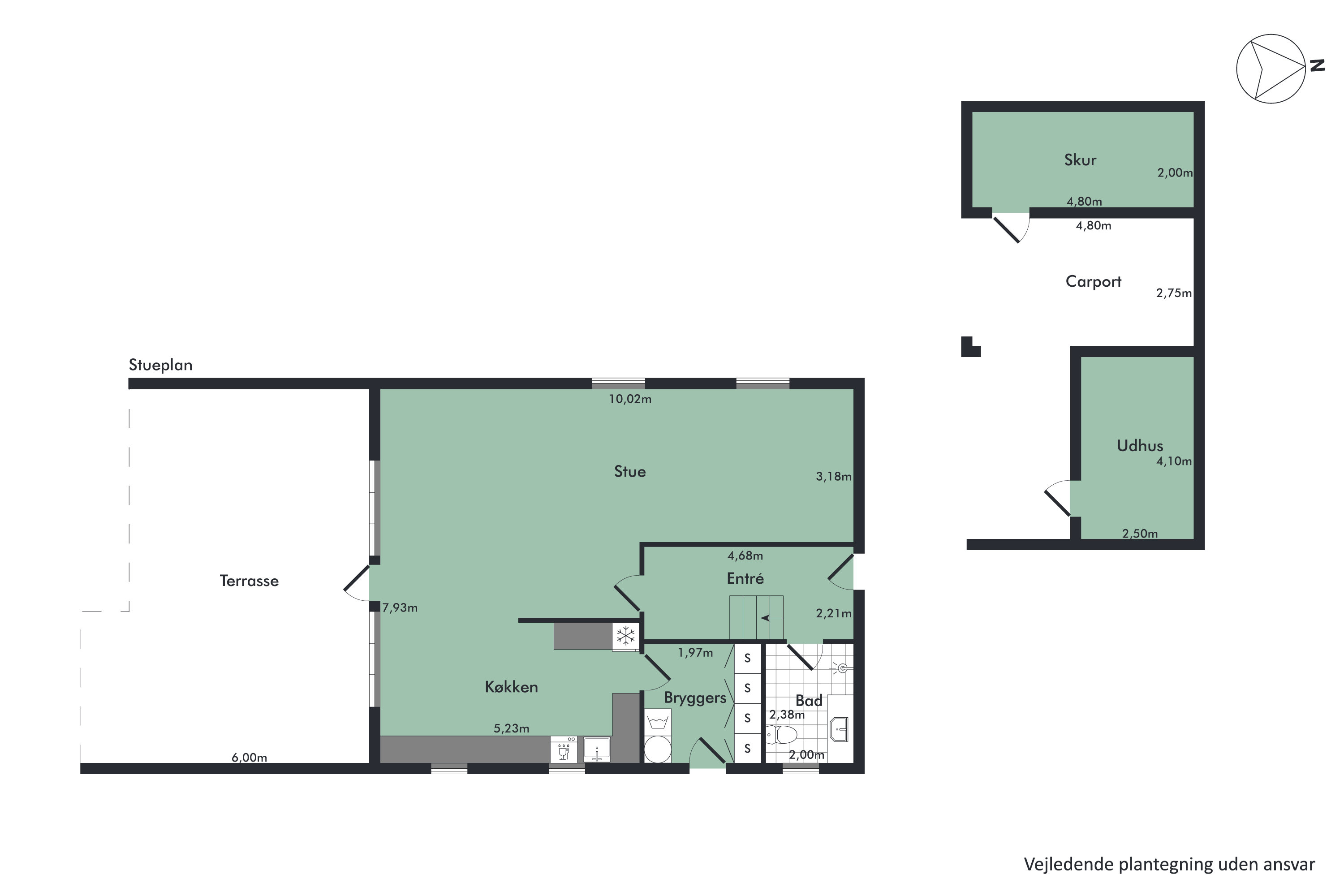
Lyse og åbne rammer om familielivet.
Ja, udelivet bliver skønt her på matriklen – og det samme gør indelivet. I overtager 160 kvm i to etager, og selvom byggeåret siger 1975, kan I takket være flotte opdateringer se frem til et helt igennem moderne hjem præget af åbne fornemmelser og lyse farver.
på. 1. sal får I fire regulære værelser og et nyere badeværelse. Stueetagen byder på bryggers og endnu et badværelse, og begge er indrettet med samme strømlinede inventar, der ses i køkkenet. Det er rummeligt og har bl.a. spots og integrerede hvidevarer, og så glider det elegant sammen med stuen og alrummet for familiens naturlige samlingspunkt.
Økonomien i boligen
Skal Nykredit Bank ringe for en snak om din boligøkonomi?
Fortæl os, hvornår det passer dig, så ringer en rådgiver fra Nykredit Bank dig op til en uforpligtende snak om dine lånemuligheder. Så er du et skridt tættere på din nye bolig.
Vi bruger dine oplysninger til at forberede samtalen. Læs mere i Nykredit Banks privatlivspolitik
Kontakt

Kontakt
Mathies Højslet
Skal du også sælge?
Kontakt os og få en gratis salgsvurdering, så ved du hvad din bolig er værd.
- Få et hurtigt estimat af salgspris eller en grundig vurdering.
- Få et indblik i, hvad din ejendom er værd på markedet lige nu.
- Find ud af, hvor meget du selv kan købe for, hvis du ønsker at skifte bolig.
Hvor langt er der til nærmeste?
Se hvor lang tid der er mellem denne bolig og en anden adresse
Fakta om Brønderslev-Dronninglund Kommune
INDBYGGERE
GRUNDSKYLD
KOMMUNESKAT
SKOLER
BØRNEPASNING
Opret dig i køberkartoteket og få besked om lignende boliger.
Få direkte besked, når der kommer relevante nye boliger til salg, der matcher dine ønsker. Du ser også de boliger, vi får til salg, som vi ikke viser på Nybolig.dk.
Tilpas filtre og opret