BILLEDER MED HVIDE FACADER ER VISUALISERINGER, SOM ER TIL INSPIRATION FOR KØBER.
Denne villa i Hornum byder på mange gode kvadratmeter, og boligen er ovenikøbet moderniseret, så alt fremstår pænt og tidssvarende. Planløsningen skal ligeledes fremhæves, for med hele fire værelser og to sammenhængende opholdsrum er rammerne optimale for børnefamilien. Udelivet får fine betingelser i den tilhørende have, der er lukket, solrig og med god terrasse og flere hyggekroge.
Ejendommen er fra 1930, og den er opført i changerende gule sten med hvide vinduesrammer og sadeltag. Foruden et integreret udhus er der yderligere plads i et fritliggende udhus med overdækning, og med til ejendommen følger også en carport.
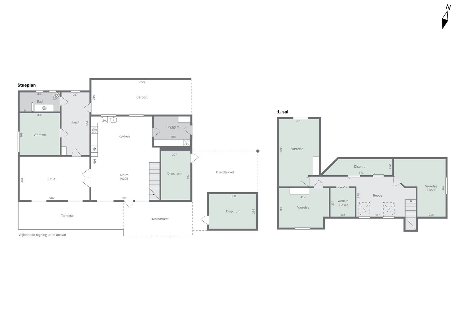
Inden døre er boligarealet fordelt på stueplan og første sal. I stueplan kan I se frem til et stort, lyst køkken-alrum, der har direkte udgang til haven. Det åbne køkken er holdt i hvidt med sorte detaljer, og det har masser af bordplads samt mange skuffer til opbevaring. Franske døre forener køkkenet med stuen, som let kan indrettes med sofamøblementet.
Stueplanet indeholder endvidere et værelse og et stilrent badeværelse, der er udført med grebsfrit inventar og stor bruseniche med brusevæg i glas. Slutteligt er her en rummelig entré og et veldisponeret bryggers, hvor der kan installeres vaskesøjle.
Førstesalen udgøres af de tre resterende værelser, der alle har en rigtig fornuftig størrelse. Etagen inkluderer herudover et smart walk-in-closet og et opmagasineringsrum samt en møblerbar repos med tagvinduer.
Den hyggelige have er sydvendt, og den er anlagt med dekorative stenbede og små buske. I får ligeledes glæde af en dejlig fliseterrasse, som er delvist overdækket.
Hornum har rigt foreningsliv, dagplejer, børnehave, skole, Kulturhus, Dagli' Brugs, kro medhjemmelavet mad, pizzaria, tankstation og meget mere.
Se mere om Hornum by lige her:https://hornumogomegn.dk/
Økonomien i boligen
Skal Nykredit Bank ringe for en snak om din boligøkonomi?
Fortæl os, hvornår det passer dig, så ringer en rådgiver fra Nykredit Bank dig op til en uforpligtende snak om dine lånemuligheder. Så er du et skridt tættere på din nye bolig.
Vi bruger dine oplysninger til at forberede samtalen. Læs mere i Nykredit Banks privatlivspolitik
Kontakt

Kontakt
Jacob Andersen
Skal du også sælge?
Kontakt os og få en gratis salgsvurdering, så ved du hvad din bolig er værd.
- Få et hurtigt estimat af salgspris eller en grundig vurdering.
- Få et indblik i, hvad din ejendom er værd på markedet lige nu.
- Find ud af, hvor meget du selv kan købe for, hvis du ønsker at skifte bolig.
Hvor langt er der til nærmeste?
Se hvor lang tid der er mellem denne bolig og en anden adresse
Fakta om Vesthimmerland Kommune
INDBYGGERE
GRUNDSKYLD
KOMMUNESKAT
SKOLER
BØRNEPASNING
Opret dig i køberkartoteket og få besked om lignende boliger.
Få direkte besked, når der kommer relevante nye boliger til salg, der matcher dine ønsker. Du ser også de boliger, vi får til salg, som vi ikke viser på Nybolig.dk.
Tilpas filtre og opret