- Kælderrum
Ideel anpart med charme fra 1907 - lyse rum, have, overdækket terrasse og plads
IDEEL ANPART HVOR MAN KØBER BEGGE ANPARTER OG OVERTAGER BEGGE LEJERE.
Træd ind i et hjem, hvor det første indtryk er varmt og indbydende. De lyse, luftige rum møder dig med et blødt dagslys gennem store vinduespartier, og udsigten fra køkkenvinduet peger ud mod nærområdets huse og grønne kanter. Husets arkitektur fra 1907 giver charme og karakter.
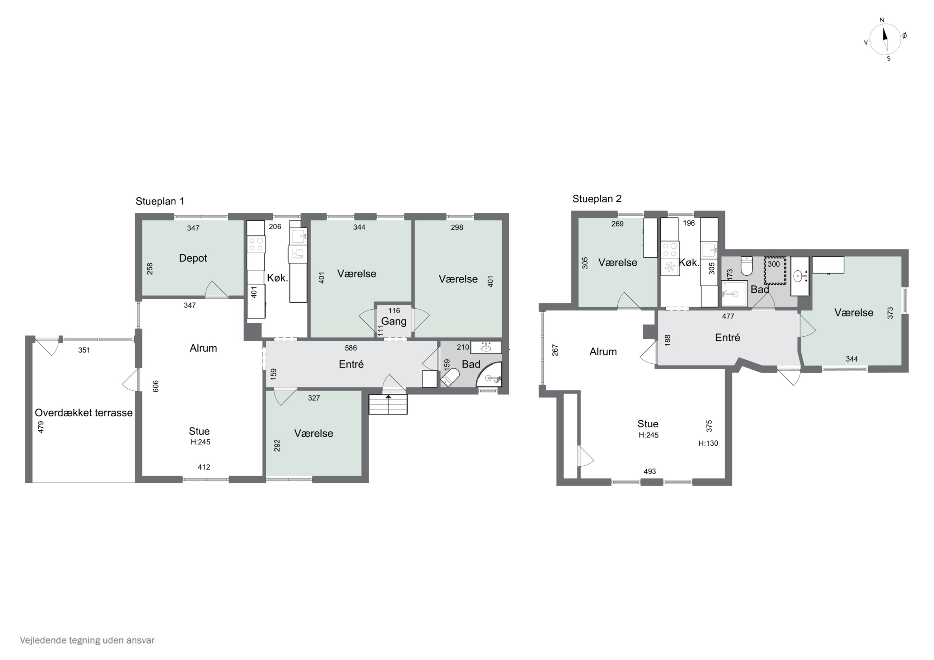
Stueplanen omfatter entre med plads til sko og overtøj og 3 rummelige værelser. Køkkenet er funktionelt indrettet med vindue, der lader morgenlyset strømme ind. Badeværelse med bruseniche, stor stue med udgang til overdækket terrasse.
1.salen indeholder rummmelig entre, 2 værelser, køkken, badeværelse og stor stue.
Kælderen på 54 m2 giver ekstra opbevarings- eller hobbymuligheder og hører både til anpart 1 og anpart 2.
Nabolaget omkring huset byder på grønne åndehuller og praktiske dagligdagsfaciliteter inden for kort rækkevidde. Her får I en hverdag, hvor skole, daginstitutioner og indkøb kan indpasses uden lange ture, og samtidig er der muligheder for gå- og cykelture i nærliggende grønne områder. Kombinationen af rolig, hjemlig stemning og let adgang til hverdagens gøremål gør området særligt velegnet til familier og moderne købere, der søger både tryghed og nærhed.
Er I klar til at udforske mulighederne i et hjem med både plads og sjæl? Kontakt os og bestil en fremvisning — oplev selv, hvordan denne villa kan blive rammen om jeres næste kapitler.
Økonomien i boligen
Skal Nykredit Bank ringe for en snak om din boligøkonomi?
Fortæl os, hvornår det passer dig, så ringer en rådgiver fra Nykredit Bank dig op til en uforpligtende snak om dine lånemuligheder. Så er du et skridt tættere på din nye bolig.
Vi bruger dine oplysninger til at forberede samtalen. Læs mere i Nykredit Banks privatlivspolitik
Kontakt

Kontakt
Kasper Helt Hansen
Skal du også sælge?
Kontakt os og få en gratis salgsvurdering, så ved du hvad din bolig er værd.
- Få et hurtigt estimat af salgspris eller en grundig vurdering.
- Få et indblik i, hvad din ejendom er værd på markedet lige nu.
- Find ud af, hvor meget du selv kan købe for, hvis du ønsker at skifte bolig.
Hvor langt er der til nærmeste?
Se hvor lang tid der er mellem denne bolig og en anden adresse
Fakta om Holbæk Kommune
INDBYGGERE
GRUNDSKYLD
KOMMUNESKAT
SKOLER
BØRNEPASNING
Opret dig i køberkartoteket og få besked om lignende boliger.
Få direkte besked, når der kommer relevante nye boliger til salg, der matcher dine ønsker. Du ser også de boliger, vi får til salg, som vi ikke viser på Nybolig.dk.
Tilpas filtre og opret