STORT 5-VÆRELSES BYHUS I 8-TALLET PÅ 147 KVM.
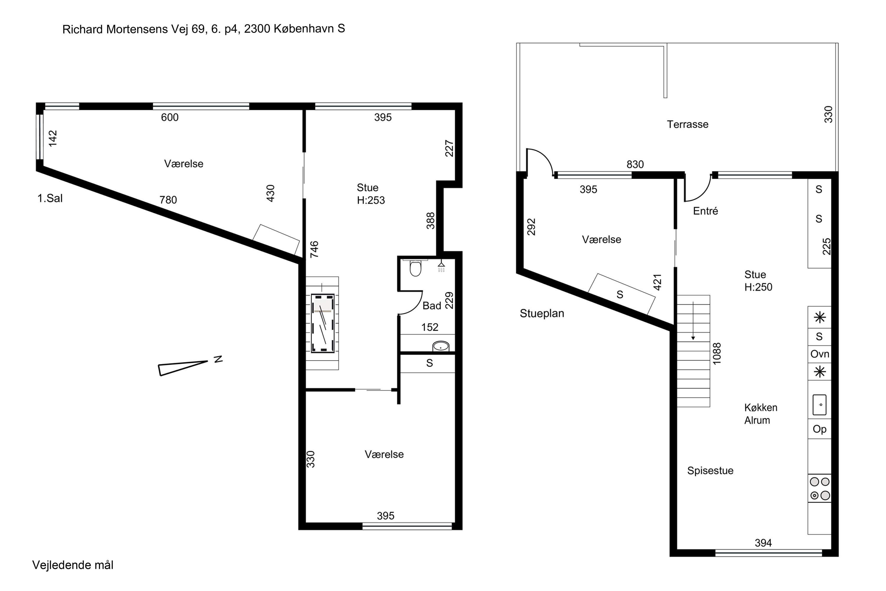
Velkommen til denne fantastiske ejerlejlighed på hele 147 kvadratmeter, hvor moderne komfort møder enhjemmelig atmosfære. Beliggende i et skønt og attraktivt område, er denne bolig ideel for dem, derønsker at kombinere byliv med naturskønne omgivelser. Ved ankomsten til lejligheden vil du straks bemærke de store vinduer, der lader det naturlige lys strømmeind og skaber en lys og indbydende stemning. Indretningen byder på en rummelig stue, der giver mulighed for både afslapning og socialt samvær. Detåbne køkkenalrum er perfekt til hyggelige middage med familie og venner, og de moderne materialertilføjer et stilrent præg. Det er også i stueplan du finder et af lejlighedens 3 værelser. Den smukke trappefører op til to værelser og en skøn og indbydende stue.
En af lejlighedens store kvaliteter er den dejlige vestvendte terrasse, hvor du kan nyde eftermiddags- ogaftensolen, måske med et glas vin eller en god bog.
8-TALLET fra 2010 er det mest hyldede bygningsværk i hele Ørestad. Tegnet og tænkt af BIG med BjarkeIngels i spidsen har fokus været på at skabe en ejendom, der i alle henseender er moderne: mereklimavenlig, mere alsidig og mere eksklusiv end nogen anden, og ejendommen står stadig som en vigtigmilepæl for dansk arkitektur. De grønne tage og beliggenheden direkte på kanten af Kalvebod Fælledinviterer naturen ind i de stilfulde rammer, mens terrænplan er pyntet med daginstitution, café ogsmåforretninger, som forvandler selve ejendommen til et lille lokalmiljø!
Natur og byliv forenes i Ørestad. Fælleden er en samling af åbne naturvidder med skovområder, enge ogvådområder, som hylder et diverst dyre- og planteliv og er en legeplads af læring for områdets børn. Medså sublime muligheder for løbe-, gå- og cykelture lige i området er jeres aktivitetsniveau understøttet,mens I kan slappe af om aftenen med en middag på en af områdets restauranter, en tur i biografen ellermåske endda slå et smut forbi Royal Arena, hvor veletablerede verdensstjerne ofte giver koncert. I har samtidig motorvejen og metro indefor rækkevidde.
Økonomien i boligen
Skal Nykredit Bank ringe for en snak om din boligøkonomi?
Fortæl os, hvornår det passer dig, så ringer en rådgiver fra Nykredit Bank dig op til en uforpligtende snak om dine lånemuligheder. Så er du et skridt tættere på din nye bolig.
Vi bruger dine oplysninger til at forberede samtalen. Læs mere i Nykredit Banks privatlivspolitik
Kontakt

Kontakt
Rasmus Due Nielsen
Skal du også sælge?
Kontakt os og få en gratis salgsvurdering, så ved du hvad din bolig er værd.
- Få et hurtigt estimat af salgspris eller en grundig vurdering.
- Få et indblik i, hvad din ejendom er værd på markedet lige nu.
- Find ud af, hvor meget du selv kan købe for, hvis du ønsker at skifte bolig.
Hvor langt er der til nærmeste?
Se hvor lang tid der er mellem denne bolig og en anden adresse
Fakta om København Kommune
INDBYGGERE
GRUNDSKYLD
KOMMUNESKAT
SKOLER
BØRNEPASNING
Opret dig i køberkartoteket og få besked om lignende boliger.
Få direkte besked, når der kommer relevante nye boliger til salg, der matcher dine ønsker. Du ser også de boliger, vi får til salg, som vi ikke viser på Nybolig.dk.
Tilpas filtre og opret