- Parkering
- Gårdmiljø
- Cykelparkering
Stor 2-værelses lejlighed med egen terrasse
Velkommen til Gammel Køge Landevej i Valby Maskinfabrik.
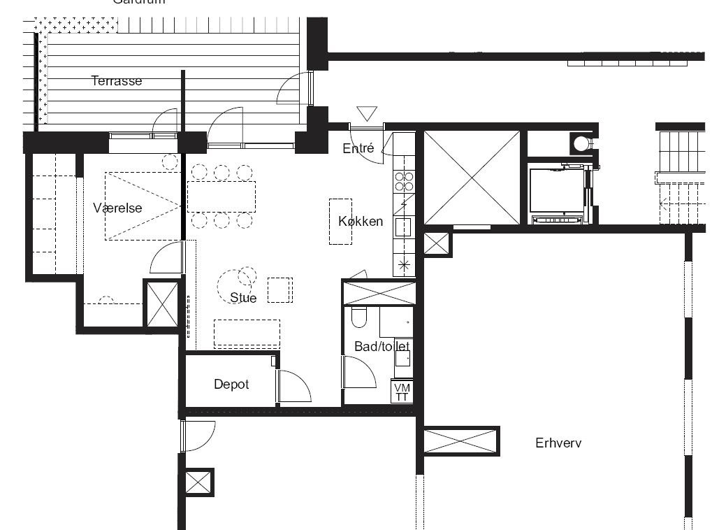
Træd ind i denne charmerende lejlighed, som byder dig velkommen med en rummelig entré. Herfra får du adgang til lejlighedens moderne badeværelse samt et komfortabelt soveværelse.
Midtpunktet i boligen er det imponerende lyse køkkenalrum. Her kan du udfolde din kulinariske passion i et nyere køkken, der stråler af kvalitet og funktionalitet. Fra køkkenalrummet fører en dør dig ud til lejlighedens private terrasse, hvor du kan nyde solens stråler og frisk luft.
Du kommer til at bo i en attraktiv lejebolig ejendom, hvor du får;
- Beboelsesperiode så længe du vil
- Mulighed for tilladelse til husdyr (efter aftale)
- Professionel udlejer
- Fælles grønne områder og fællesarealer
- Hårde hvidevarer inkluderet i køkkenet
- Vær opmærksom på at der er en bindingsperiode på 12 måneder
Din nye adresse er placeret i det eftertragtede Valby Maskinfabrik, i Kranhuset. Området er kendt for sit pulserende nærmiljø med et rigt udvalg af supermarkeder, hyggelige caféer og bekvemme offentlige transportforbindelser. Med Valby Station og den nye metrostation København Syd, er byens hjerte kun en kort rejse væk. Desuden finder du i nærheden et væld af idrætsfaciliteter, skoler og daginstitutioner.
Som en ekstra bonus får du adgang til et depotrum – enten direkte i lejligheden eller i kælderen. I kælder er der desuden mulighed for leje af parkeringsplads.
Interesseret i at opleve denne skønne lejlighed? Vi ser frem til at byde dig velkommen til en fremvisning.
Økonomien i boligen
Skal Nykredit Bank ringe for en snak om din boligøkonomi?
Fortæl os, hvornår det passer dig, så ringer en rådgiver fra Nykredit Bank dig op til en uforpligtende snak om dine lånemuligheder. Så er du et skridt tættere på din nye bolig.
Vi bruger dine oplysninger til at forberede samtalen. Læs mere i Nykredit Banks privatlivspolitik
Kontakt

Kontakt
Vilhelm Ryman
Skal du også sælge?
Kontakt os og få en gratis salgsvurdering, så ved du hvad din bolig er værd.
- Få et hurtigt estimat af salgspris eller en grundig vurdering.
- Få et indblik i, hvad din ejendom er værd på markedet lige nu.
- Find ud af, hvor meget du selv kan købe for, hvis du ønsker at skifte bolig.
Hvor langt er der til nærmeste?
Se hvor lang tid der er mellem denne bolig og en anden adresse
Fakta om København Kommune
INDBYGGERE
GRUNDSKYLD
KOMMUNESKAT
SKOLER
BØRNEPASNING
Opret dig i køberkartoteket og få besked om lignende boliger.
Få direkte besked, når der kommer relevante nye boliger til salg, der matcher dine ønsker. Du ser også de boliger, vi får til salg, som vi ikke viser på Nybolig.dk.
Tilpas filtre og opret