- Altan
- Kælderrum
- Parkering
- Cykelparkering
- Fælles lokale
- Tagterrasse
Udsigt til noget helt særligt
Udsigt til noget helt særligt
SKØNHEDEN LIGGER I DETALJEN Viborg View indfanger den tidløse charme og de varme farver, kombineret med et markant og moderne udtryk med de forskudte højder. Med 12 etager er Viborg View højest mod byen, mens bygningskroppen trapper ned mod søen, hvilket resulterer i en harmonisk sammensmeltning med det naturskønne landskab. De blødstrøgne tegl er omhyggeligt placeret både horisontalt og vertikalt og tilføjer en varieret oplevelse, når man bevæger sig rundt om bygningen. Det moderne olivenfarvede aluminium på inddækning, vinduespartier og værn, tilføjer en naturlig elegance til bygningens udtryk.
UDSIGT OVER BYEN, DOMKIRKEN ELLER SØEN Udsigten er et gennemgående element for alle 61 boliger, og selv på 1. sal er du højt placeret. De store altaner fungerer som en naturlig forlængelse af boligerne med overdækket overgang mellem ude og inde, samtidig med at de skyder sig ud fra bygningen som horisontale platforme. Her kan du tage udsigten ind, eller invitere gæster til middag med udsigt på de lange, lune sommeraftener.
BINDELED MELLEM BY OG SØ Fra dit nye hjem her får du direkte adgang til de grønne arealer ved søbredden og kun få minutters gang til gågaden og Viborgs historiske bymidte. Foretrækker du at benytte offentlig transport, vil din daglige rejse blive både bekvem og problemfri. Busforbindelser er blot få skridt væk, og både busterminal og banegård befinder sig indenfor en kilometer fra dit nye hjem. Samtidig har du Viborgs smukke natur lige udenfor døren. Gå eller løb en tur på den oplyste sti rundt om Søndersø og find ro i naturens skønhed. Du kan også tage på eventyr i de omkringliggende skove og bakker, hvor du kan gå på opdagelse på de utallige vandrestier og naturskønne ruter. Uanset om du er til rolige gåture eller mere udfordrende vandreture, er mulighederne mange.
ET VÆLD AF FÆLLES FACILITETER Som noget helt unikt for Viborg, så tilbyder Viborg View en luksus, som ikke kan matches andre steder. Til glæde for de kommende ejere etableres bl.a. stor fælles tagterrasse med panoramaudsigt over Søndersø, moderne fitnessrum, 2 møblerede gæstelejligheder med egne badeværelser, golfsimulator samt parkerings- og cykel kælder mv.
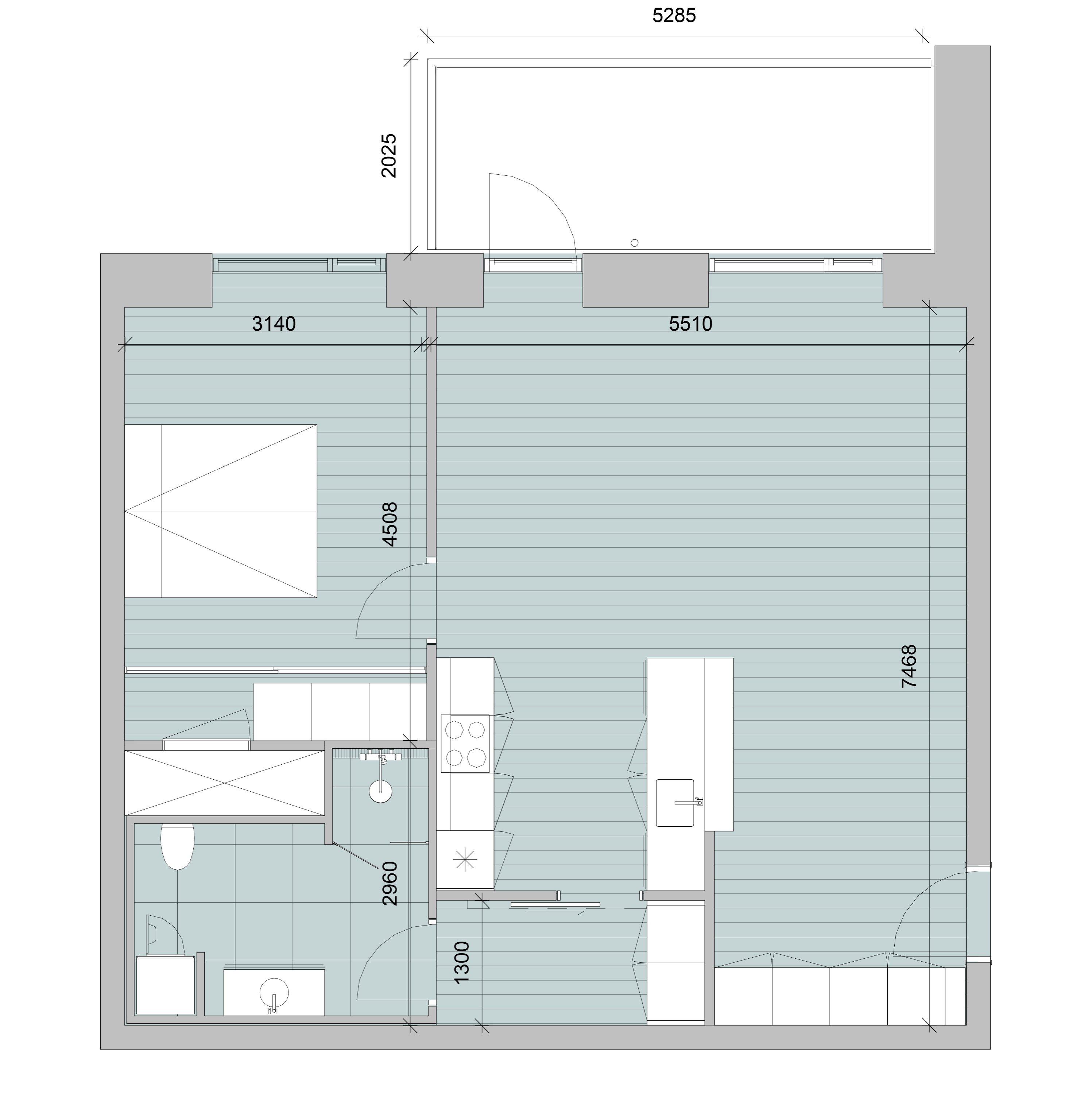
A26 ER EN TYPE 4 LEJLIGHED. Type 4 og type 3 er veludnyttede 2 værelses lejligheder med udsigt til Søndersø. Lejlighederne udmærker sig med sin suveræne indretning helt uden spildplads. Man får bl.a. et stort soveværelse, moderne badeværelse og et knivskarpt køkken i en stor og åben stue med udgang til altanen. Og som prikken over i’et masser af skabsplads.
Projektsalg
Viborg View
61 eksklusive ejerlejligheder med en fantastisk udsigt, i Domkirkebyen Viborg
Mere om Viborg ViewKontakt

Kontakt
René Sørensen
Skal du også sælge?
Kontakt os og få en gratis salgsvurdering, så ved du hvad din bolig er værd.
- Få et hurtigt estimat af salgspris eller en grundig vurdering.
- Få et indblik i, hvad din ejendom er værd på markedet lige nu.
- Find ud af, hvor meget du selv kan købe for, hvis du ønsker at skifte bolig.
Økonomien i boligen
Skal Nykredit Bank ringe for en snak om din boligøkonomi?
Fortæl os, hvornår det passer dig, så ringer en rådgiver fra Nykredit Bank dig op til en uforpligtende snak om dine lånemuligheder. Så er du et skridt tættere på din nye bolig.
Vi bruger dine oplysninger til at forberede samtalen. Læs mere i Nykredit Banks privatlivspolitik
Hvor langt er der til nærmeste?
Se hvor lang tid der er mellem denne bolig og en anden adresse
Fakta om Viborg Kommune
INDBYGGERE
GRUNDSKYLD
KOMMUNESKAT
SKOLER
BØRNEPASNING
Opret dig i køberkartoteket og få besked om lignende boliger.
Få direkte besked, når der kommer relevante nye boliger til salg, der matcher dine ønsker. Du ser også de boliger, vi får til salg, som vi ikke viser på Nybolig.dk.
Tilpas filtre og opret