FANTASTISK GRUND MED CHARMERENDE ÆLDRE SOMMERHUS
Ved Skærby Strand ved Nykøbing Sjælland finder du dette hyggelige fritidshus fra 1959, som ligger på en imponerende grund på hele 3.373 kvm, hvoraf 1.090 kvm er vej areal. Her får du en fredelig og privat oase, for enden af en lukket vej, hvor der både er plads til afslapning, leg og udeliv – samtidig med at du er i gåafstand til stranden og Nykøbing Sjællands hyggelige byliv.  
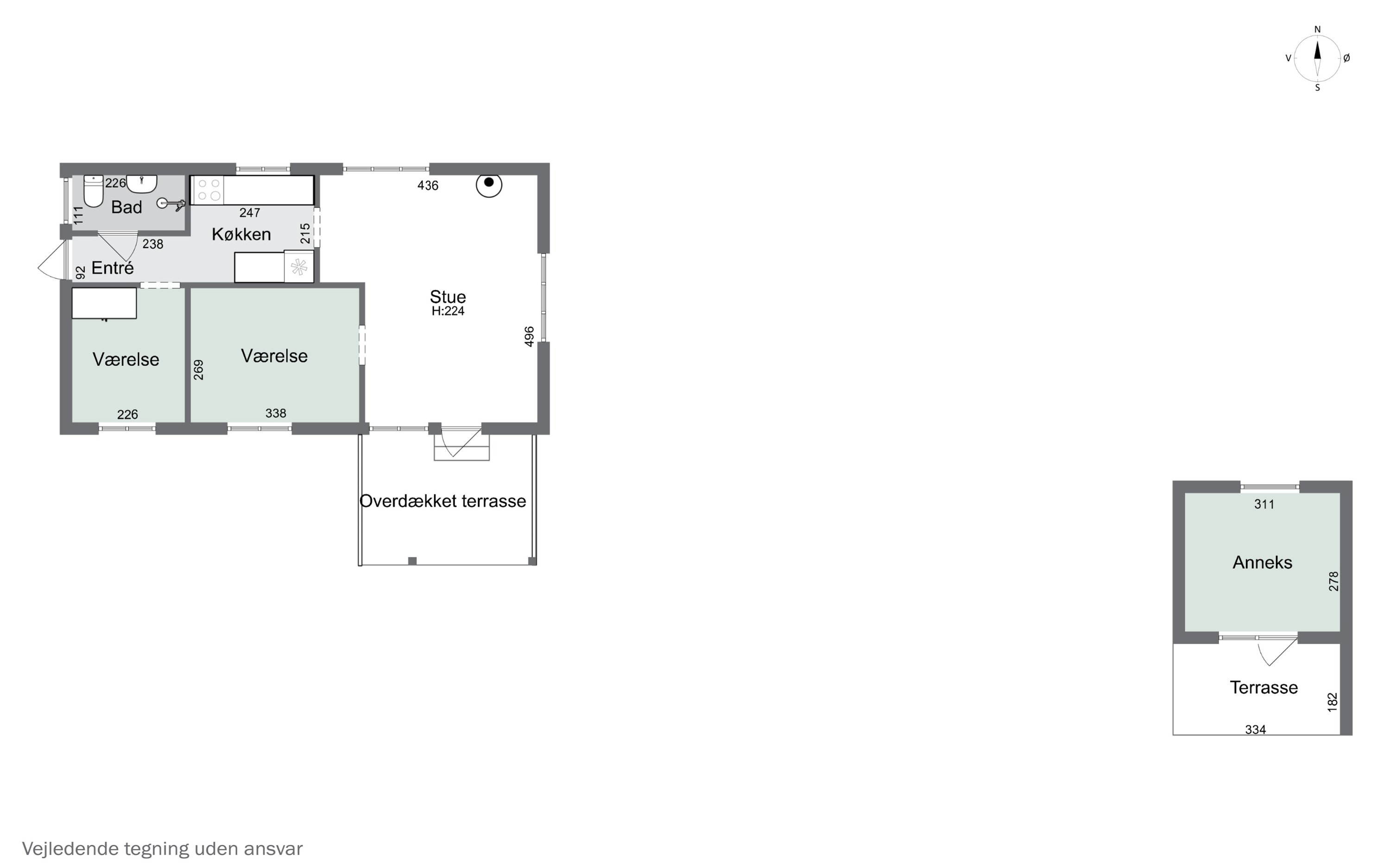
Huset rummer 58 kvm og har en enkel, men funktionel planløsning. Du bydes velkommen i en entré, der giver adgang til husets øvrige rum. Køkkenet er praktisk indrettet og ligger i åben forbindelse mod stuen, hvilket skaber en naturlig sammenhæng i opholdsarealerne. Stuen er rummelig og lys med brændeovn, der giver varme og atmosfære på de kølige aftener. Den behagelige stemning underbygges desuden af de klassiske træpaneler og de sortmalede bjælker under lofterne. Boligen rummer herudover to værelser, som kan indrettes efter behov, ligesom I har glæde af et badeværelse med brus. 
 
Fra stuen er der udgang til en overdækket terrasse, hvorfra du kan nyde udsigten til den grønne grund. Her er rig mulighed for at udfolde sig med boldspil, haveprojekter eller blot finde en solrig plet til en god bog. Til ejendommen hører desuden et anneks med egen terrasse, som giver ekstra plads til gæster. 
 
Beliggenheden er helt ideel. Der er ikke ret langt til stranden, hvor både små og store legebørn vil glæde sig over de fine badeforhold, og da der ikke er ret langt at gå, er det intet projekt at komme ud og mærke bølgen blå. 
 
Alt i alt et charmerende og velbeliggende fritidshus, hvor du får masser af privatliv, en skøn grund og kort afstand til både by og strand.
Økonomien i boligen
Skal Nykredit Bank ringe for en snak om din boligøkonomi?
Fortæl os, hvornår det passer dig, så ringer en rådgiver fra Nykredit Bank dig op til en uforpligtende snak om dine lånemuligheder. Så er du et skridt tættere på din nye bolig.
Vi bruger dine oplysninger til at forberede samtalen. Læs mere i Nykredit Banks privatlivspolitik
Kontakt
 
                Kontakt
Bastian Flindt
Skal du også sælge?
Kontakt os og få en gratis salgsvurdering, så ved du hvad din bolig er værd.
- Få et hurtigt estimat af salgspris eller en grundig vurdering.
- Få et indblik i, hvad din ejendom er værd på markedet lige nu.
- Find ud af, hvor meget du selv kan købe for, hvis du ønsker at skifte bolig.
Hvor langt er der til nærmeste?
Se hvor lang tid der er mellem denne bolig og en anden adresse
Fakta om Odsherred Kommune
INDBYGGERE
GRUNDSKYLD
KOMMUNESKAT
SKOLER
BØRNEPASNING
Opret dig i køberkartoteket og få besked om lignende boliger.
Få direkte besked, når der kommer relevante nye boliger til salg, der matcher dine ønsker. Du ser også de boliger, vi får til salg, som vi ikke viser på Nybolig.dk.
Tilpas filtre og opret