Skønt, nyere Stentøj-hus med pragtfuld udsigt
I Ebbeløkke møder I dette dejlige Stentøj-sommerhus fra 2020, der foruden et lyst og indbydende indre med god plads byder på en stor grund med en solrig terrasse. Fra huset og terrassen er der en idyllisk udsigt til marklandskabet, og I kommer desuden til at holde ferier nær Kattegats blå vidder.
Sommerhuset er placeret på en lukket vej direkte ud til åbne marker, som sikrer jer masser af fred og ro til fridagene. Vandet kan I spadsere til, så I kommer hurtigt til at fylde dagene med svømmetag, solbadning og gåture langs kystlinjen. Er I til cykelture, byder området også på flere naturskønne cykelruter, hvor I blandt andet kan lægge vejen forbi Sonnerup Skov. Ydermere har I kort afstand til Sommerland Sjælland. Indkøb cykler I til.
Der er også meget at glæde sig over på egen matrikel, hvor en 1.600 m2 stor grund venter. Den er dejligt vedligeholdsesnem, da den primært består af en græsplæne til børnenes leg samt enkel beplantning. Hele vejen om huset smyger den delvist overdækkede terrasse sig, så her fanger I let solstrålerne hele dagen, ligesom I snildt kan finde skygge. Fra noget af terrassen kan I desuden nyde udsigten til de grønne marker. Her er også en udebruser.
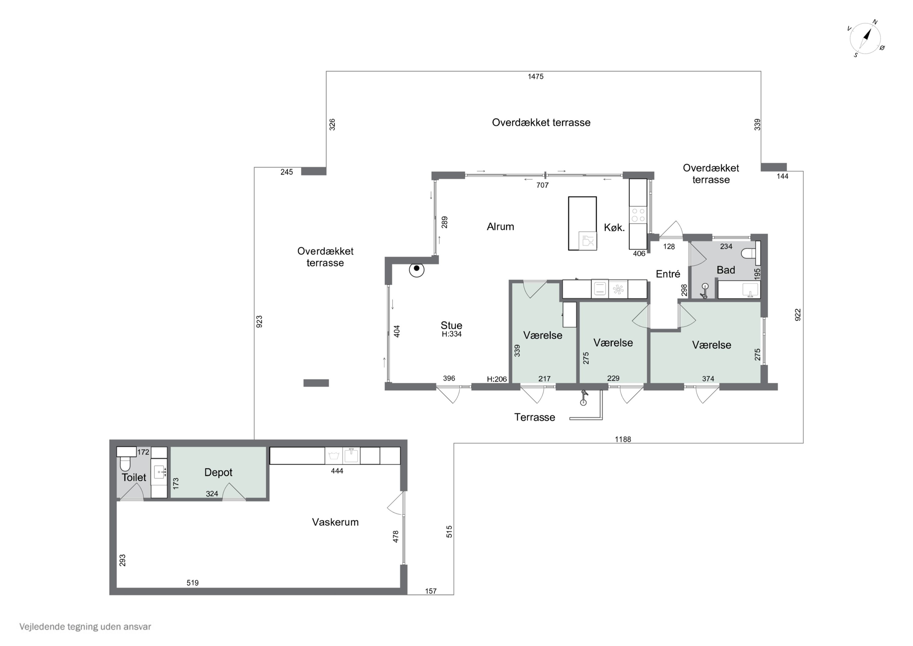
Inden døre udgøres husets hjerte af det omfangsrige opholdsmiljø, der forener køkken-alrummet med stuen. Køkkenet er smagfuldt, og i stuen sørger brændeovnen for stemningsfuld varme til kølige dage. Bemærk også den imponerende loftshøjde på over tre meter, der sammen med lysindfaldene gør atmosfæren luftig og imødekommende. Derudover kan terrassedørene åbnes helt op, så der skabes en sømløs overgang mellem inde og ude. Videre har I tre regulære værelser og et brusebadeværelse. Et anneks med toilet, depotrum og et multirum med vaskefaciliteter får I også.
Økonomien i boligen
Skal Nykredit Bank ringe for en snak om din boligøkonomi?
Fortæl os, hvornår det passer dig, så ringer en rådgiver fra Nykredit Bank dig op til en uforpligtende snak om dine lånemuligheder. Så er du et skridt tættere på din nye bolig.
Vi bruger dine oplysninger til at forberede samtalen. Læs mere i Nykredit Banks privatlivspolitik
Kontakt

Kontakt
Lars Peter Larsen
Skal du også sælge?
Kontakt os og få en gratis salgsvurdering, så ved du hvad din bolig er værd.
- Få et hurtigt estimat af salgspris eller en grundig vurdering.
- Få et indblik i, hvad din ejendom er værd på markedet lige nu.
- Find ud af, hvor meget du selv kan købe for, hvis du ønsker at skifte bolig.
Hvor langt er der til nærmeste?
Se hvor lang tid der er mellem denne bolig og en anden adresse
Fakta om Odsherred Kommune
INDBYGGERE
GRUNDSKYLD
KOMMUNESKAT
SKOLER
BØRNEPASNING
Opret dig i køberkartoteket og få besked om lignende boliger.
Få direkte besked, når der kommer relevante nye boliger til salg, der matcher dine ønsker. Du ser også de boliger, vi får til salg, som vi ikke viser på Nybolig.dk.
Tilpas filtre og opret