Udsigts sommerhus i Løjt Feriecenter
Velkommen til dette charmerende fritidshus med udsigt til Genner Bugt.
Sommerhuset tilbyder en perfekt kombination af moderne komfort og naturskønne omgivelser.
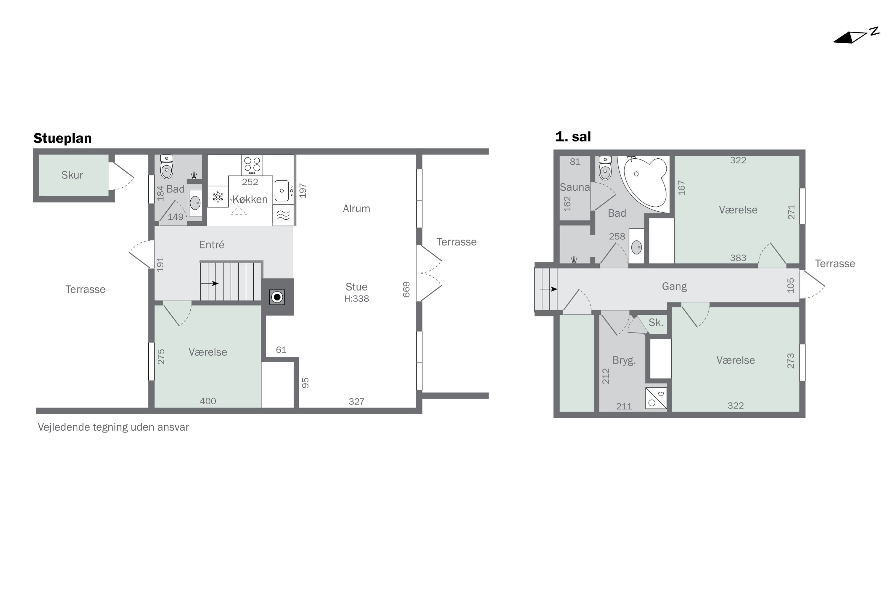
Med en størrelse på 103 kvadratmeter, er boligen praktisk indrettet med en god entré, der fører ind til et åbent funktionelt køkken og opholdsstue, hvor de store vinduer lader lyset strømme ind. Fra stuen er der adgang til en hyggelig terrasse, perfekt til morgenkaffen eller grillfester om aftenen.
Med det store opholdsrum og hele tre soveværelser er her rigeligt med plads til at nyde afslappendestunder med familie og venner. Her kan I samles til spil over spisebordet, eller ren afslapning i sofaenforan brændeovnen på de koldere aftener.
Sommerhuset som er opført 2004, præsenterer sig flot med en indbydende facade i svenskrød, der harmonerer smukt med de hvide sprossevinduer og stakit.
Udenfor venter et dejligt udendørsareal, hvor I kan nyde de lange sommeraftener med udsigt over det naturskønne landskab.
Ejerforeningen sørger for minimal vedligeholdelse til dig som sommerhusejer, hvilket giver jer mere tid til at slappe af og nyde livet.
Fællesfaciliteter som udendørs pool, legeplads med hoppepude og minigolf gør dette til et ideelt sted for familier. Herudover finder I kiosk, restaurant, møntvaskeri.
Ydermere finder I Aabenraa Golfklub blot 500 meter fra sommerhuset.
Beliggenheden er ideel for naturelskere, med kort afstand til både grønne arealer og bugt. Her kan I tage på opdagelse på de mange vandrestier eller blot nyde roen og skønheden i naturen.Uanset om I søger et fristed for weekenderne eller et sted at tilbringe hele sommeren, er dette fritidshus et oplagt valg.
Ønsker I at anvende sommerhuset til udlejning kan det oplyses, at sælger har haft en lejeindtægt på ca.110.000 i 2024.
Økonomien i boligen
Skal Nykredit Bank ringe for en snak om din boligøkonomi?
Fortæl os, hvornår det passer dig, så ringer en rådgiver fra Nykredit Bank dig op til en uforpligtende snak om dine lånemuligheder. Så er du et skridt tættere på din nye bolig.
Vi bruger dine oplysninger til at forberede samtalen. Læs mere i Nykredit Banks privatlivspolitik
Kontakt

Kontakt
Christian Johansen
Skal du også sælge?
Kontakt os og få en gratis salgsvurdering, så ved du hvad din bolig er værd.
- Få et hurtigt estimat af salgspris eller en grundig vurdering.
- Få et indblik i, hvad din ejendom er værd på markedet lige nu.
- Find ud af, hvor meget du selv kan købe for, hvis du ønsker at skifte bolig.
Hvor langt er der til nærmeste?
Se hvor lang tid der er mellem denne bolig og en anden adresse
Fakta om Aabenraa Kommune
INDBYGGERE
GRUNDSKYLD
KOMMUNESKAT
SKOLER
BØRNEPASNING
Opret dig i køberkartoteket og få besked om lignende boliger.
Få direkte besked, når der kommer relevante nye boliger til salg, der matcher dine ønsker. Du ser også de boliger, vi får til salg, som vi ikke viser på Nybolig.dk.
Tilpas filtre og opret