Lyst og moderne sommerhus på lukket vej
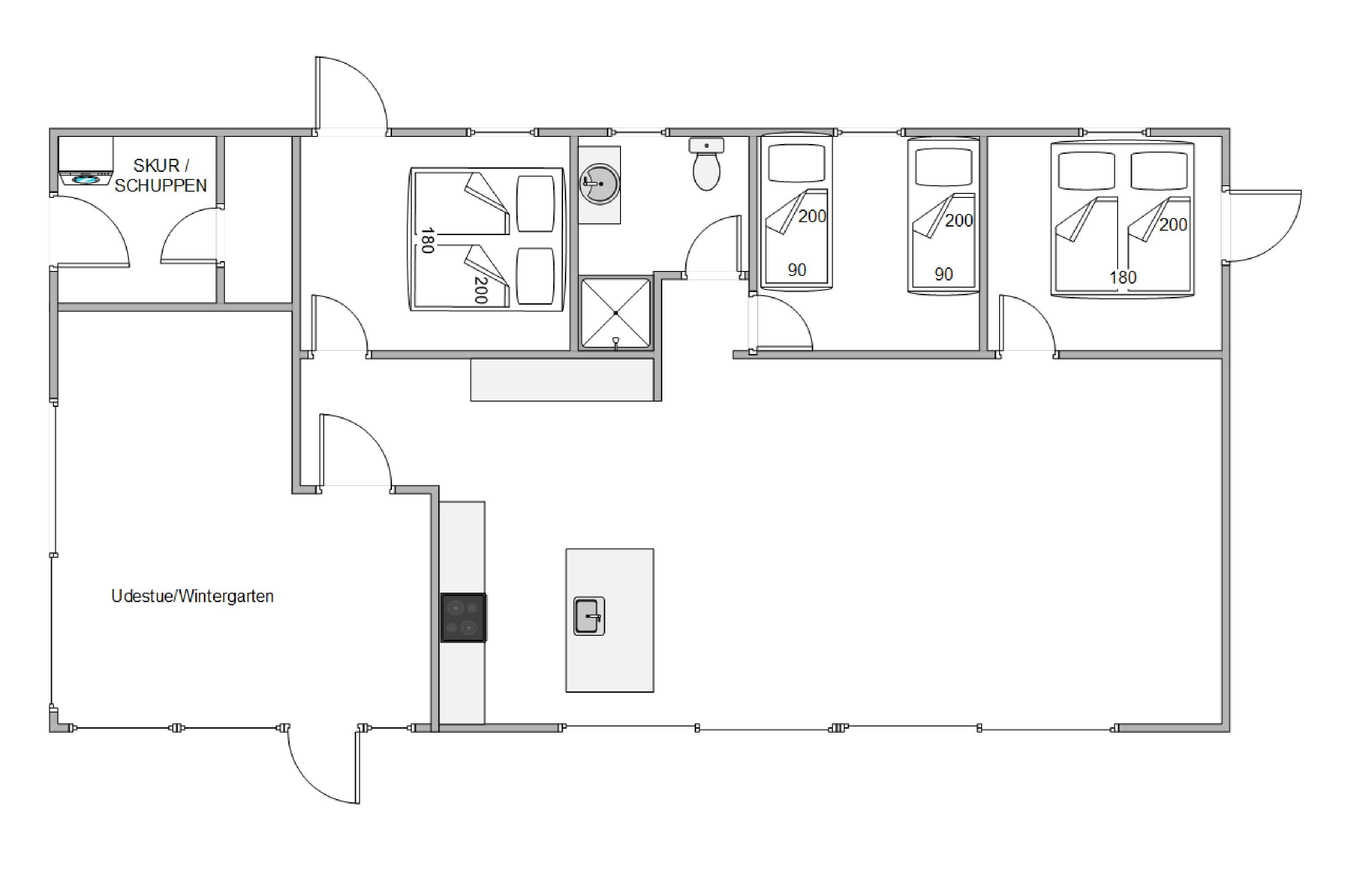
På en dejlig grund ligger dette moderne og lyse fritidshus klar til at danne rammen om jeres kommende feriehygge ved Rindby Strand på Fanø. Huset ligger for enden af en lukket vej og med cykelafstand til Nordby og stranden. Husets 85 kvadratmeter har en lys og moderne atmosfære. Samtidig emmer stedet af klassisk sommerhuscharme – ikke mindst i det store, lyse opholdsmiljø med et lækkert køkken og skøn stue ud i ét.Loft i kip i hele huset, opvarmning med luft-til-vand varmepumpe, udendørsbruser, store panoramavinduer samt adgang til husets store terrassemiljø er kun nogen af de mange plusser, som vi gerne vil fremhæve. I får tre gode soveværelser at indrette jer på. Et rigtigt lækkert badeværelse og sidst men ikke mindst en hyggelig udestue, som forlænger sæsonen. Praktisk integreret skur med vaskemaskine plus privat del til ejerens personlige ting. Gode parkeringsmuligheder ved huset. Kontakt os og få mange flere detaljer ved en fremvisning – vi glæder os til at byde jer velkommen. BEMÆRKNING: Tilmeldt udlejning.
Økonomien i boligen
Skal Nykredit Bank ringe for en snak om din boligøkonomi?
Fortæl os, hvornår det passer dig, så ringer en rådgiver fra Nykredit Bank dig op til en uforpligtende snak om dine lånemuligheder. Så er du et skridt tættere på din nye bolig.
Vi bruger dine oplysninger til at forberede samtalen. Læs mere i Nykredit Banks privatlivspolitik
Kontakt

Kontakt
Tina Wohlert
Skal du også sælge?
Kontakt os og få en gratis salgsvurdering, så ved du hvad din bolig er værd.
- Få et hurtigt estimat af salgspris eller en grundig vurdering.
- Få et indblik i, hvad din ejendom er værd på markedet lige nu.
- Find ud af, hvor meget du selv kan købe for, hvis du ønsker at skifte bolig.
Hvor langt er der til nærmeste?
Se hvor lang tid der er mellem denne bolig og en anden adresse
Fakta om Fanø Kommune
INDBYGGERE
GRUNDSKYLD
KOMMUNESKAT
SKOLER
BØRNEPASNING
Opret dig i køberkartoteket og få besked om lignende boliger.
Få direkte besked, når der kommer relevante nye boliger til salg, der matcher dine ønsker. Du ser også de boliger, vi får til salg, som vi ikke viser på Nybolig.dk.
Tilpas filtre og opret