Fritidshus 89 m² fra 1981, moderniseret 2016, på lukket 234 m² grund
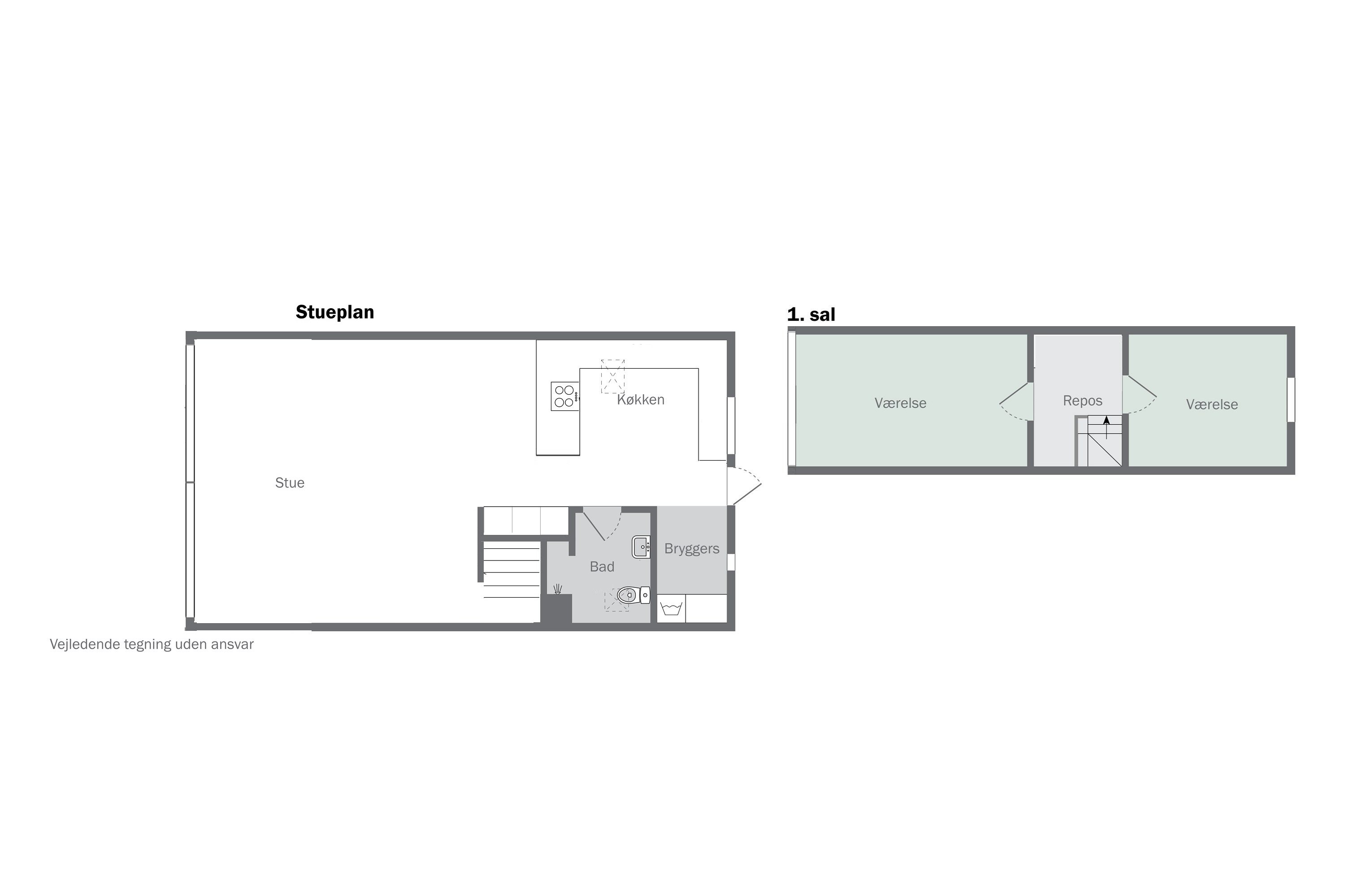
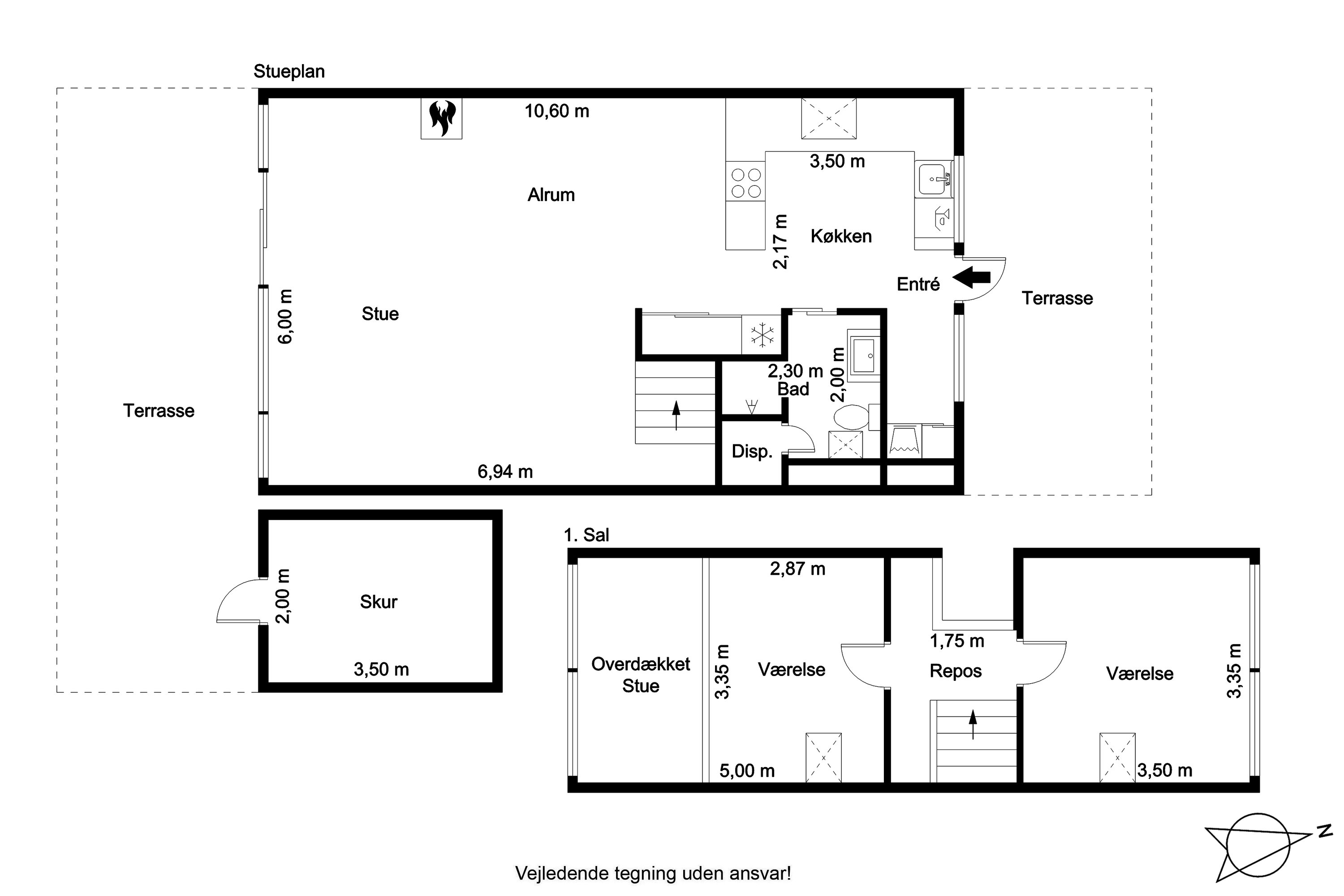
Fritidshus på 89 m² fra 1981, moderniseret i 2016, placeret på en lukkede grund på 234 m². Førstehåndsindtrykket fanger øjet: A-formet tag og store trekantede glaspartier, der åbner facaden og lukker lys ind i boligens ophold. Den mørke træbeklædning og den hævede terrasse skaber et afgrænset udeområde, hvor du får både privatliv og grøn udsigt mod grantræer og græsplæne.Indvendigt møder du en åben planløsning mellem køkken og stue, samlet i ét stort opholdsrum med synlige hvide bjælker og lyst trægulv. Køkkenet har et rummeligt arbejdsareal med indbygget ovn og kogeplade samt plads til barstole ved en halvø, og der er direkte adgang til terrasse. I stueplan findes desuden et badeværelse med vindue mod himlen samt et praktisk bryggers med plads til vaskemaskine. Den fritstående brændeovn samler rummet og giver stemning og varme.Huset rummer to soveværelser på 1. sal, adskilt af en repos, hvorfra det store trekants-vindue kaster lys ned over stuen. Vinduespartierne i gavlen skaber et stærkt visuelt fokus og giver kontakt til udearealerne. Udvendigt byder huset på flere terrasser — både en lav terrasse ud mod haven og en hævet træterrasse med indbygget siddebanket, som forlænger opholdet udendørs. Der er desuden et mindre udhus/anneks til opbevaring.Belægningen afgrænser et roligt sommerhusmiljø omgivet af grønt, og grundens størrelse gør haven overskuelig at vedligeholde. Den arkitektoniske form og de store glaspartier gør boligen velegnet som feriebase eller som weekendtilflugtssted, hvor samvær foregår i ét samlet rum på stueplan og privatliv bevares på 1. sal. Materialevalget fra renoveringen i 2016 med lyse overflader og sorte bordplader i køkkenet giver et moderne udtryk med gode muligheder for personlig indretning.Kort sagt får du et indbydende fritidshus med åben planløsning, markante vinduespartier, to soveværelser og flere terrasser på en nem grund. Huset står i indflytningsklar stand efter 2016-modernisering, og den enkle planløsning gør det let at bruge året rundt. Kontakt os for en fremvisning og oplev, hvordan huset fungerer i praksis.
Økonomien i boligen
Skal Nykredit Bank ringe for en snak om din boligøkonomi?
Fortæl os, hvornår det passer dig, så ringer en rådgiver fra Nykredit Bank dig op til en uforpligtende snak om dine lånemuligheder. Så er du et skridt tættere på din nye bolig.
Vi bruger dine oplysninger til at forberede samtalen. Læs mere i Nykredit Banks privatlivspolitik
Kontakt

Kontakt
Jacob Andersen
Skal du også sælge?
Kontakt os og få en gratis salgsvurdering, så ved du hvad din bolig er værd.
- Få et hurtigt estimat af salgspris eller en grundig vurdering.
- Få et indblik i, hvad din ejendom er værd på markedet lige nu.
- Find ud af, hvor meget du selv kan købe for, hvis du ønsker at skifte bolig.
Hvor langt er der til nærmeste?
Se hvor lang tid der er mellem denne bolig og en anden adresse
Fakta om Vesthimmerland Kommune
INDBYGGERE
GRUNDSKYLD
KOMMUNESKAT
SKOLER
BØRNEPASNING
Opret dig i køberkartoteket og få besked om lignende boliger.
Få direkte besked, når der kommer relevante nye boliger til salg, der matcher dine ønsker. Du ser også de boliger, vi får til salg, som vi ikke viser på Nybolig.dk.
Tilpas filtre og opret