Velholdt sommerhus med panoramaudsigt til hav og klitlandskab
Panoramaudsigten strækker sig ud over Tannis Bugt og det maritime liv ved Hirtshals Havn. Beliggenheden kunne således ikke være meget bedre for dette sommerhus, der inkluderer et særdeles velholdt, gedigent og smagfuldt hus samt en stor, skøn naturgrund. Velkommen til Tversted.
Der er ikke engang 800 meter fra matriklen og frem til vandkanten. Den korte afstand til bugten og stranden smitter samtidig af på udsigten, der aldrig stopper med at behage hverken faste eller nye feriegæster. Følg færgetrafikken, og nyd årstidernes skiftende udtryk. Indkøbene klares centralt i Tversted – cirka to kilometer herfra, så I kan vælge at tage cyklen.
På denne billedskønne plet ligger et sommerhus bygget af kraftige, trykimprægnerede brædder med dobbelt isolering. Rundt om huset er der flere oplagte terrasser, som gør det muligt at opsøge sol og skygge dagen igennem. Den største har I mod syd, hvorfra udsigten også er allerbedst. Resten af grunden er udlagt med vild natur, som smelter sammen med det omgivende landskab.
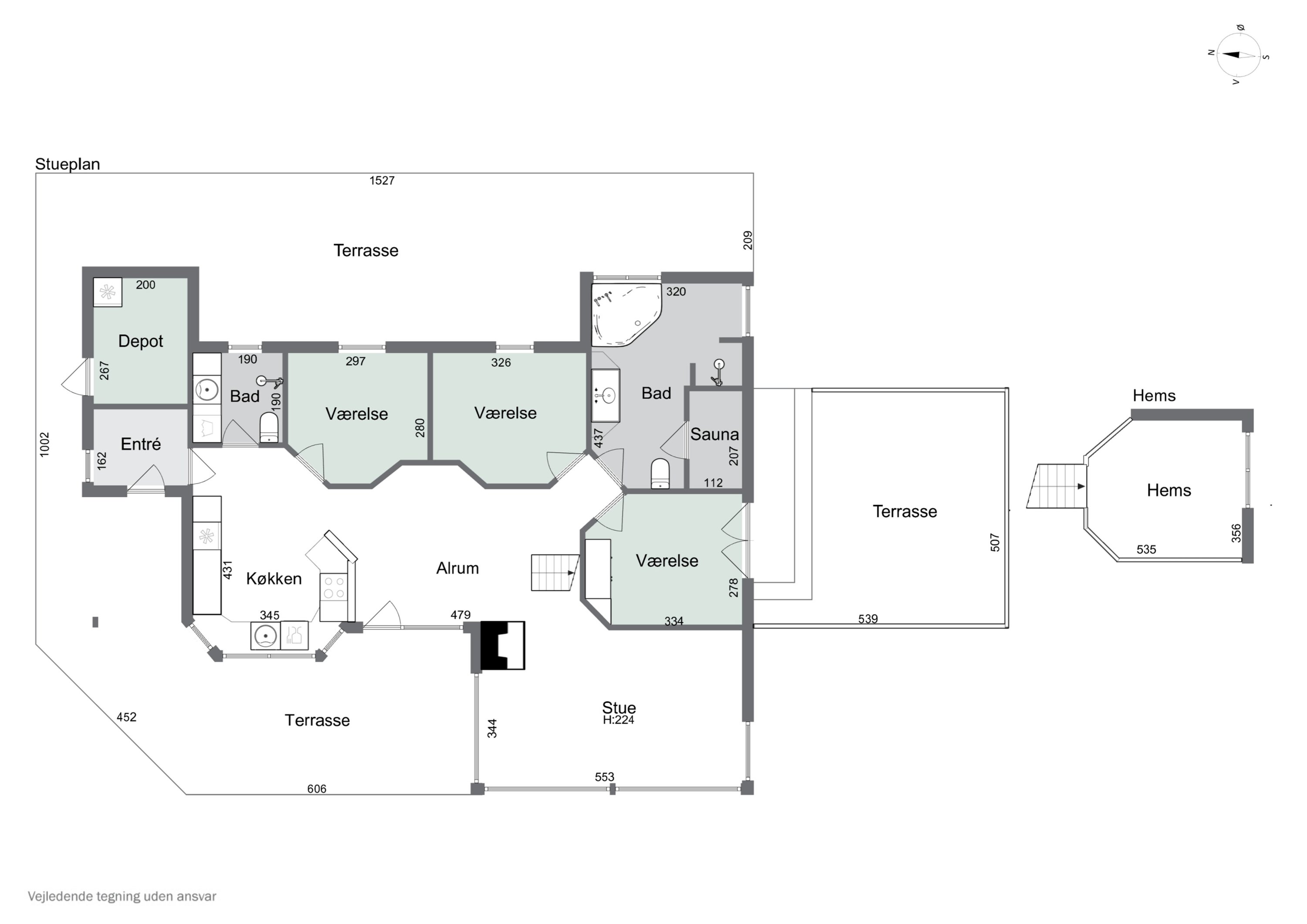
Inden døre skal I præsenteres for 102 kvadratmeter plus hems. Spændende loftsforløb, skønne vinkelbrud og talrige glaspartier skaber en helt særlig stemning, som især kommer jer til gode i det centrale opholdsmiljø, der strækker sig fra køkken-alrummet og frem til stuen. Køkkenskabene er indrettet i en hestesko, og fra vinduerne kan I se langt ud i horisonten.
Hjemmets videre indretning inkluderer tre gode værelser og to badeværelser, der tilsammen gør det nemt at være mange samlet under ferierne og de forlængede ophold. En hems bidrager med endnu flere sovepladser. Et fint depotrum runder sammen med entréen plantegningen af.
Dette sommerhus skal opleves - kontakt Nybolig Hjørring for en fremvisning, du ikke vil hjem fra.
Økonomien i boligen
Skal Nykredit Bank ringe for en snak om din boligøkonomi?
Fortæl os, hvornår det passer dig, så ringer en rådgiver fra Nykredit Bank dig op til en uforpligtende snak om dine lånemuligheder. Så er du et skridt tættere på din nye bolig.
Vi bruger dine oplysninger til at forberede samtalen. Læs mere i Nykredit Banks privatlivspolitik
Kontakt

Kontakt
Morten Hove
Skal du også sælge?
Kontakt os og få en gratis salgsvurdering, så ved du hvad din bolig er værd.
- Få et hurtigt estimat af salgspris eller en grundig vurdering.
- Få et indblik i, hvad din ejendom er værd på markedet lige nu.
- Find ud af, hvor meget du selv kan købe for, hvis du ønsker at skifte bolig.
Hvor langt er der til nærmeste?
Se hvor lang tid der er mellem denne bolig og en anden adresse
Fakta om Hjørring Kommune
INDBYGGERE
GRUNDSKYLD
KOMMUNESKAT
SKOLER
BØRNEPASNING
Opret dig i køberkartoteket og få besked om lignende boliger.
Få direkte besked, når der kommer relevante nye boliger til salg, der matcher dine ønsker. Du ser også de boliger, vi får til salg, som vi ikke viser på Nybolig.dk.
Tilpas filtre og opret