Velkommen til denne delvist byggemodnet byggegrund, som er beliggende på Sognevej 39. Grunden ligger landligt med den mest fantastiske udsigt over de omkringliggende marker og skove! Her kan I bygge jeres drømmehus og selv sammen med byggefirma bestemme placering på grunden, størrelse, rumfordeling og alt det øvrige som I skal tage stilling til som kommende nybyggere - eller få bygget huset som vi hos Nybolig Langeland i samarbejde med eurodan-huse har fået tegnet og udarbejdet projekt på. I det færdige projekt er der stadig masser af muligheder for at få foretaget flere ændringer og tilføjelser således huset bliver tilpasset til lige nøjagtig jeres stil, smag, drømme og behov.
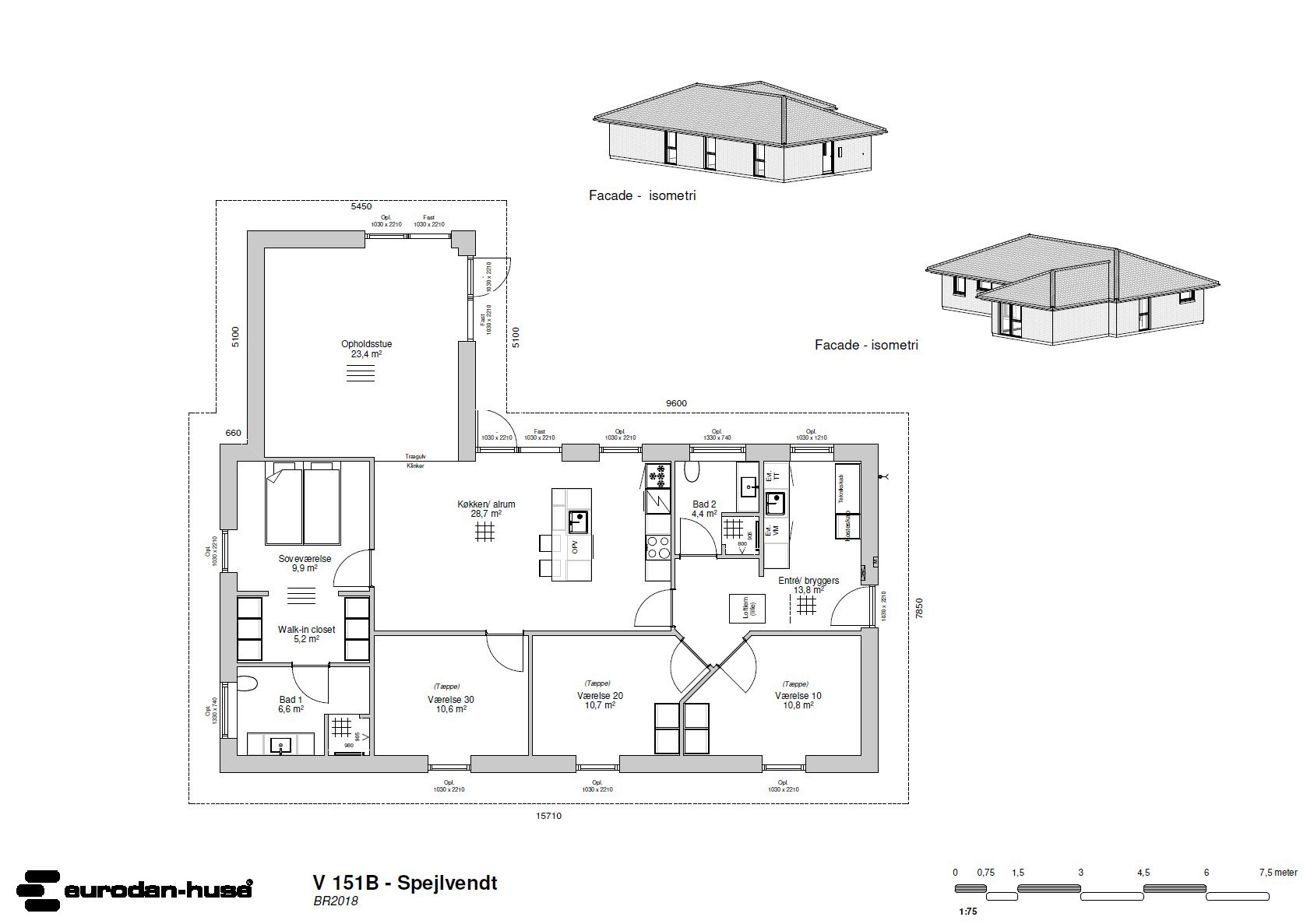
Det færdige projekt fra eurodan-huse byder på et vinkelhus i 1-plan på 151 kvadratmeter hvor planløsningen er optimal! Indretningen er således: Entré/bryggers, badeværelse med brus og væghængt toilet. 2 rummelige værelser. Stort lyst køkken/ alrum med adgang til endnu et værelse. Alrummet er i åben forbindelse med opholdsstuen. Desuden er der ”forældreafdeling” med soveværelse, walk-in samt stort badeværelse.
Inden for en radius på blot 4 kilometer fra grunden, finder du flere folkeskoler, friskoler, daginstitutioner, indkøbsmuligheder, sportsfaciliteter og meget mere. Vil du en tur til vandet kan du besøge Lundeborg, som kun ligger 6 kilometer væk fra grunden. Byggegrunden på Sognevej 39, ligger centralt placeret mellem Oure og Gudme.
Her er en super spændende og god mulighed for at komme til at bo i et helt nybygget hus i landlige omgivelser, men alligevel tæt på alle hverdagens fornødenheder.
Kontakt Nybolig Langeland for en drøftelse om de mange muligheder samt for udlevering af diverse materiale fra eurodan-huse mv.
Vi ser frem til at hjælpe jer i mål med jeres boligdrømme!
Økonomien i boligen
Skal Nykredit Bank ringe for en snak om din boligøkonomi?
Fortæl os, hvornår det passer dig, så ringer en rådgiver fra Nykredit Bank dig op til en uforpligtende snak om dine lånemuligheder. Så er du et skridt tættere på din nye bolig.
Vi bruger dine oplysninger til at forberede samtalen. Læs mere i Nykredit Banks privatlivspolitik
Kontakt

Kontakt
Nicolai Hummelgaard
Skal du også sælge?
Kontakt os og få en gratis salgsvurdering, så ved du hvad din bolig er værd.
- Få et hurtigt estimat af salgspris eller en grundig vurdering.
- Få et indblik i, hvad din ejendom er værd på markedet lige nu.
- Find ud af, hvor meget du selv kan købe for, hvis du ønsker at skifte bolig.
Hvor langt er der til nærmeste?
Se hvor lang tid der er mellem denne bolig og en anden adresse
Fakta om Svendborg Kommune
INDBYGGERE
GRUNDSKYLD
KOMMUNESKAT
SKOLER
BØRNEPASNING
Opret dig i køberkartoteket og få besked om lignende boliger.
Få direkte besked, når der kommer relevante nye boliger til salg, der matcher dine ønsker. Du ser også de boliger, vi får til salg, som vi ikke viser på Nybolig.dk.
Tilpas filtre og opret