SOLSTRÅLEN EN NY GRØN BYDEL I AABYBRO
Er I klar til et helt nyt hjem med naturen som nabo – og samtidig tæt på alle byens faciliteter? Så flyt til Aabybros attraktive grønne bydel - Solstrålen.
Se mere på www.solstraalenaabybro.dk
Bliv nabo til både naturen og byens faciliteter
Solstrålen er udviklet med alléer, vandløb og slyngede veje i den smukke nordjyske natur. Alle stillevejene er holdt i eksklusive materialer fra træbænke til belysning. Legeplads og multisportsbane danner centrum i solstrålerne, og der er stisystem til nærliggende institutioner, skoler og alle indkøbsfaciliteter.
Aabybro ligger kun 18 km fra Aalborg og er i rivende udvikling. Fra 2030 er visionen, at byen løfter sig til et helt nyt niveau som en livlig by med flere faciliteter, flere indbyggere, flere familievenlige tilbud og selvfølgelig flere nye bydele.
Solstrålen er blandt de første af disse nye bydele til at se dagens lys – og hvilken bydel.
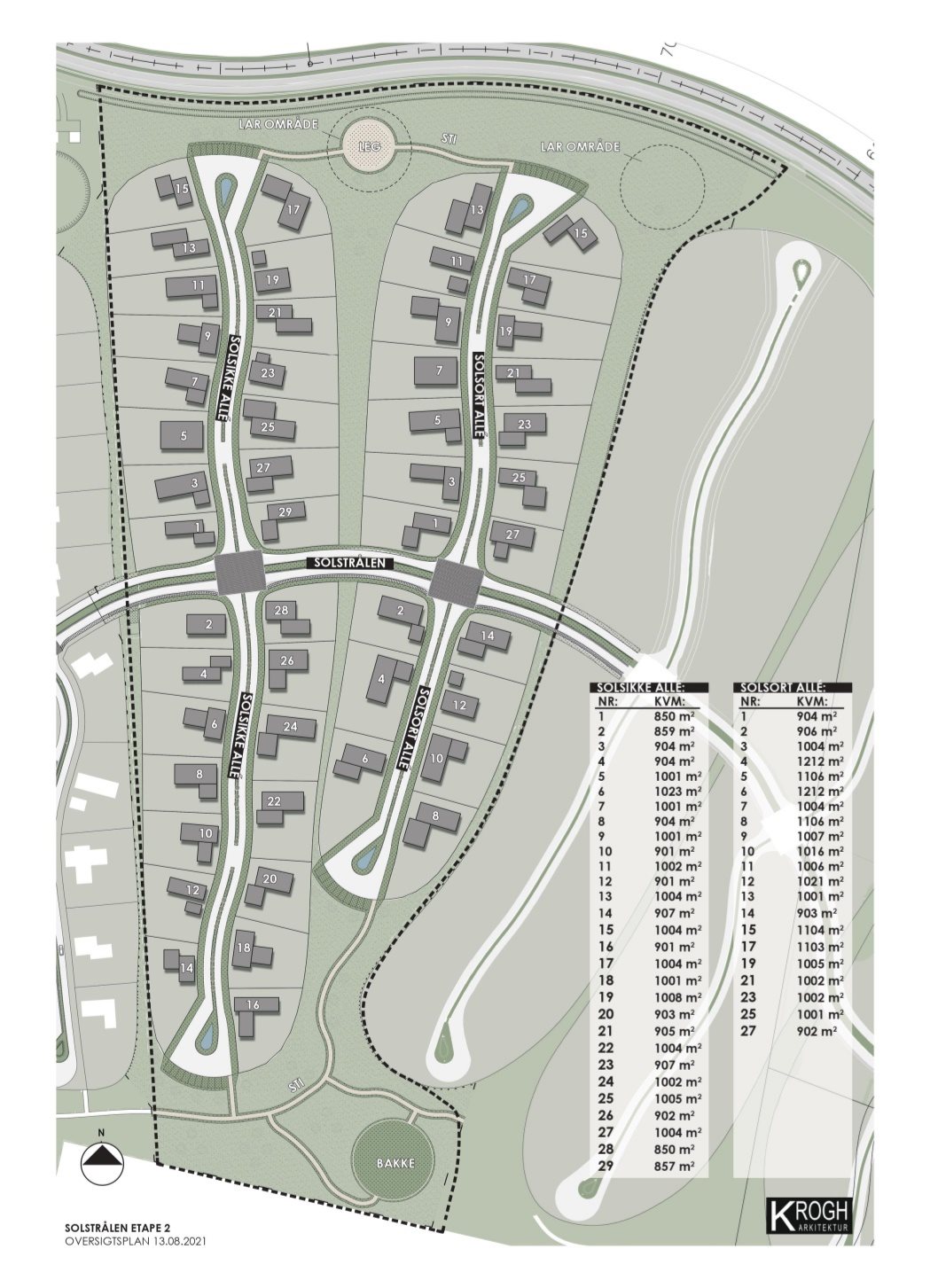
Eksklusiv udstykning til det gode liv
Midt i et enestående og naturskønt område nord for Aabybro har Krogh Arkitektur tænkt Solstrålen ud i det omkringliggende landskab. Naturen er afsættet, og I kan flytte ind i Nordjyllands flotteste udstykning, hvor der ikke er gået på kompromis med noget.
Solstrålen minder langt fra om et traditionelt parcelhuskvarter. Her er tale om en grøn og levende boligudstykning, der folder sig ud i en smuk vifte af lukkede veje – de såkaldte ”solstråler””. Her kan nabolagets børn lege og cykle, mens husene står side om side med god plads imellem. Åbne forhaver og rekreative områder smelter sammen; som solens stråler en varm sommerdag.
Når det eksklusive kvarter står færdigt, bliver det med brede, grønne alléer akkompagneret af snoede stisystemer og rislende vandløb. Rækker af træer står harmonisk plantet langs de stille veje og bidrager med et færdigt udtryk, hvor alt allerede er vokset flot op, når de første spadestik bliver taget.
I første etape blev 41 attraktive grunde sat til salg. Anden etape indeholder 50 spændende grunde, og med tiden –– når bydelen er fuldt udbygget – vil den stå med cirka 250 boliger. Alle folder de sig ud i viftens stråler, som på arkitektonisk vis udgår fra et centrum; solen. Her venter de fantastiske fællesarealer med legeplads og multisportsbane –– til stor glæde for kvarterets børnefamilier, der får ideelle rammer for mange eftermiddage med sjov og leg. Bydelen får en ganske særlig stemning med summen af liv, som i dén grad understreger, at Solstrålen er et rart og trygt sted for sine beboere.
Udstykningen placerer sig på en dejlig plet lige nord for Aabybro – et område der knytter Aabyskoven sammen med de nye naturarealer. Derudover ligger kvarteret helt tæt på Aabybros bymidte, som de senere år har udviklet sig til at være en af Nordjyllands foretrukne steder at bosætte sig –– og med god grund. Aabybro har det hele – og via byens stisystemer og busforbindelser kommer I let rundt til alting. Et attraktivt foreningsliv, DGI-hus, svømmehal, fodboldstadion og golfbane sikrer en levende hverdag, mens byens mange gode specialbutikker og indkøbsmuligheder får det praktiske til at glide. Dertil kommer en ny privat vuggestue og børnehave lige ved Solstrålen, to nye skoler og lokal friskole. Fra Aabybro har I kun ti minutters kørsel til lufthavnen, et kvarter til Blokhus strand og Fårup Sommerland samt tyve minutter til Aalborg.
Økonomien i boligen
Skal Nykredit Bank ringe for en snak om din boligøkonomi?
Fortæl os, hvornår det passer dig, så ringer en rådgiver fra Nykredit Bank dig op til en uforpligtende snak om dine lånemuligheder. Så er du et skridt tættere på din nye bolig.
Vi bruger dine oplysninger til at forberede samtalen. Læs mere i Nykredit Banks privatlivspolitik
Kontakt

Kontakt
Mathias Nørskou Overgaard
Skal du også sælge?
Kontakt os og få en gratis salgsvurdering, så ved du hvad din bolig er værd.
- Få et hurtigt estimat af salgspris eller en grundig vurdering.
- Få et indblik i, hvad din ejendom er værd på markedet lige nu.
- Find ud af, hvor meget du selv kan købe for, hvis du ønsker at skifte bolig.
Hvor langt er der til nærmeste?
Se hvor lang tid der er mellem denne bolig og en anden adresse
Fakta om Jammerbugt Kommune
INDBYGGERE
GRUNDSKYLD
KOMMUNESKAT
SKOLER
BØRNEPASNING
Opret dig i køberkartoteket og få besked om lignende boliger.
Få direkte besked, når der kommer relevante nye boliger til salg, der matcher dine ønsker. Du ser også de boliger, vi får til salg, som vi ikke viser på Nybolig.dk.
Tilpas filtre og opret