Spring til hovedindhold
I bil:
- min
På cykel:
- min
  • Miniature skyderbillede af andet. Billede af Frueled 74, Nykøbing Mors, 7900 Nykøbing M
  • Miniature skyderbillede af andet. Billede af Frueled 74, Nykøbing Mors, 7900 Nykøbing M
  • Miniature skyderbillede af andet. Billede af Frueled 74, Nykøbing Mors, 7900 Nykøbing M
  • Miniature skyderbillede af andet. Billede af Frueled 74, Nykøbing Mors, 7900 Nykøbing M
  • Miniature skyderbillede af andet. Billede af Frueled 74, Nykøbing Mors, 7900 Nykøbing M
Købsaftale underskrevet

Frueled 74, Nykøbing Mors 7900 Nykøbing M

Landejendom -
Boligareal: 171 m²
Driftsbygninger: 2301 m²
Stue/Værelser: 2/5
Plan: 2 plan
Bygget/Ombygget: 1942/1988
Grundstørrelse: 62652 m²
Energimærke: D
Hent salgsmateriale

Ejendom med 171 m² bolig, 62.652 m² landbrugsjord, ridefaciliteter og god

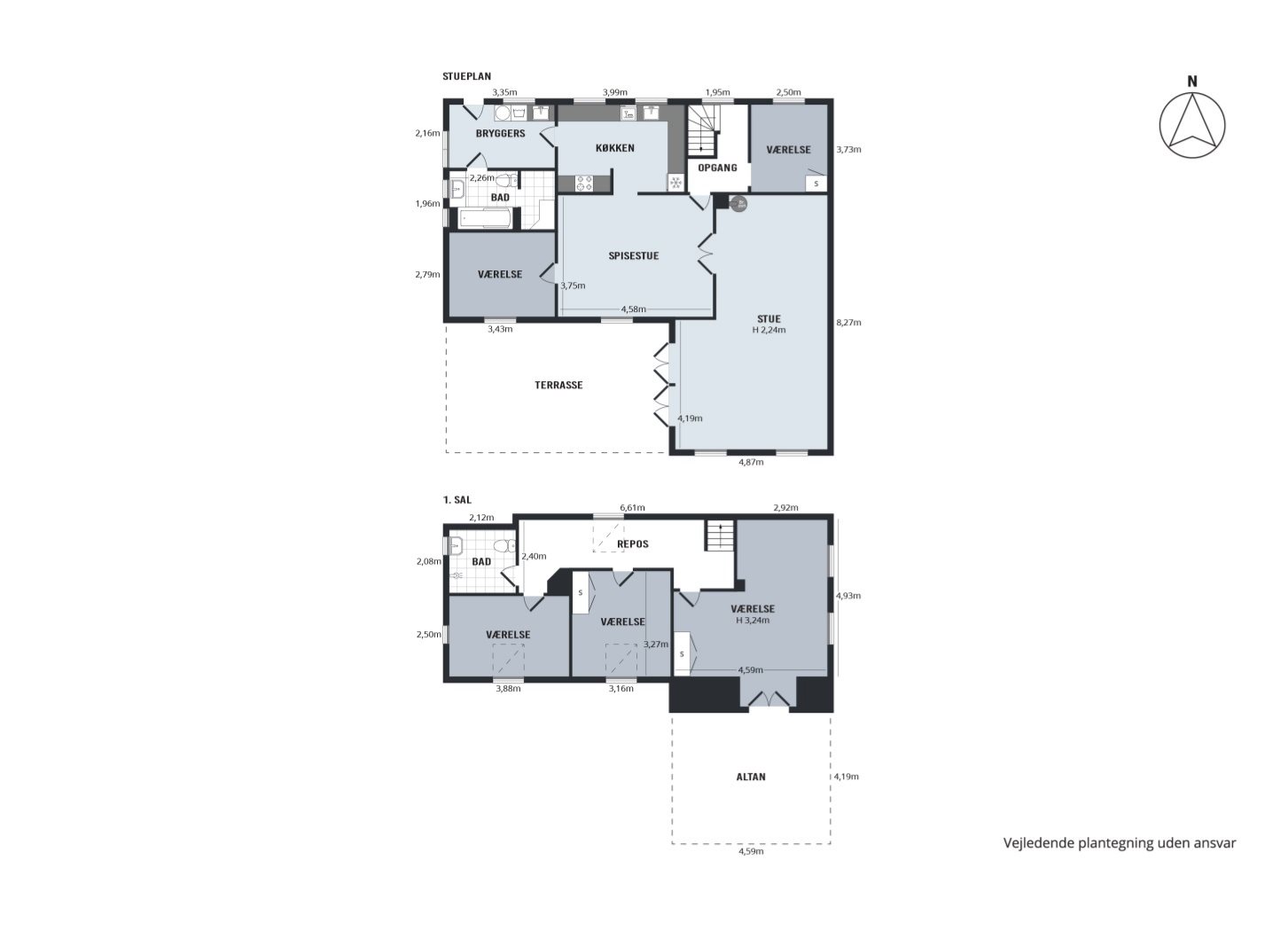
Eiendommen kombinerer bolig og landbruksjord på hele 62.652 m² med god plads til både familie og erhverv. Huset på 171 m², opført i 1942 og renoveret i 1988, giver plads til hele fem soveværelser fordelt på syv værelser og to stuer, hvilket skaber gode rammer for både privatliv og samvær. Med to badeværelser og en planløsning, der inkluderer en stue med højt til loftet og store vinduer, får dagslyset frit spil, og rummet åbner sig mod naturen udenfor.I stueplan mødes man af en lys entré og et praktisk bryggers tæt ved køkkenet, der med sin åbne forbindelse til spisestue og stue skaber en flydende overgang for hverdagslivet og gæstebesøg. De rummelige værelser fordeler sig både i stueetagen og på første sal, hvor tre yderligere værelser samt en repos og et badeværelse giver plads til familieliv eller hjemmekontor. De store glaspartier i stuen folder udsigten ud og åbner op mod den tilstødende terrasse, mens stuklofter og udsnit fra loftvinduer tilfører karakter og lys helt oppefra.Udendørs er der rig mulighed for at nyde den åbne jord, der både kan anvendes til landbrugsdrift eller dyrehold. En stor, solrig terrasse i forbindelse med stuen lægger op til morgenkaffe på varme dage, mens den tilhørende altan på første sal inviterer til udsigt og frisk luft. De omfattende landbrugsarealer indeholder ridefaciliteter med ridehal og opstaldning, hvilket gør ejendommen ideel for hesteejere. Den store gårdsplads foran huset giver gode rum til parkering og plads til aktiviteter udenfor.Ejendommen ligger i rolige omgivelser med kort afstand til Limfjordsvej og det nærliggende busstoppested Faarupparken, således at den daglige transport til omkringliggende byer foregår nemt. Få minutters kørsel væk findes Dueholmskolen, som sikrer nem adgang til skole for børn, mens naturen inviterer til gåture og udflugter ved Legind Sø og kysten, der ligger under to kilometer væk. Her kombineres landlige omgivelser med nem adgang til både hverdagens praktiske behov og rekreative aktiviteter.


Økonomien i boligen

Kontantpris -
Ejerudgift pr. md. -
Udbetaling -
Brutto ekskl. ejerudgift -
Netto ekskl. ejerudgift -

Skal Nykredit Bank ringe for en snak om din boligøkonomi?

Fortæl os, hvornår det passer dig, så ringer en rådgiver fra Nykredit Bank dig op til en uforpligtende snak om dine lånemuligheder. Så er du et skridt tættere på din nye bolig.

Book Nykredit Bank med MitID

Passer tidspunktet alligevel ikke? Ring til Nykredit Bank på 70 10 90 00, så finder vi en ny tid.
Vi bruger dine oplysninger til at forberede samtalen. Læs mere i Nykredit Banks privatlivspolitik


Billede af kontaktmægleren

salgsvurdering

Få et hurtigt estimat af salgspris eller en grundig vurdering.

Få en salgsvurdering

Ole Gørtler Laustsen

Indehaver, Ejendomsmægler MDE, Vurderingskonsulent for Totalkredit, Køberrådgiver med tryghedsmærke

salgsvurdering

Få et hurtigt estimat af salgspris eller en grundig vurdering.

Få en salgsvurdering
Fakta om Morsø Kommune
INDBYGGERE
19.520
GRUNDSKYLD
15,300‰
KOMMUNESKAT
25,80%
SKOLER
4
BØRNEPASNING
3.923 kr./md.
Børnehave
2.438 kr./md.

Lignende boliger

Baseret på boliger du har kigget på

Se alle lignende boliger

Opret dig i køberkartoteket og få besked om lignende boliger.

Få direkte besked, når der kommer relevante nye boliger til salg, der matcher dine ønsker. Du ser også de boliger, vi får til salg, som vi ikke viser på Nybolig.dk.

Tilpas filtre og opret
Indlæser...